Однушка для семьи с ребенком. Основные способы зонирования
- Однушка для семьи с ребенком. Основные способы зонирования
- Однушка для семьи с ребенком планировка. Однушка 35 кв. м для семьи с двумя детьми
- Однушка для семьи с ребенком 30 кв.м. Как организовать 30 квадратных метров для семьи с ребенком
- Однушка для семьи с ребенком зонирование. Как зонировать однокомнатную квартиру
- Однушка для семьи с ребенком 32кв.м дизайн. Дизайн однокомнатной квартиры для семьи с двумя детьми
Однушка для семьи с ребенком. Основные способы зонирования
Все виды зонирования сводятся к двум основным:
- С использованием реальных отделяющих предметов.
- «Невидимое» зонирование.
Первый вариант – это всевозможные перегородки, фальшстены или просто мебель, выполняющая функцию разграничения.

Дизайн однокомнатной квартиры для семьи с ребенком необходимо продумать основательно.
В горизонтальном пространстве зонировать комнату таким образом выгодно в случае немалых кв м. Но, если позволяет высота потолков, такой тип зонирования отлично подойдет для создания дополнительного яруса.
«Невидимое» зонирование – это разделение пространства за счет разных цветов напольного и настенного покрытия. В случае небольшой однокомнатной квартиры – самое оно.

Учитывается все до мелочей, мебель располагается наиболее рациональным способом.
Особенности выбора стиля квартиры для семьи с ребенком
Справедливо, что для семьи с ребенком приоритетнее практичность, нежели стиль. Но разве стоит себе отказывать в эстетическом наслаждении? Предлагаем рассмотреть стиль интерьера, гармонично соединяющий в себе красоту с не меньшей степенью практичности.

С появлением в семье маленького ребенка еще больше увеличивается потребность в правильной планировке жилого пространства и увеличении его функциональности.
Стиль «Контемпорари»
Общие черты. Сочетание несочетаемого, да так, чтобы это было действительно красиво и удобно – в этом вся суть контемпорари.

В основу этого стиля легли скандинавский, конструктивизм и минимализм.
Это бюджетный вариант, в котором вы можете смело себе позволить недорогую мебель, простую однотонную отделку стен и полов.
Подойдет вариант даже с бабушкиной стенкой вместо новомодного шкафа-купе. Главное, чтобы мебель была удобной, вместительной и многофункциональной. Ведь красота в простоте и обилии свободного места. Так что забудьте о привычке складировать ненужные вещи. А увеличить пространство можно за счет максимальной функциональности, используя:
- Раскладной стол-трансформер.
- Модульную мебель.
- Раскладные формы диванов.
- Мебельную стенку.

Однокомнатное жилье, как правило, имеет небольшую площадь. Поэтому главным его недостатком является нехватка места.
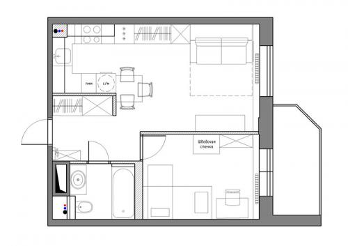
Однушка для семьи с ребенком планировка. Однушка 35 кв. м для семьи с двумя детьми
Изолированную комнату отдали под детскую, а в кухне-гостиной установили удобный диван-кровать и вместительную систему хранения.

Площадь однокомнатной квартиры в ЖК «Юнион» в Санкт-Петербурге, которую оформили специалисты бюро Cubiq Studio, составляет всего 35 м2. Жить в ней планирует семья с двумя детьми. Им могло бы быть тесно на скромной площади, если бы не главное преимущество квартиры. Коммуникации подведены в более глубокой и темной части большой комнаты. Благодаря этому удалось превратить её в кухню-гостиную, а маленькую изолированную спальню превратить в детскую.

Поскольку родителям предстоит спать в гостиной, дизайнеры выбрали диван-трансформер, который превращается в полноценную двуспальную кровать. Напротив неё установили комод под телевизор и пару открытых полок для книг.

Зону прихожей отделили от основного пространства нишей со встроенным шкафом для верхней одежды. А чтобы помещение не казалось тесным, в холле установили большое зеркало в белой раме, а проем оставили широким. Благодаря этому комната будто продолжается за пределы прихожей.

Кухонный гарнитур встроили в небольшую отведённую для него нишу. Выбрали максимально вместительную П-образную модель с минималистичными белыми матовыми фасадами. Верхние шкафы чуть уже, а нижние – вровень со шкафом, который как будто их продолжает. На самом деле это система хранения для всех вещей, которые необходимы большой семье.

Поскольку зона кухни уж очень тесная, одну из стен освободили от верхних шкафов. Вместо них предусмотрели открытые полки для зелени и специй. В качестве кухонного фартука здесь использовали грифельную краску.

В детской комнате появилась двухъярусная кровать, причём спальные места расположены перпендикулярно друг другу. Это позволило внизу обустроить дополнительные полочки и зону отдыха с пуфом-игрушкой. Рядом – письменный стол со всеми необходимыми принадлежностями.

Шкаф выбрали с открыто-закрытой системой хранения. Это позволяет хранить в нём и повседневную одежду, и игрушки с книжками. Предусмотрели и компактную шведскую стенку, которая занимает минимум места.


Хотите видеть больше подобного в своей ленте – ставьте лайк.
Чтобы регулярно смотреть свежие подборки интерьеров со всего мира, подпишитесь на канал .
Однушка для семьи с ребенком 30 кв.м. Как организовать 30 квадратных метров для семьи с ребенком
Оформить 30 квадратов для трех человек — непростая задача для дизайнера. Чтобы семья с ребенком комфортно разместилась в маленькой однушке, Марии Махмудовой пришлось тщательно продумать каждый сантиметр квартиры. Вместо привычного белого цвета, который используют для оформления стен в малогабаритках, Мария решила пойти нестандартным путем и декорировала квартиру обоями в полоску и зеркалами: как известно, они визуально увеличивают пространство. Кстати, в проекте также предусмотрена мебель-трансформер, которая превращается в полноценную кровать и имеет внутри ящики для хранения.
Заказчик и пожелания
Заказчики — молодая пара с пятилетним ребенком. Их главное увлечение — путешествия. Они хотели получить многофункциональное пространство на небольшой площади с низкими потолками. Прежде всего было важно организовать места для хранения верхней одежды и обуви, так как в нашем переменчивом климате у семей, как правило, много комплектов одежды.
Также было необходимо организовать отдельную зону для ребенка, место для сна, рабочий стол и отдельный шкаф для хранения детских вещей. Эта зона будет отделяться от зоны гостиной в вечернее время. В кухне мы должны были решить еще много задач: поставить раскладной диван на случай приезда гостей или родственников, реализовать нежную лавандово-салатовую гамму и сделать кухонный гарнитур вместительным.
Планировка
Вначале у нас была идея сделать вместительный встроенный шкаф в коридоре. Однако после некоторых рассчетов от него отказались и оставили все как есть: заказчик не хотел связываться с согласованием перепланировки.
Хранение
Шкафы подбирали с простыми фасадами и зеркальными дверками для визуального увеличения пространства. На балконе мы также предусмотрели шкафы для хранения бытовых предметов и гладильной доски. Балкон утеплен, поэтому выходить на него можно в любое время года и заниматься домашними делами. Под хранение использовали все возможные места, даже пространство под кроватью сына.
Свет
Заказчики хотели, чтобы освещение в квартире было встроенным, а так как высота потолка небольшая, опускать его было нежелательно. Чтобы осуществить задуманное, мы приобрели встроенные светильники Donolux. Высота их встройки всего 3 сантиметра, а светодиодные лампы дают достаточное количество света. В зоне детской для подсветки стола использовали лаконичный и простой светильник Nemo, а около кровати — очень интересный поворотный бренда Vibia. Обе зоны гостиной объединяет скрытая подсветка.
Цвет
Для кухни цветовую гамму определила заказчица, выбрав лавандовый и зеленый; для гостиной мы подобрали гармоничный к этому цветовому решению вариант. В зоне приема гостей одну стену сделали акцентной и оформили ее полосатыми обоями, что визуально вытянуло пространство и приподняло потолок. В детской мы выделили стену за кроватью при помощи обоев с мелким нейтральным рисунком.
Мебель
Вся мебель в проекте выполнена на заказ, чтобы как можно эффективнее задействовать все пространство квартиры. Как только мы пообщались с заказчиками, я сразу же поняла что без мебели-трансформера нам не обойтись, так как заказчики были категорически против раскладного дивана и привыкли спать на полноценной ортопедической кровати. Поэтому наш выбор пал на мебель-трансформер фирмы Clei. Она идеально вписалась в наш современный, лаконичный интерьер своими простыми фасадами и функционалом. Кстати, для того чтобы немного облегчить пространство коридора, мы сделали двери нестандартной высоты.
Сложности
Самым сложным для реализации будет устройство ниши в ванной комнате, так как при минимальном размере она должна нести в себе много функций: закрывать трубы стояка, но открывать доступ к коммуникациям и счетчикам, а также иметь достаточно места для размещения ванных принадлежностей.
Сроки
По моим прогнозам на осуществление проекта потребуется 4-5 месяцев.
Советы читателям
1. Д ля создания современного лаконичного интерьера обращайте внимание на простоту форм.
2. Ес ли у вас небольшая квартира, используйте больше глянцевых поверхностей и зеркал: они визуально увеличат пространство.
3. В отделке стен используйте обои с различными визуальными эффектами: полосатые, фотообои с перспективой — они сделают помещения квартиры просторнее.
Однушка для семьи с ребенком зонирование. Как зонировать однокомнатную квартиру
Зонирование — один из популярных дизайнерских приемов для создания разных функциональных зон. Своего рода палочка-выручалочка, приходящая на помощь владельцам небольших квартир. Если нужно зонировать одну комнату для семьи из трёх человек, на помощь придут реальные фото интерьеров с примерами.
Итак, какие существуют способы зонирования пространства в однокомнатной квартире.
Ширма
Изначально ширмы использовались для барышень, дабы те могли переодеться, спрятавшись от посторонних глаз. Затем этот элемент интерьера был надолго забыт (наверное, виной всему эмансипация). А ведь, ширма является самым простым вариантом перегородки, мобильным и практичным.
Если нет желания или возможности возводить стационарные перегородки, и при этом хочется простора, ширма идеально подойдёт для разделения комнаты на две зоны. Подобрав ширму по стилю, ее можно в любой момент убрать, сделав пространство комнаты единым.


Шторы
Еще один вариант зонирование открытого пространства однокомнатной квартиры. Так же, как и ширму, шторы можно закрыть в любой момент, создав уютную зону для отдыха и релакса.
Будет ли это легкая полупрозрачная занавеска или плотная портьера — зависит от возраста и предпочтений проживающих. Если малыш ещё совсем маленький, то его кроватку можно поставить за воздушной занавеской, которая придаст помещению легкости. Ну а при наличии подросшего ребёнка для разделения стоит выбирать все же портьеры из плотного материала.
В любом случае отдавайте предпочтение светлым оттенкам текстиля.

Мебель
Расположение мебели вдоль стен — популярное решение у наших жителей. А вот дизайнеры рекомендуют для разделения комнаты ставить массивные шкафы и стеллажи перпендикулярно стене.
Чаще всего для зонирование используют стеллажи со сквозными полками, которые можно заполнить книгами или ящиками для хранения, декорированными под стиль всего помещения.

Но если для разделения установить стационарный большой шкаф-купе, то заднюю стенку можно декорировать зеркалами, фреской или постерами.А можно пойти другим путём и выкрасить стенку маркерной или грифельной краской и использовать для учебы.

Подиум
Разный уровень пола или потолка — один из популярных способов зонирования в современных маленьких квартирах. Это решение особенно актуально в помещениях с высокими потолками. На подиум можно вынести и зону столовой, и зону спальни, и детский уголок, и рабочую зону. В нише подиума легко обустроить удобные ящики и ли другие места для хранения.
Еще одним популярным и удобным вариантом является спальное место, спрятанное в подиуме. Для подиумов высотой больше полуметра рекомендуется соорудить ступеньки.

Раздвижные перегородки
На помощь в создании уютной отдельной зоны придут раздвижные перегородки — удобное средство, чтобы в любой момент либо отделить зону, либо сделать ее полностью открытой. При этом подобные перегородки, словно двери, создают закрытое пространство тогда, когда нужно.
Если за раздвижной конструкцией решено расположить спальное место родителей, куда не проникает естественный свет, то перегородку можно сделать полностью из стекла или со вставками, чтобы улучшить инсоляцию зоны.

Перегородки из гипсокартона
Мобильные или раздвижные конструкции — не единственный способ разделить комнату на несколько зон. Зонировать однокомнатную квартиру для семьи с ребенком можно с помощью стационарных перегородок из гипсокартона. Конечно, минус такой конструкции в том, что ее нельзя убрать как ширму или раздвинуть, как шторы. Но зато у родителей и ребенка появится маленькое, но свое собственное пространство.
К тому же, подобные перегородки лучше изолируют от шума, что очень актуально в случае с молодыми родителями. В разделительной перегородке можно сделать нишу для полок или встроенный гардероб. По форме перегородка может быть абсолютно любой — прямой, изогнутой, округлой.
Однушка для семьи с ребенком 32кв.м дизайн. Дизайн однокомнатной квартиры для семьи с двумя детьми
Процесс создания уютного жилища заметно усложняется, если в семье подрастают двое детей. Особенно если они разного пола и возраста.
Спасительным решением станет двухъярусная кровать. Помимо двух мест для сна, конструкция может иметь выдвижные ящики. Если для обоих детей необходимы столы для занятий, присмотритесь к длинным столешницам, за которыми поместятся сразу двое. Если же они разного возраста, лучше обустроить два отдельных места.
Скромные квадратные метры — еще не повод огорчаться и ставить крест на перспективах уютного и гармоничного совместного проживания. В качестве примера предлагаем рум-тур по квартире любимого нами блогера Марины Ведровой, в которой она проживает с мужем и двумя мальчуганами. Как ей удалось организовать пространство, вы узнаете из


Дизайн от студии Однушечка

Дизайнер Вера Василенко
Дизайн однокомнатной квартиры с нишей для семьи с ребенком
Такая планировка отчасти упрощает выбор места для кровати или дивана. Логичным кажется разместить их именно в нише, поскольку отделять перегородкой придется только одну сторону. Это самый простой и очевидный способ организации родительской зоны. Но далеко не единственный. Потолок разного уровня, фактура и цвета отделки послужат дополнительными средствами зонирования пространства.

Планируя интерьер однокомнатной квартиры для семьи с ребенком, не упустите из виду освещение. Тем более что в одной комнате придется совместить столько функций. Здесь должно быть достаточно света для чтения, каких-то домашних дел, но при этом было бы неплохо иметь возможность регулировать интенсивность света, чтобы в вечернее время можно было создать более мягкую атмосферу.
Нужен ли ночник, если вы встаете ночью, чтобы покормить и успокоить малыша? Или настольная лампа на письменном столе школьника? Торшер или напольная лампа возле кровати родителей, возможно, хватит и компактных прикроватных светильников? Отвечая на эти вопросы, вы поймете, что является необходимостью.
Если у вас низкие потолки, обратите внимание на точечные светильники, они дают много света и при этом очень компактны. Подсоединив их к разным выключателям, можно будет регулировать количество света в разных частях комнаты. Если же высота позволяет, подберите красивую люстру под стиль интерьера.



