Схема 3 комнатной квартиры. С чего начать
- Схема 3 комнатной квартиры. С чего начать
- План 3-х комнатной квартиры в панельном доме. Типовые планировки квартир Чтв, Ап. 2011
- Планировка 3-х комнатной квартиры в 5 этажном панельном доме. Планировки квартир-хрущевок: плюсы и минусы
- Перепланировка 3 комнатной квартиры 60м2. Перепланировка трёшки в типовой панельке: 7 схем (бесплатно)
- Планировка трехкомнатной квартиры хрущевки. Планировка трехкомнатной хрущевки
Схема 3 комнатной квартиры. С чего начать
Разумеется, прежде чем начинать чертить чертежи самостоятельно или прибегать к помощи специалистов, стоит определиться с тем, что же вы хотите получить в результате.
Расширить кухню? Изменить внешний вид коридора? Получить дополнительную спальню, которую можно было бы выделить подрастающему ребёнку или пожилым родителям, решившим переехать к вам? Тщательно продумайте, а нужно ли вам вообще начинать ремонт в своей квартире? Ведь начав, бросить дело на полпути уже не получится. И работа может растянуться на многие недели и даже месяцы; это будет действительно тяжелое испытание и для ваших нервов, и для семейного бюджета.

Когда решение окончательно принято, можно начинать составлять план. Конечно, если вы можете себе это позволить, то лучше доверить работу специалистам. Ведь зачастую перепланировка квартиры сопровождается переносом или даже сносом стен.

первоначальный план 3-комнатной квартиры

вариант перепланировки трехкомнатной квартиры со сносом стен коридора
Только опытные специалисты смогут учесть все нюансы, гарантируя, что в результате вы получите совершенно безопасное и уютное жилье. Они учтут, какие стены в квартире являются несущими (а значит, с ними стоит работать только в крайнем случае), а какие – самонесущие. Учтут и материал, из которого построен дом.
Разумеется, у них есть планы различных домов со всеми характеристиками: толщиной стен, постоянными нагрузками, несущими конструкциями и так далее. Поэтому они смогут выполнить всю работу максимально качественно, независимо от того, в каком доме находится ваша квартира – 83 серии или 137 серии.
планировка трехкомнатной квартиры в домах 137 серии
Перенос или снос капитальных стен – очень важный процесс. И выполнять его можно только после получения разрешения в соответствующих органах.

Эту работу точно лучше доверить специалистам. Да, придется заплатить за их помощь. Зато в результате нужные документы будут собраны за считанные дни. В противном случае процесс их сбора вполне может затянуться на несколько недель или даже месяцев. Служащие контор будут отправлять вас из одного кабинета в другой, требовать всё новые и новые справки и разрешения. Тем, кто проходил эту процедуру, она вспоминается только в страшных снах.
Вы можете сами выбрать подходящий для вас проект:
- Стандартный проект. Он имеет относительно невысокую цену. Но не всегда может полностью удовлетворить требования владельца квартиры, так как был разработан по желанию другого заказчика.
- Уникальный проект. Обойдется вам довольно дорого, зато здесь вы будете вольны в своих фантазиях. Ваша квартира может быть преображена до полной неузнаваемости. Стандартная 3-хкомнатная квартира в панельной пятиэтажке может превратиться в роскошные апартаменты, отвечающие всем вашим требованиям.
Какой вариант выбрать? Решайте сами!
Как правильно снести стену в квартире.
План 3-х комнатной квартиры в панельном доме. Типовые планировки квартир Чтв, Ап. 2011
Описание и типовые планировки квартир. От "сталинок" до современных.
| Сталинки 1954-1961 | 1955-1960 г.г. | 1955-1960 г.г. | 1954-1961 г.г. | |||
| 2-, 3-этажные кирпичные дома
| 4-, 5-этажные кирпичные дома | 4-этажные кирпичные дома | ||||
| Хрущевки 1958-1967 | 1960-1967 г.г. | 1963-1967 г.г. | 1958-1964 г.г. | 1959-1960 г.г. | ||
| 5-этажные панельные дома | 5-этажные панельные дома | 4-,5-этажные кирпичные дома | 4-,5-этажные блочные дома | |||
| 1964-1967 г.г. | 1964-1967 г.г. | |||||
| 5-этажные кирпичные дома | 5-этажные блочные дома | |||||
| Брежневки 1966-1975 | 1966-1973 г.г. | 1966-1970 г.г. | 1967-1977 г.г. | 1966-1967 г.г. | ||
| 5-этажные панельные дома | 5-этажные панельные дома | 5-этажные кирпичные дома | 5-этажные панельные дома (для малосемейных) | |||
| 1967-1970 г.г. | ||||||
| 5-этажные панельные дома (блок-комнаты) | ||||||
| Стандартные 1968-1999 | 1970-1976 г.г. | 1968-1977 г.г | 1970-1977 г.г. | |||
| 9-этажные панельные дома | 9-этажные панельные дома | 9-этажные кирпичные дома | 5-этажные панельные дома (блок-комнаты) | |||
| 1977-1998 г.г. | 1973-1975 г.г. | 1972-1977 г.г. | ||||
| 9-этажные панельные дома (для малосемейных) | 9-этажные панельные дома (для малосемейных) | 9-этажные панельные дома (блок-комнаты) | ||||
| 1973-1985 г.г. | ||||||
| 12-этажные панельные дома | ||||||
| Улучшенные | 1976-1983 г.г. | 1977-1985 г.г. | 1976-1994 г.г. | 1977-1996 г.г. | ||
| 16-этажные панельные дома | 9-этажные панельные дома | 9-этажные панельные дома | 9-этажные панельные дома | |||
| 9-этажные панельные дома | 12-этажные панельные дома | |||||
| 1983-1998 г.г. | ||||||
Планировка 3-х комнатной квартиры в 5 этажном панельном доме. Планировки квартир-хрущевок: плюсы и минусы
Хрущевские малометражки можно встретить всюду: от мегаполисов до маленьких райцентров. Эти дома возводились на протяжении почти трех десятков лет и изначально планировались как временные дома для советских граждан. Но, как известно, нет ничего более постоянного, чем временное, и эти дома существуют на рынке недвижимости и сейчас. Несмотря на все минусы, это вполне конкурентноспособный вид жилья. И все это благодаря преимуществам, которые у них тоже есть.
Плюсы
- Существенный плюс — развитая инфраструктура. Поскольку эти дома возводились больше полувека назад, они уже успели как следует обрасти школами, садами, поликлиниками, парками и другими общественно-полезными объектами.
- Транспортная доступность. Да, возможно, новые ЖК комфортабельнее и просторнее, но советские малометражки обеспечены всеми видами транспорта, до них не надо добираться на метро с пересадкой на маршрутку и несколько километров идти пешком.
- Сегодня старые дома подлежат сносу, в первую очередь это касается Москвы и других крупных городов, а это значит, что, инвестировав в квартиру хрущевского типа, вы наверняка в будущем получите обновленное жилье или, как вариант, реконструкцию своего старого дома.
Минусы
- Слабая шумоизоляция — если вам попались шумные соседи, вы рискуете стать невольным свидетелем их разговоров. Чуть лучше дело обстояло в кирпичных домах.
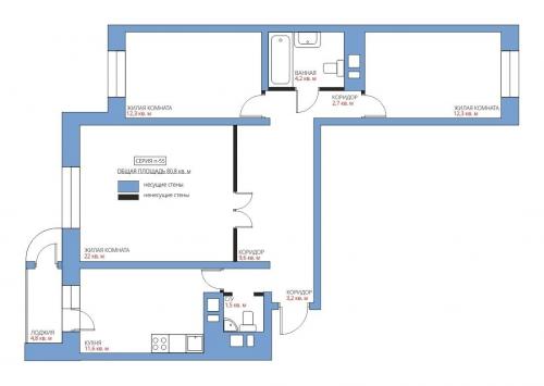
Перепланировка 3 комнатной квартиры 60м2. Перепланировка трёшки в типовой панельке: 7 схем (бесплатно)
Что можно сделать с типовой квартирой 80 кв. м без существенной перепланировки? Например, найти место для дополнительной спальни, обустроить гардеробную или перенесли кухню в коридор.

Типовая планировка
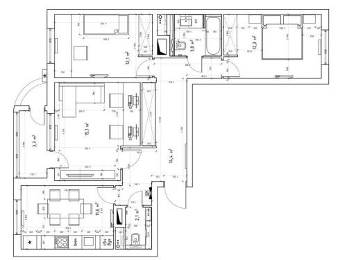
Квартиры в домах типовой серии П-111М довольно просторные – трёшка занимает 80 кв. м. Гостиную 22 кв. м и широкий коридор разделяет ненесущая стена, которую можно перенесли, чтобы сделать перепланировку. А симметричные спальни 12 кв. м ограничены несущими стенами, поэтому их изменить уже не получится. Площадь кухни допускает различную планировку даже с островом и барной стойкой. К тому же в некоторых случаях проём можно перенести на несущую стену в гостиную.

Вариант 1
Изначальная планировка квартиры довольно неплоха, поэтому можно ограничиться удачной расстановкой мебели. В гостиной предусмотрим диванную зону и рабочий стол у окна, на кухне – угловой гарнитур со всей необходимой техникой. Дальние комнаты используем в качестве спальни и детской, в каждой из которых установим шкаф вдоль стены, смежной с санузлом. А ширину коридора используем для размещения очень вместительной системы хранения.

Вариант 2
В этом варианте площадью гостиной пожертвовали ради более удобного входа на кухню и в санузел. В стену гостиной с одной стороны встроили шкаф, с другой – широкий рабочий стол на двоих. Линейный гарнитур на кухне позволяет установить большой обеденный стол на шесть персон. Меньшие комнаты превратятся в детскую и спальню со стандартным комплектом мебели.

Вариант 3
Один из вариантов типовой планировки предполагает вход на кухню из гостиной. Так оба помещения будут более просторными. Это позволит на кухне установить барную стойку и более длинный угловой гарнитур, а на место коридора встроить шкаф для верхней одежды. Стену между гостиной и коридором можно снести, оставив лишь небольшой простенок, например, с имитацией камина. Со стороны холла за ним можно скрыть мини-гардеробную.

Вариант 4
Этот вариант очень похож на предыдущий, но возводить гардеробную здесь не стали, ограничившись лишь системой шкафов разной ширины напротив друг друга. Кроме того, на балконе при кухне установили обеденный стол. А вместо кабинета здесь появилась комната для двоих детей. Чтобы уместить на 12 квадратах всё необходимое, выбрали двухъярусную кровать и широкий письменный стол во всю стену у окна, который заканчивается стеллажами для книг и игрушек.

Вариант 5
Площадь гостиной и ширина коридора позволяют перенести стену между ними и превратить трёхкомнатную квартиру в четырёхкомнатную. Гостиная получится проходной и тёмной, поэтому можно вмонтировать в стену окно или выложить её из стеклоблоков. Меньшие по площади жилые комнаты отведём под спальню и детскую для старшего ребёнка. А 14-метровую детскую по соседству с гостиной разделят двое младших (или однополых) детей. У окна установим для них два письменных стола, а две кровати разделим стеллажом.

Вариант 6
Планировка в этом варианте примерно такая же. Но если дети старше, то им можно предоставить больше свободы и расположить их спальни в глубине квартиры. Планировка детских комнат абсолютно симметричная – в каждой помимо кровати есть шкаф, письменный стол у окна и пара стеллажей рядом с ним. Ещё один шкаф встроим в специально возведённую нишу в гостиной. Под систему хранения отведём целую стену в спальне. В четырёхметровом санузле заменим типовую ванну на угловую гидромассажную.

Вариант 7
Самый сложный как для реализации, так и для согласования вариант – перенос кухни в гостиную. Это позволит создать полноценные четыре комнаты, не жертвуя ощущением простора. Формально гарнитур расположен в нежилой зоне – на территории коридора. На объединённой кухне-гостиной появится зона столовой с большим обеденным столом. Такая планировка позволит встроить в прихожей шкаф для верхней одежды и ещё один для сезонных вещей – в коридоре. Санузел расширится за счёт коридора, и теперь он станет мастер-ванной при спальне. В дальних комнатах можно обустроить две детские комнаты или спальню, если в квартире живёт сразу три поколения семьи.

Если вы хотите видеть больше такого в своей ленте — ставьте лайк. Подписывайтесь на канал и узнавайте свежие тренды в дизайне интерьеров.
Автор: Павел Шелягин.
Планировка трехкомнатной квартиры хрущевки. Планировка трехкомнатной хрущевки

Здравствуйте, уважаемые читатели. Как и обещала, хочу продолжить тему начатую в статье про типовые планировки квартир . Сегодня речь пойдет о планировках трехкомнатных квартир в хрущевке .
Напомню, что хрущевками мы называем те дома, которые имеют следующие отличительные особенности:
2. Этажность – почти всегда это пять этажей.
3. Площадь кухни 5.5 – 6 кв.м.
Вот, пожалуй, именно маленькие кухни и являются самым большим недостатком хрущевок. Еще одним недостатком является то, что практически все двух- и трехкомнатные квартиры имеют смежные комнаты.
Рассмотрим первый вариант, так называемые трехкомнатные «распашонки»
Площади 44/32/5.5 кв.м.

Это самая маленькая трехкомнатная квартира. Практически это та же самая хрущевка – «книжка», только одну из комнат поделили на две.
Перепланировке практически никакой не поддается. Разве что можно сделать кухню – столовую и из нее выходы в две небольшие спальни.
Второй вариант похож на «книжку» в двухкомнатной, плюс одна отдельная комната.
Площади 54/43/5.8 кв.м.

Уже лучше. Опять же можно разделить все комнаты, правда, за счет довольно – таки существенного уменьшения площади одной из них.
Третий вариант трехкомнатной квартиры в хрущевке напоминает «трамвай» — смотри статью Планировки двухкомнатных квартир в хрущевках .
Площади 54/49/5.5 кв.м.

На рисунке штрих – пунктиром показано как, легким движением руки, можно установить гипсокартоновую стеночку, и тем самым, сделать раздельными все комнаты. А вход в одну спальню сделаем напротив входа в другую спальню. Две маленькие кладовочки в конце коридора можно разломать и поставить встроенный шкаф – купе. Если дверцы шкафа сделать зеркальными, то это визуально сделает прихожую более просторной.
И, наконец, самый интересный вариант планировки трехкомнатной квартиры в хрущевке.
Площади 60/43/6 кв.м.

Все комнаты раздельные – можно ничего не перепланировать, кухня, правда, как и в любой хрущевке шесть метров, но, если уж совсем не помещаетесь, можно объединить ее с маленькой комнатой и сделать кухню – столовую.
Что еще важно для начинающего риэлтора, помимо того, что основные планировки он должен знать назубок?
Важно понимать, что от особенностей планировки квартиры напрямую зависит ее рыночная стоимость. Если комнаты в квартире смежные, то это обстоятельство существенно уменьшает стоимость объекта. Практически любую трехкомнатную квартиру можно перепланировать так, чтобы все комнаты были раздельными, но где-то это сделать проще, где – то сложнее. Взять, например второй и третий варианты. Площади квартир примерно одинаковые, но в трехкомнатном «трамвае» перепланировку сделать легче, поэтому и ценится такая трехкомнатная квартира на рынке дороже. Во всяком случае, при прочих равных условиях, продастся она быстрее. Стоимость трехкомнатной квартиры со всеми раздельными комнатами будет выше по сравнению со всеми прочими вариантами.
В следующей статье о планировках опишу различные варианты трехкомнатных квартир в девятиэтажных типовых панельных домах.