Объединение кухни с гостиной с газовой плитой. Объединение кухни с газовой плитой с комнатой.
Объединение кухни с гостиной с газовой плитой. Объединение кухни с газовой плитой с комнатой.
Объединение комнаты и кухни, оборудованной газовой плитой, запрещено пунктом 10.17 Приложения 1 508-ого постановления. Более того, согласно пункту 10.16 того же приложения, запрещено устраивать даже простой проём в перегородке, разделяющей эти помещения, без установки двери. Чаще всего этот пункт является основным препятствием, когда затевается перепланировка хрущевки , так как в них очень маленькие кухни.Таким образом, при демонтаже перегородки между газифицированной кухней и комнатой вместо неё необходимо установить раздвижные перегородки или рольставни.
При этом отметим, что данная норма относится только к объединению кухни именно с жилой комнатой, то есть наличие перегородки между газифицированной кухней и коридором не обязательно. Ниже мы приводим типичный пример такой перепланировки.
2.1. Перепланировка кухни в кухню-гостиную при газовой плите.

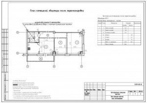
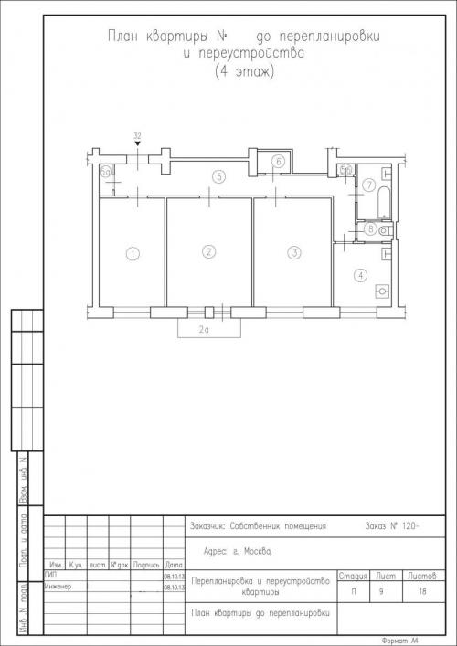
до перепланировки

после перепланировки
2.2. Замена газовой плиты на электрическую.

Разрешение на замену газовой плиты электрической (пункт 1.11)
Таким образом, для осуществления возможности "чистого" объединения комнаты и кухни многие стремятся произвести замену газовой плиты на электрическую. Легче всего заменить её на электрическую двухкомфорочную малой мощности. Для этого достаточно, чтобы на квартиру была выделена электрическая мощность не менее 3,5 кВт. О чём берется соответствующая справка в Управляющей компании. Для замены же газовой плиты на полноценную четырёхкомфорочную электрическую необходимо, чтобы выделенная на квартиру мощность составляла не менее 7,5 кВт., что в домах с газовыми плитами бывает редко. Если мощности не хватает, то придётся пройти несколько кругов ада: получить техусловия в Мосэнергосбыте, выполнить в специализированной организации проект электроснабжения квартиры , выкупить дополнительные мощности, провести отдельный провод в квартиру от электрощитовой, согласовать прокладку этого провода и так далее… Так что легче пойти первым путём и указать в документах именно двухкомфорочную плиту, а уже по факту установить четырёхкомфорочную. Затем на приёмке договориться с комиссией, чтобы они не акцентировали на этом свое внимание, а само обозначение двухкомфорочной плиты на поэтажных планах БТИ практически не отличается от обозначения четырехкомфорочной. Правда, при такой перепланировке не следует забывать, что в старых домах на квартиру выделяется очень мало мощности, так что одновременное использование полноценной четырехкомфорочной электрической плиты совместно с другими электроприборами может привести к элементарному вышибанию квартирных пробок или автоматов, что делает её эксплуатацию в таких условиях ужасно не комфортной, а иногда и вовсе невозможной. Для таких случаев, зачастую, лучше ограничиться использованием именно двухкомфорочной электрической плиты. Также, согласно пункту 2.1.2 Приложения 1 к Постановлению Правительства Москвы №508 замену газовой плиты на электрическую необходимо выполнять на основании проекта перепланировки. Более того, данный проект необходимо согласовать с Мосгазом.
Объединение кухни с кладовкой. 5 фатальных ошибок при объединении кухни с гостиной
Идея организовать гостиную-кухню нравится многим, но не всегда результат получается таким как ожидали. Случается, что после такой перепланировки вскрываются серьезные проблемы и хочется все вернуть в исходное состояние.

Какие допускают ошибки и как их избежать при объединении кухни с комнатой - читайте в статье.
1. Сложно согласовать в однокомнатной квартире
Важно знать, что не в каждой квартире допустимо устраивать объединение кухни с комнатой, например если квартира однокомнатная, то такую перепланировку согласовать будет очень сложно (почти невозможно).
Согласно жилищному регламенту жилая площадь в квартире должна быть обособлена от вспомогательной.
При объединении кухни и комнаты демонтируется перегородка и жилая площадь теряет свои характеристики (условно исчезает).
Встречаются случаи, когда в жил.инспекции на плане БТИ принимают пунктирную линию за границу жилой зоны и считают ее обособленной, но это скорее исключение.

Чаще всего в жил.инспекции отказывают в подобной перепланировке по причине отсутствия в жилой квартире выделенной жилой зоны.
Но если квартира двухкомнатная, то перепланировку согласуют - т.к. одна комната остается обособленной.
2. Ошибка в эргономике
Прежде чем начинать объединение необходимо не только согласовать перепланировку, но и разработать проект расстановки кухонной мебели и оборудования.

Бывает после перепланировки начинаются новые проблемы: нет возможности устроить удобную и эргономичную кухню.
Прежде чем начинать переделку важно разработать проект и определить сценарий проживания. Решит ли объединение проблемы или спровоцирует новые?
Начинать перепланировку стоит только в том случае, когда она гарантирует решение проблем и комфорт проживания.
Здесь поможет совет или консультация специалиста, который увидит спорные моменты в расстановке оборудования и решит их.
3. Технические ошибки
Даже при законной перепланировке водяное оборудование не должно покидать пределов изначальной кухни.

Это значит, что мойка и посудомоечная машина не должны быть перемещены на добавленную площадь (на территорию бывшей комнаты).

Это ограничивает возможности перестановки оборудования.
Также помните, что перенос водяного оборудования должен быть просчитан специалистом и определена техническая возможность переноса (обеспечен уклон для трубы канализации и подводки воды).
4. Слабая вытяжка
Чтобы в гостиной-кухне было комфортно находиться во время приготовления еды важно обеспечить работающую систему вентиляции.
В типовых домах, как правило, предусмотрена только вытяжка (удаление отработанного воздуха), а приток обеспечивается проветриванием.
Это значит, что над варочной поверхностью должна быть мощная вытяжка, которая будет уносить отработанный воздух в общедомовую вент.шахту, а приоткрытое рядом окно будет компенсировать потерю воздуха.
Важно: установка кондиционера в гостиной-кухне не решит проблему с вентиляцией, а только приведет к порче оборудования и частой замене фильтров в кондиционере.
5. Нарушение зонирования
Даже в объединенной гостиной-кухне нужно зонировать пространство. Иначе помещение превратится в большую кухню.
Зону кухни следует ограничить мебелью и освещением.
Предусмотрите разные варианты подсветки для каждой зоны: подсветка рабочего фронта столешницы, подсветка обеденного стола, освещение гостиной, общий свет кухни и т.д.

Световое зонирование позволит разделять функциональные зоны и сделает помещение более уютным.
Перепланировка с газовой плитой 2019. Главные особенности
Кухонное пространство имеет наибольшее количество запретов для перепланировки.
Ст. 25-26 ЖК РФ предусматривает следующие пункты, которые относятся к запрещающим:
- переоборудование вентиляционных проемов – в частности нельзя сужать шахту, переносить ее в другое место и ограничивать доступ, закрывая предметами мебели;
- перенос газовой плиты – запрещено устанавливать оборудование дальше, чем на 1 метр от положенного места или на расстояние мягких подводящих конструкций;
- полноценное объединение кухни и комнаты (снос стены);
- размещение газовых коммуникаций внутри стен;
- запрещается расширение площади кухонного пространства за счет санузла и балкона;
- оборудование кухонной зоны на жилой площади (запрет на перенос газовых и водопроводных коммуникаций).
Статья 25. Виды переустройства и перепланировки жилого помещения
Статья 26. Основание проведения переустройства и (или) перепланировки жилого помещения
Несколько проще обстоят дела с кухней, которая оборудована электрической плитой. Законодательством не предусматривается полная изоляция кухонного пространства для исключения попадания газа в жилую зону.
Допускается снос стены, если она не несущая, или оборудование проема без необходимости установки перегородки или двери. Единственным моментом считается обязательное разделения двух зон, что достигается разным напольным покрытием.
Переоборудование кухни с газовой плитой в электрическую вполне возможно, но требует контроля инспекции за процессом. Также необходима перепланировка помещения и полный вывод газового оборудования из кухонного пространства.
Стоит разделять понятие «перепланировка» и «переустройство». Незначительное перемещение оборудования в переделах одной комнаты относится к переустройству и не требует согласования с инспектирующими службами (отсутствуют основания для корректировки плана квартиры и внесения изменений в техпаспорт).
Перепланировка подразумевает именно те изменения, которые обязательно касаются техпаспорта квартиры – увеличение и уменьшение площади комнаты, перенос инженерного оборудования, демонтаж проемов и т.д. Все действия необходимо согласовывать с БТИ, а для ремонта – получить разрешение.


