Разделение зон в однокомнатной квартире. Как разделить комнату на две зоны: детскую и взрослую (фото)
- Разделение зон в однокомнатной квартире. Как разделить комнату на две зоны: детскую и взрослую (фото)
- Зонирование однокомнатной квартиры с нишей. Стили, применяемые для оформления
- Зонирование однокомнатной квартиры с помощью перегородки. Зонирование 1-комнатной квартиры освещением
- Зонирование однокомнатной квартиры для семьи с ребенком. Однушка 35 кв. м для семьи с двумя детьми
- Зонирование однокомнатной квартиры на спальню и детскую. Принципы разделения
- Зонирование однокомнатной квартиры гипсокартоном. Поэтапное зонирование комнаты гипсокартоном.
- Видео приемы ЗОНИРОВАНИЯ пространства в интерьере
Разделение зон в однокомнатной квартире. Как разделить комнату на две зоны: детскую и взрослую (фото)
Дизайн однокомнатной квартиры для семьи с ребенком-школьником создать сложнее, особенно при наличии всего 18 кв. м, так как это фактически зонирование мест для трех взрослых людей, которые хотят иметь собственное место.
Зонирование однокомнатной квартиры в таком случае требует ухищрений. Кроме уголка для отдыха школьнику нужно место, чтобы учиться. Тут на помощь придети многофункциональная мебель, а именно:
- Стол-шкаф: во время работы над домашним заданием его можно вытаскивать вместе с учебными принадлежностями, после спрятать все в шкаф, тем самым освободив место для других целей.
Компактная рабочая зона с откидным столом
- Подиум. Он может быть разных форм и высоты. Подобная конструкция позволит четко отделить место школьника от взрослого. Тут же, под подиумом, можно спрятать кровать, которая имеет колесики. На время сна ее нужно будет выдвигать, а потом прятать. Если подиум будет высокий, стоит предусмотреть ступеньки для удобства перемещения.
Комфортная детская зона на подиуме
Высокий потолок смотрится интересно в темном цвете
Совет! На верхнем ярусе подиума можно обустроить рабочее место , а если есть такое желание, даже мини-физкультурную площадку, например, лестницу с турником.
Можно купить специально созданное комплексное место для школьника. В подобную переносную конструкцию будет включено рабочее место, кровать на втором ярусе и шкаф. Эдакая крепость – все в одном.
Кровать-чердак для ребенка под заказ поможет организовать пространство максимально удобным и практичным
Стойка-разделитель одновременно отделяет спальное место и служит полкой под фотографии
Совет! Если у вас в квартире высокие потолки, можно поднять спальное место школьника под потолок в буквальном смысле слова. Для этого нужно сделать крепкий каркас, по которому смонтировать лестницу. Расстояния до потолка в 1-1,5 метра вполне хватит для комфортного сна, а если еще продумать раздвижные двери, подросток сможет получить настоящий уголок для личного пространства, что в его возрасте очень важно.
Зонирование однокомнатной квартиры с нишей. Стили, применяемые для оформления
Минималистический стиль дизайна квартиры с нишей – это одно из наиболее подходящих решений, применяемый в условиях малогабаритных квартир.
Минимализм не имеет в виду то, что в комнате будет стоять мало мебели.
Этот стиль предусматривает содержание небольшого количества предметов в интерьере, каждый из которых сможет выполнять несколько функций.
Фото:






Подбирая мебель для небольшой квартиры, нужно предпочесть вещи-трансформеры:
- стол, преобразовывающийся в диван;
- диван – в постель;
- складывающиеся стулья и стол;
- столешницу-гладильную доску, прикрепленную к стене на петлях.
В квартире, состоящей из одного жилого помещения, часто гостиная и спальня совмещены вместе. Поэтому комната, оформленная в дизайнерском модерн-стиле, представляет собой гармоничное сочетание предметов интерьера по цвету и фактуре.
Мебельный гарнитур имеет стильную и выразительную отделку, благодаря которой соблюдены эстетические требования.
В однокомнатной квартире очень удобно пользоваться мягкой мебелью. Она функциональна, удобна и изящна, к тому же имеет разные размеры.
Размеры мебели можно подобрать к любой комнате. Цвет, рисунок и фактуру тканевой обивки можно подобрать по вкусу, руководствуясь общей стилистикой помещения.
В большом количестве вариантов дизайнерского оформления применяемые элементы стиля модерн влияют на тон всего интерьера жилого помещения.
Жильцы этой квартиры (молодая семья, пожилая супружеская пара или холостые люди) будут ощущать уют и комфорт, находясь в ней.
Арт-деко выделяется яркой современной интерпретацией. Он является оригинальным современным стилем, включающим в себя элементы классического стиля.
В качестве материала, использующегося для отделки мягкого дивана, кресел, столов или комодов, встречается кожа.
Интерьер и оформление однокомнатной квартиры с нишей из-за этого становится привлекательным и уникальным.
Этот стиль позволяет сделать из тесной малогабаритной квартиры современное помещение, запоминающееся красотой и функциональностью.
Фото:

Дизайнерский стиль арт-деко разрешает применение элементов экзотики. Например, слоновую кость, натуральную кожу, дерево, бамбук и другие необычные привлекающие внимание вещи.
Интерьер однокомнатной квартиры с нишей, выполненный в дизайнерском стиле арт-деко, говорит об имеющемся творческом потенциале хозяина дома, его экстравагантности и склонности к эпатированию публики. Он является наилучшим вариантом оформления комнаты, в которой живет молодая семья.
Зонирование однокомнатной квартиры с помощью перегородки. Зонирование 1-комнатной квартиры освещением
Зонирование квартиры светом – еще один модный тренд. Здесь на помощь приходят комбинации встроенных и подвесных светильников, диодная подсветка, дюралайт, настольные и напольные лампы. Особенно удобно встраивать многоярусное освещение в гипсокартонные или натяжные потолки.
При моделировании сложного освещения выделяют четыре уровня:
1. Верхний – это потолочные люстры и споты;
2. Средний – все подвесные конструкции;
3. Нижний – компактные локальные светильники и подсветка ниш;
4. Внутренний – встроенная подсветка шкафов, гардеробных и подобных конструкций.
Зонирование светом выигрывает в маленьких однокомнатных квартирах и студиях, потому что не занимает пространство. Обрати внимание на такие интересные решения:
- Светодиодная подсветка для разграничения пространства на несколько частей;
- Закарнизная подсветка, которая визуально раздвигает стены;
- Локальный свет для сложного моделирования пространства;
- Светильники теплого спектра для комнаты в темных тонах;
- Светильники на низких подвесах над столешницами для равномерного освещения и выделения обеденной зоны;
- Светодиодная лента для подсветки ниш, шкафов, подиумов, стеллажей, декоративных конструкций и потолочных балок;
- Прикроватные светильники для создания уютного уголка у спального места;
- Необычные асимметричные лампы для креативных дизайнерских интерьеров;
- Отказ от традиционных громоздких люстр в пользу продуманного локального освещения.
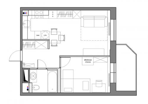
Зонирование однокомнатной квартиры для семьи с ребенком. Однушка 35 кв. м для семьи с двумя детьми
Изолированную комнату отдали под детскую, а в кухне-гостиной установили удобный диван-кровать и вместительную систему хранения.

Площадь однокомнатной квартиры в ЖК «Юнион» в Санкт-Петербурге, которую оформили специалисты бюро Cubiq Studio, составляет всего 35 м2. Жить в ней планирует семья с двумя детьми. Им могло бы быть тесно на скромной площади, если бы не главное преимущество квартиры. Коммуникации подведены в более глубокой и темной части большой комнаты. Благодаря этому удалось превратить её в кухню-гостиную, а маленькую изолированную спальню превратить в детскую.

Поскольку родителям предстоит спать в гостиной, дизайнеры выбрали диван-трансформер, который превращается в полноценную двуспальную кровать. Напротив неё установили комод под телевизор и пару открытых полок для книг.

Зону прихожей отделили от основного пространства нишей со встроенным шкафом для верхней одежды. А чтобы помещение не казалось тесным, в холле установили большое зеркало в белой раме, а проем оставили широким. Благодаря этому комната будто продолжается за пределы прихожей.

Кухонный гарнитур встроили в небольшую отведённую для него нишу. Выбрали максимально вместительную П-образную модель с минималистичными белыми матовыми фасадами. Верхние шкафы чуть уже, а нижние – вровень со шкафом, который как будто их продолжает. На самом деле это система хранения для всех вещей, которые необходимы большой семье.

Поскольку зона кухни уж очень тесная, одну из стен освободили от верхних шкафов. Вместо них предусмотрели открытые полки для зелени и специй. В качестве кухонного фартука здесь использовали грифельную краску.

В детской комнате появилась двухъярусная кровать, причём спальные места расположены перпендикулярно друг другу. Это позволило внизу обустроить дополнительные полочки и зону отдыха с пуфом-игрушкой. Рядом – письменный стол со всеми необходимыми принадлежностями.

Шкаф выбрали с открыто-закрытой системой хранения. Это позволяет хранить в нём и повседневную одежду, и игрушки с книжками. Предусмотрели и компактную шведскую стенку, которая занимает минимум места.


Хотите видеть больше подобного в своей ленте – ставьте лайк.
Чтобы регулярно смотреть свежие подборки интерьеров со всего мира, подпишитесь на канал .
Зонирование однокомнатной квартиры на спальню и детскую. Принципы разделения
Помимо того, что в квартире нужно выделить каждому члену семьи свое пространство для сна, отдыха и хобби, необходимо организовать вместительную систему хранения, оставить место для свободного передвижения. Задача не из простых, она требует наличия фантазии. Искусство дизайна достигло таких высот, что позволяет справиться с задачей создания комфорта и уюта даже на маленькой площади.
Чтобы правильно зонировать однокомнатную квартиру, важно учитывать основные принципы разделения пространства.
Перед началом работ необходимо:
- Определиться с количеством необходимых функциональных зон. В каждой квартире нужно выделить минимум 4 необходимые для комфортной жизни зоны: кухню, гостиную, ванную комнату и санузел, спальню. Другие зоны (например, рабочее место и детская) для каждой семьи индивидуальны.
- Планировка некоторых квартир допускает расширение пространства за счет сноса межкомнатных перегородок или объединения лоджии с жилым помещением. Перед началом проведения каких-либо работ необходимо убедиться в расположении опорных конструкций, чтобы не демонтировать несущие стены.
- Сделать одну комнату площадью до 17 квадратов уютной и комфортной непросто. Правильно составленный план, в котором учитывается каждый сантиметр, поможет справиться с задачей гораздо проще. Изначально необходимо определиться с размещением всех функциональных зон.
- Объединить гостиную и спальню в одной комнате площадью 18 кв. м можно, выделив место для отдельной двуспальной кровати и мягкой мебели для приема гостей.
- Кухня и гостиная – оптимальный вариант, если площадь кухни позволяет разместить мягкую мебель и стол для приема гостей.
- Спальня и детская – при совмещении таких зон важно учитывать интересы каждого члена семьи, чтобы выделить для каждого свой комфортный и уютный уголок, при этом не перегрузив интерьер.
Разделить пространство на разные зоны кажется непосильной задачей. Но для этого важно знать лишь основные способы зонирования, которые работают в каждой квартире. Чтобы дизайн квартиры был функциональным и комфортным, можно использовать разные предметы обстановки, от ширмы до мебели. Выбор цвета и фактуры – не последние составляющие в оформлении небольшой квартиры.
Зонирование однокомнатной квартиры гипсокартоном. Поэтапное зонирование комнаты гипсокартоном.

Зонирование комнаты гипсокартоном гарантирует быстрое изменение в конфигурации помещения без потери его функциональности. Удобный и надежный материал позволяет провести необходимые работы своими силами без привлечения квалифицированных специалистов, что обязательно скажется на стоимости ремонта.
Часто стремительное расширение предприятия или увеличение семьи требует быстрой перепланировки. Если недостаточно средств на покупку новой квартиры или снятие более просторного офиса, зонирование комнаты гипсокартоном поможет быстро справиться с возникшей проблемой. Для того, чтобы с максимальным комфортом разместиться в однокомнатной квартире потребуется несколько отдельных помещений. Гипсокартон как нельзя лучше подходит для подобной работы. Он легок, экологически безопасен и легко монтируется.