Ручная работа: создание металлического забора
- Ручная работа: создание металлического забора
- Связанные вопросы и ответы
- Какие инструменты и материалы необходимы для изготовления металлического забора
- Как выбрать подходящий металл для изготовления забора
- Как измерить и разрезать металл на нужную длину
- Как соединить секции забора
- Как закрепить забор в земле
- Как избежать ошибок при изготовлении металлического забора
Ручная работа: создание металлического забора
Металлические заборы отличаются в зависимости от материала изготовления, способа и технологии. Каждый из них подходит в том или ином случае. Да и вкус у людей разный: кому-то нравится металлический забор секционный, а кто-то предпочитает изделия из профнастила (металлопрофиля). Вот перечень конструкций, которые можно сделать из металла:
- Кованные заборы и ворота.
- Ковано-сварные конструкции.
- На основе сетки-рабицы.
- Из профнастила.
- На основе сварной сетки.
- Забор из металлического штакетника, прутьев и т. д.
Безусловно, среди них есть более и менее популярные варианты. Мы рассмотрим особенности и принцип создания самых популярных из них.
Хочется отметить, что каждый из видов забора имеет похожую конструкцию. Если говорить в общем, то изделия из металла состоят из:
- опорных элементов. Это столбы для забора металлические, которые вкапываются или бетонируются в землю. Именно они являются костяком каркаса и выполняют основную роль. В зависимости от забора, их нужно углублять в землю на треть их высоты. Например, если нужно сделать забор, высотой 2 м, то рекомендуемая высота опорного столба равна 3 м (1 м будет вкопан в землю);
- металлические лаги. Они соединяются с опорными столбами и формируют окончательный каркас. В зависимости от расположения полотна забора, планки могут крепиться к столбам в вертикальном или горизонтальном положении. Именно к планкам будет присоединяться наш следующий основной элемент конструкции;
- полотно забора. Оно и формирует ту видимую и защитную часть. Полотно фиксируется на созданный каркас. Опорные столбы могут быть из металла или камня, лаги или планки только из металла, а вот что касается полотна, то оно бывает самым разным. От его выбора и будет зависеть вид металлической конструкции. Самый простой вариант – сетка-рабица или сварная сетка, часто используется профнастил, ковка, металлические штакетники и т. д. Все зависит от желания и возможностей заказчика.
Связанные вопросы и ответы:
Вопрос 1: Что нужно для изготовления металлического забора своими руками
Ответ: Для изготовления металлического забора своими руками необходимо иметь следующие материалы и инструменты: металлическую арматуру, металлические прутья, металлические профили, болты, гайки, шурупы, клепальный инструмент, металлорежущий инструмент, шлифовальный инструмент, инструменты для нанесения защитного покрытия.
Вопрос 2: Как выбрать подходящую арматуру для металлического забора
Ответ: При выборе арматуры для металлического забора необходимо учитывать ее прочность, устойчивость к коррозии и внешний вид. Также следует выбирать арматуру, которая соответствует размерам и форме металлических прутьев и профилей.
Вопрос 3: Как изготовить металлические прутья и профили
Ответ: Металлические прутья и профили можно изготовить самостоятельно или купить готовые. Для изготовления металлических прутьев и профилей необходимо использовать металлорежущий инструмент, такой как нож, пила или лазерная установка.
Вопрос 4: Как соединить металлические прутья и профили
Ответ: Металлические прутья и профили можно соединить с помощью болтов, гайок, шурупов или клепального инструмента. При клепании необходимо использовать клепальный инструмент и следить за правильным наложением металлических деталей друг на друга.
Вопрос 5: Как защитить металлический забор от коррозии
Ответ: Для защиты металлического забора от коррозии можно использовать защитное покрытие, такое как лак, краска или порошок. После нанесения защитного покрытия необходимо подождать, пока оно высохнет, чтобы забор был защищен от влаги и других факторов, способных вызвать коррозию.
Вопрос 6: Как установить металлический забор на своей территории
Ответ: Для установки металлического забора на своей территории необходимо выбрать подходящее место и забить в землю столбы. Затем необходимо соединить металлические прутья и профили с помощью болтов, гайок, шурупов или клепального инструмента. После установки металлического забора необходимо проверить его устойчивость и прочность.
Какие инструменты и материалы необходимы для изготовления металлического забора
Даже очень опытные установщики не знают как сделать заборы из профлиста без предварительного подсчета необходимых материалов. Чтобы посчитать объемы заготовок, которые нужно приобрести, схему ограждения дополняют чертежом стандартных секций и отдельными чертежами для нестандартных участков. Основной параметр, от которого отталкивается проектирование, - размер высоты забора, который в большинстве случаев варьируется в пределах от 1,5 до 2,5 м. С его помощью вы рассчитываете высоту опорных столбов, учитывая, что глубина их погружения в грунт составляет 1,2-1,5 м.
Длина каждой секции не должна превышать 5 м, в противном случае необходимо существенно увеличить толщину и сечение деталей, чтобы забор смог противостоять ветровой нагрузке.
Чтобы изготовить качественный забор, способный выдержать все виды агрессивных воздействий, необходимо приобрести следующие составляющие проекта:
- для опор - профильная труба размерами 60х60 мм и толщиной от 3 до 5 мм, длина каждой заготовки не должна быть меньше, чем длина столба;
- для продольных и поперечных лаг - стальная труба квадратного сечения с размерами 40х20 или 40х30 мм, толщиной не более 2-3 мм, расчет общей длины зависит от выбранного варианта конструкции, наиболее распространенный - две продольные лаги, при большой длине секции - две продольные лаги и два диагональных раскоса;
- для обшивки изгороди - профилированный лист, рассчитанный по длине в соответствии с общей протяженностью линии забора, для подгонки и учета погрешности измерений следует покупать лист с 10%-ной прибавкой;
- для крепления - саморезы из расчета по 6 штук на каждый погонный метр изгороди, рекомендуем использовать саморезы с шестигранными головками и резиновыми шайбами - они позволяют минимизировать деформации при затяжке, предотвращают попадание влаги на кромки отверстия и препятствуют образованию коррозии;
- расходные материалы - для изготовления забора из профнастила потребуются зачистные и отрезные круги, электроды или сварочная проволока, краска, цемент, песок и щебень.
Как выбрать подходящий металл для изготовления забора
Марки профнастила расшифровываются следующим образом:
- Н ‒ несущий , рекомендуется для обустройства крыш;
- С ‒ стеновой , приобретается для возведения заборов, обшивки фасадов домов, хозпостроек;
- НС ‒ универсальный , можно выбирать для любого строительства, подойдет и для ограды.
За аббревиатурой марки идут цифры, обозначающие высоту профиля, ширину листа, толщину стали. Эти ключевые показатели при выборе материала для будущего забора.
Рассмотрим часто используемые варианты для создания крепкого забора.
С8
Считается начальным классом и дешевым материалом. Высота профиля ‒ 8 мм. Используется для облицовки стен, декоративных, временных оград в регионах, где ветер не бывает сильным.
С10
Эта марка листов также недорогая, но уже с большей толщиной стали. Высота профиля составляет 10 мм. Цвет можно подобрать любой. Не стоит использовать для установки заборов с высотой более 1,5‒2 м.
С14, С15
Материал с утолщенной сталью. Высота профиля – 14 и 15 мм. Если участок подвержен сильным ветровым нагрузкам, то такой профнастил станет хорошим решением.
С20 (МП20)
Общепринятая маркировка листов С20, но встречается и обозначение МП20. Этот один и тот же материал. Просто последний произведен на заводе «Металл Профиль», отсюда и аббревиатура. Рабочая высота профиля – 18 мм. От других марок отличается разными размерами трапеций с обеих сторон. Срок службы достигает 35 лет.
С20 считается универсальным, поскольку применим как для наружных, так и для внутренних работ (заборов, крыш, стен, фасадов).
Подходит для регионов со сложными климатическими условиями. Производители начали поставлять его в трех модификациях: A, B, R. Первые две хорошо противостоят ветру. Последняя лучше справляется со статическими нагрузками, из-за чего лучше подходит для строительства кровли.
С21
Оптимальный материал для изгороди под уклоном. Высота профиля ‒ 21 мм. Высокая прочность профлистов позволяет возвести надежный забор как для загородного дома, так и для промышленного производства.
Как измерить и разрезать металл на нужную длину
Для монтажа металлического ограждения понадобятся следующие инструменты и материалы:
- Ручной мотобур или ямобур на базе автомобильного транспорта (в данном случае бурение пройдет быстрее и на большую глубину).
- Шуруповёрт
- Уровень строительный
- Рулетка
- Лопата
- Лом
- Шнур
- Нивелир лазерный (желательно)
- Ножницы по металлу
- Бетон
- Арматура
- Штрих -корректор
1. Подготовка
Место проведения работ (линия ограждения) должно быть очищено от посторонних предметов, деревьев, растений, мусора и т.д. Если стоит задача сделать ограждение в один уровень, то перед началом работ необходимо осуществить планировку и отсыпку линии ограждения.
Перед монтажом ограждения необходимо осуществить разметку территории, отметить вешками углы поворота забора и места установки столбов распашных или откатных ворот и калиток . Лицевые стороны столбов ограждения должны находится в одной плоскости с лицевыми сторонами столбов ворот и калиток.
2. Разметка места установки столбов
Разметка осуществляется при помощи рулетки и указательных вешек всегда строго по осям (центрам) столбов.
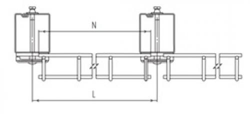
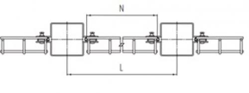
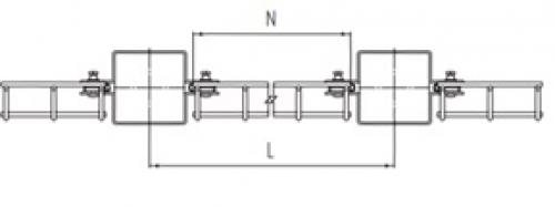
Таблицы межосевого расстояния
Крепление «скоба+болт» или «скоба+саморез» для столбов любого сечения:

Крепление «Хомут» для столбов 62х55 мм:

Крепление «Хомут» для столбов 80х80 мм:

3. Установка столбов ограждения
Бетонирование:
- По углам площадки установить разметочные столбы. По нижней границе ограждения натянуть веревку по уровню (нивелиру).
- В заранее размеченных местах (согласно таблицам) пробурить отверстия диаметром не менее 250 мм и глубиной на 20-30 см больше глубины промерзания (для Свердловской области оптимальная глубина скважины составляет 2м для типовых грунтов – глина, суглинок).
- Провести армирование отверстий.
- Установить столбы вертикально в пробуренные отверстия, проверить лицевую линию столбов по натянутой веревке, проверить высоту каждого столба при помощи рулетки. Зафиксировать столбы при помощи подпорок.
- Произвести бетонирование столбов.
- Установить заглушку.
Установка на фланце:
В качестве фундамента под столб с фланцем может применяться любой тип фундамента (ленточный, монолитный и т.д.).
- На подготовленный фундамент необходимо нанести разметку в соответствии с таблицами.
- Крепление фланца осуществляется на анкерные болты М10х120 (либо другие; длина и сечение анкера зависят от высоты столба и размера отверстий во фланце).
Установка на винтовую опору:
- Крепление и вертикальное выравнивание столба к винтовой опоре без фланца осуществляется четырьмя болтами М16х80.
- Крепление фланца столба к фланцу винтовой опоры осуществляется болтами М12х40 с гайками М12.
4. Установка панелей ограждения
Панель ограждения необходимо монтировать в направлении ребрами жесткости от столба.
В случае, если остаток проема до крайнего столба не равен ширине панели, необходимо подрезать панель в размер при помощи ножниц по металлу. Обрезанные края панели необходимо подкрасить в нужный цвет при помощи специального штрих-корректора, во избежание возможной коррозии металла.
Перепад по высоте
Установка панелей ограждения в случае перепада высоты осуществляется тремя вариантами:
Вариант 1
Установить следующий столб выше предыдущего на высоту перепада (в случае если длина столба позволяет).
Вариант 2
Если длина столба не позволяет, сместить по высоте только панель.
Вариант 3
Сместить панели, крепящиеся в одном пролете, и закрепить их соединительными клипсами.
Как соединить секции забора
Установка опор для забора – это ответственный процесс. Независимо от материала ограждения и его высоты, столбы являются основными элементами конструкции, которые принимают на себя все нагрузки и отвечают за общую надежность устройства.
Существует несколько вариантов, как закрепить столбы для забора. Выбор зависит от веса планируемого ограждения и типа грунта на участке.
Бетонирование
Этот метод используется при создании массивных ограждений. Для легких заборов он экономически нецелесообразен. Бетонирование можно применять на любом типе грунта, за исключением слишком мягких.
Суть установки заключается в бурении скважины на глубину от 80 см с диаметром чуть больше сечения трубы, установке трубы в яму строго вертикально, а также в последующем обрамлении опалубкой и заливке бетоном.
Среди плюсов стоит отметить повышенную прочность конструкций и их долговечность. Недостатками являются трудоемкость, продолжительность процесса монтажа и высокие затраты на материалы.
Забутовка
Этот метод похож на бетонирование, но гораздо более прост и дешев в исполнении. Его можно использовать в любых типах грунта. Он подходит как для легких, так и для тяжелых ограждений.
Установка выполняется поэтапно. Сначала выкапывается яма глубиной до 1,5 м. Затем столб устанавливается в яму и закрепляется строго вертикально распорками. Потом оставшееся пространство заполняется щебнем, который уплотняется каждые 20 см.
Среди плюсов этого метода можно отметить организованный дренаж, универсальность для столбов из любого материала и относительно быстрый процесс монтажа. К недостаткам относятся недолговечность и трудоемкость.
Забивание
Этот метод является одним из наиболее распространенных для легких и невысоких ограждений. Он является самым экономически выгодным, не требует дополнительных финансовых затрат. Он подходит для плотных песчаных и каменистых грунтов.
Казалось бы, бетонирование подземного пространства забора является самым надежным способом установки, и в некоторых случаях требуется проведение бетонных работ. Однако в большинстве ситуаций достаточно просто забить столбы в землю, что существенно экономит время и средства.
При принятии решения о способе установки столбов для забора необходимо учитывать отсутствие универсального подхода. Поэтому выбор метода установки становится важным еще на этапе выбора ограждения. Важно соблюдать баланс между качеством ограждения, его стоимостью, а также материалами, размерами, временем и объемом работ. Способ установки столбов выбирается в следующих случаях:
- Планируется установка легкой конструкции, например деревянного штакетника или сетки-рабицы.
- Забор устанавливается как временное ограждение.
- Необходимо быстро вбить столбы и установить основное ограждение.
- Грунт на участке плотный, малокаменистый, местность не заболочена.
- Выбраны деревянные или металлические стойки небольшого сечения диаметром до 50 мм.
В остальных случаях рекомендуется бетонировать стойки в теле грунта или выполнить работы по устройству бетонной подушки.
Соединение секций забора: варианты и рекомендации
После установки опорных столбов для забора следующим шагом является соединение секций ограждения. Это важнейший этап, который требует тщательного подхода и правильного выбора метода соединения. В этой статье мы рассмотрим основные варианты соединения секций забора и предоставим рекомендации по их выбору.Методы соединения секций забора
Существует несколько способов соединить секции забора, каждый из которых имеет свои преимущества и недостатки.1. Крепление секций к опорным столбам
Этот метод заключается в креплении секций забора к опорным столбам с помощью саморезов, гвоздей или болтов. Этот способ прост в исполнении и не требует специальных инструментов.2. Использование соединительных элементов
Соединительные элементы, такие как уголки, пластины или скобы, могут быть использованы для соединения секций забора. Эти элементы обеспечивают прочное соединение и могут быть легко заменены в случае необходимости.3. Крепление секций с помощью проволоки или троса
Этот метод заключается в креплении секций забора с помощью проволоки или троса, натянутых между опорными столбами. Этот способ прост в исполнении и может быть использован для легких ограждений.Рекомендации по выбору метода соединения
При выборе метода соединения секций забора следует учитывать следующие факторы: * Вес и тип ограждения * Тип грунта на участке * Уровень нагрузки на ограждение * Эстетические требованияВыводы
Соединение секций забора является важнейшим этапом в процессе установки ограждения. Правильный выбор метода соединения может обеспечить прочность и долговечность ограждения. При выборе метода соединения следует учитывать вес и тип ограждения, тип грунта на участке, уровень нагрузки на ограждение и эстетические требования.Как закрепить забор в земле
У забора из профлиста бесспорно много достоинств, именно этим объясняется его популярность. Тем не менее, у данного вида ограждений есть и недостатки, информацию о которых замалчивают многие поставщики.
К недостаткам забора из профлиста можно отнести:
1. Отсутствие антивандальной устойчивости. Профнастил легко режется ножницами по металлу. Злоумышленники легко могут проникнуть на территорию, разрезав или демонтировав один лист профлиста, просто открутив саморезы отверткой.

2. В удаленных и малолюдных местах, нередки случаи, когда заборы полностью или частично демонтируют.
Не существует ни одного на 100% верного решения, как исключить риск кражи профнастила. Усложнив процесс демонтажа за счет ряда упреждающих мер, можно существенно увеличить время, которое потратит злоумышленник. Целесообразность кражи может быть полностью исключена из-за высоких трудозатрат и порчи товарного вида материалов.
Меры, которые можно предпринять:
- Все листы на заборе прихватить меж собой на заклёпки, либо
использовать завершающую П-образную планку для профнастила; Загнуть выступающие из прожилины саморезы, но имейте в виду,
что саморез имеет самое слабое место у шляпки, даже погнутый или приваренный
может запросто отломиться; Прикрутить саморезами по металлу с широкой шляпкой 4,2мм.,
шлицы замазать холодной сваркой (бесцветным Поксиполом) ; Использовать мебельные болты с круглой шляпкой, несколько
штук на лист, гайку заварить или загнуть болт, после установки гайки; Шестигранные саморезы на заборе шлифовать нежелательно, т.к.
можно повредить полимерное покрытие и профнастил начнёт в этих местах ржаветь; Самостоятельно портить товарный вид делая сквозные дыры в
листах или рисунки (надписи) краской, не рекомендуется, если такой забор легко
украсть, воры это сделают с высокой вероятностью.

3. Низкая устойчивость профлиста к внешним механическим воздействиям. Вмятины на профнастиле могут остаться после работы вблизи забора снегоуборочной техники, а также при лавинообразном сходе снега с крыши строений.
Приобретая профнастил стандартной толщины 0,45-0,5 мм можно значительно снизить риск образования вмятин. Некоторые виды профнастила имеют специальные ребра жесткости, которые придают забору дополнительную прочность (С10; С15; С18; С20) .
4. Низкая ветровая устойчивость. Если участок находится на открытом месте, где дуют сильные ветра, имейте ввиду то, что на профлист действует высокая ветровая нагрузка, и при слабой фиксации столбов в земле, забор может перекосить. Если толщина профнастила менее 0,35мм., резкий порыв ветра может погнуть листы или вырвать полностью.

При установке опорных столбов забора в грунт необходимо их правильно зафиксировать. В Тюмени в качестве столбов, чаще всего используют металлические трубы нкт 73х5,5мм. Достаточным будет диаметр углубления 200мм, глубина заложения столба должна быть от 1,2 метра и больше, в зависимости от типа грунта. Практически в любых видах грунта лучше выполнить бетонирование столба. Причём не только его верхнюю часть, находящуюся в земле (частичное бетонирование), а полностью бетонировать основание по всей длине подземной части (полное бетонирование). При бетонировании увеличивается площадь контакта опоры и грунта, соответственно увеличивается устойчивость всего забора к ветровой нагрузке.
5. Появление ржавчины на местах среза или месте повреждения покрытия профлиста. Нужно очень аккуратно устанавливать профлист, т.к. на месте среза и в местах повреждения полимерного покрытия в дальнейшем будет образовываться ржавчина. Появление ржавчины на металлических столбах и лагах.

После монтажа металлического каркаса из столбов и прожилин, для защиты от коррозии необходимо покрыть его грунтовкой и покрасить, проще это сделать до установки листов профнастила. Не использовать для резки профнастила «Болгарку». Места реза листов прфонастила защитить специальным средством (антикоррозийная грунтовка, краска по металлу)
6. Стоимость качественного профнастила при покупке у производителей выше, чем в торговых центрах и на базах строительных материалов, где, как правило, предлагают листы самого низкого качества.
Выбирайте качественные материалы, чтобы не переделывать забор в ближайшем будущем.
В конце статье хотелось бы сказать, что абсолютно любые заборы имеют недостатки, и если их узнать до монтажа, то можно минимизировать, либо полностью исключить. Если Вам нужно долговечное, недорогое и надежное ограждение, то "золотая середина" - это забор из профнастила.
Как избежать ошибок при изготовлении металлического забора

Как много удобства предлагает ограждение из металла! Оно не позволяет незнакомцам оказываться на вашей личной территории и защищает от любопытных взглядов проходящих мимо зевак, бережет от попадания на дорогу маленьких детей и домашних животных, отгораживает вас от назойливых соседей и конечно, точно очерчивает границы вашего участка.
Металлические заборы – это настоящие неутомимые стражники, вечно находящиеся на охране вашего спокойствия и безопасности.
Но они не только защищают хозяев и устрашают недоброжелателей. Заборы из металла завершают общий стиль вашего участка, будучи неотъемлемой частью ландшафта территории.
К таким помощникам стоит относиться с особым вниманием и уважением! Регулярно ухаживайте за ними, используя специальные средства.

Что вам понадобится?
- перчатки,
- растворитель,
- тряпки,
- проволочная щеточка,
- покрытие против ржавчины на масляной основе,
- эмаль на масляной основе,
- латексная краска,
- кисти.
Что нужно сделать?
Металлические заборы нуждаются в регулярном восстановлении покрытия. Вы сами поймете, как часто следует делать эту процедуру, обращая внимание на то, как выглядит ограждение.
Наденьте перчатки. Используя проволочную щеточку, удалите ржавчину, покрывающую ограждения из металла. С помощью метелки ликвидируйте коррозию.
Нанесите на ткань растворитель (можно взять White Spirit) и протрите места ржавчины. Чтобы застоявшаяся коррозия удалилась, протирайте, прилагая усилие. После загрязнения тряпки, возьмите новую и повторите процедуру.
Дождитесь, пока растворитель высохнет. White Spirit может также использоваться для истончения слоя грунтовки. Обратитесь к инструкции от производителя.
Далее перейдите к грунтованию металлического забора . Возьмите специальную щеточку для грунтовки и нанесите состав без нажима. Пусть грунтовый слой просохнет.
Следующим этапом будет нанесения краски на металл. Дождитесь, когда грунтовка с первым слоем краски высохнет.
Возьмите специальную кисточку, предназначенную для покраски грунтовки. Распределите состав по поверхности, не прилагая силу. Дайте краске высохнуть.
Повторите окрашивание.
Регулярно проверяя наличие ржавчины и точечной коррозии, обновляя поверхностное покрытие, вы сможете значительно продлить срок службы вашего металлического забора .