Переделка двухкомнатной квартиры в трехкомнатную. Пример удачной перепланировки двухкомнатной квартиры в трехкомнатную
- Переделка двухкомнатной квартиры в трехкомнатную. Пример удачной перепланировки двухкомнатной квартиры в трехкомнатную
- Линейная двушка в трешку. Сделать две детские комнаты из одной
- Перепланировка двухкомнатной квартиры распашонки. Варианты перепланировки квартиры распашонки
- Из двушки распашонки в трешку. Перепланировка недели: как из двушки сделать трёшку
- Видео как из "двушки" сделать "трешку"?
Переделка двухкомнатной квартиры в трехкомнатную. Пример удачной перепланировки двухкомнатной квартиры в трехкомнатную

Если ваша квартира состоит из двух, довольно просторных комнат — это уже большая удача, но еще лучше, когда из них получается сделать три функциональных помещения. Сегодня продолжаем тему целесообразных перепланировок пространства двухкомнатных квартир.
В лучае, если ваша метраж вашей квартиры не позволяет передалать её в 3х комнатную, не отчаевайтесь. Вы легко сможете найти для себя нужный дизайн 2-х комнатной квартиры.
Предположим, вас повысили в должности, появилось больше обязанностей, и необходим личный домашний кабинет; или, возможно, — ожидается пополнение в семье, а быть может, совсем другая, не менее весомая причина, заставляющая обыграть функцию комнат по-другому.
Мы представляем вашему вниманию три варианта перепланировок для двухкомнатных квартир, у которых есть все шансы стать трехкомнатными.
Элементарно — используем пространство лоджии или балкона
Например, пространство квартиры составляют две отдельных комнаты, одна из которых совмещена с кухней-столовой. Не рекомендуем, в этом случае, возводить стену между ними, так как лучше кухня-гостиная, нежели два отдельных, но тесных и нелепых помещения.
Если разрушать старые или возводить новые стены вы не готовы, предлагаем более тщательно организовать пространство лоджии, которая объединена с гостиной. Здесь можно расположить рабочий стол, стеллаж и даже мини-диван, — все, что необходимо для того, чтобы чувствовать себя комфортно, при этом, работать в отделенном от основной комнаты пространстве.
Два в одном — разделяем спальню и детскую
На плане, представленном ниже, — планировка двухкомнатной квартиры, где прихожая объединена с гостиной, откуда ведут двери в спальню.
Организовать еще одну комнату за счет перемещения одной из стен спальни в сторону кухни неудобно, — последняя станет совсем тесной, и количество посадочных мест за столом сократится.
Как вариант, третью комнату (например, детскую малыша) можно сделать, если возвести стационарную перегородку в спальне, тем самым, поделив ее пространство. Естественно, образованные комнаты будут довольно небольшого размера, но все, что нужно для отдыха родителей и развития ребенка, в них поместится.
Очень хорошо, если в комнате, к тому же, есть выход на лоджию: со стороны родительской спальни можно демонтировать двери, и наоборот, — установить их в детской, чтобы обеспечить тепло и звукоизоляцию.
Совет : в возведенной стене следует установить двустворчатые двери для того, чтобы родителям можно было быстро и удобно заходить к ребенку.
Тихо и светло — разделяем спальню и кабинет
Еще один способ сделать пространство квартиры более функциональным, чтобы в нем появилась комната под кабинет или гардеробную, — это реорганизация пространства с двумя окнами.
Если в квартире две комнаты, одна из которых длиннее в плане, да еще и с двумя окнами, — можно в ней использовать перегородку с раздвижными дверями. Полупрозрачные стеклянные полотна сберегут ощущение объема и уровень освещенности обеих зон, в целом.
Так, за раздвижными створками можно оформить пространство домашнего офиса, комфортной гардеробной или комнату для занятий музыкой (творчеством).
Совет: Не рекомендуем возводить подобную перегородку в гостиной, так как в ней чаще собирается много людей, а значит, работать в тишине можно будет довольно редко. Спальня – это более подходящее пространство для зонирования, потому как в ней тихо и спокойно.
Линейная двушка в трешку. Сделать две детские комнаты из одной
Вот какие варианты преобразования квартиры можно использовать в хрущевке:
- если по плану одна из комнат не проходная и достаточно длинная, то ее можно разделить на 2 части – при этом вход в нее можно оставить через возводимую перегородку;
- так как в хрущевке практически все внутренние стены не являются несущими, то организовать членение внутреннего пространства можно практически в любой комбинации, например, изменив коридор;
- увеличить одну из комнат можно за счет устранение простенка на балкон, тогда именно эту, увеличенную, комнату можно будет разделить на две части.

Двухкомнатная хрущевка до перепланировки – проходная гостиная, комната с кладовкой, маленькая ванная

Квартира после перепланировки – две детские комнаты, гостиная-спальня, просторная ванная комната
В случае со сталинками ситуация обстоит сложнее. Обусловлено это в первую очередь тем, что стены здесь более толстые, в том числе и внутри самой квартиры. Но воспользоваться ситуацией все равно можно.
Так, например, одну комнату можно всегда разделить на 2 более маленькие по площади. В сталинках это удобнее делать, чем в хрущевках потому, что в этих проектах часто встречаются комнаты, в которых есть два окна. В этом случае перегородку возводить можно самыми разными способами. И двухкомнатная квартира становится практически полноценной трехкомнатной с окном в каждом помещении.

Угловая двушка до перепланировки – проходной зал, спальня с двумя окнами

Квартира после перепланировки – две детские комнаты, гостиная-кухня, спальня для родителей

Раскладной диван в кухне-гостиной – дополнительное спальное место всегда пригодится
Нужно знать, что перепланировка двушки распашонки в трешку возможна только:
- за счет перепланировки кухни с комнатой в маленькую кухню и две небольшие комнаты;
- за счет разделения одной из комнат на две, но в этом случае новообразующаяся комната не будет иметь окна (в преобладающем большинстве случаев).
Перепланировка двухкомнатной квартиры распашонки. Варианты перепланировки квартиры распашонки
Так как в квартире есть две жилые комнаты плюс коридор, кухня и туалет с ванной, то существует несколько вариантов перепланировки.
Причем не всегда стены сносятся, иногда устанавливаются дополнительные перегородки:
- Если в помещении проживает семья с ребенком, а хозяевам не хочется совмещать спальню и гостиной, то большая комната делится на две маленькие. Для этого устанавливается дополнительная перегородка. В получившихся комнатах обустраивают гостиную и детскую.Но устанавливать дополнительное ограничение пространства лучше, когда в помещении имеется два окна. Если так получается, что в детской или гостиной не будет окна, то лучше не возводить стену из кирпича, или гипсокартона, а просто установить раздвижные двери. Также отделить детскую зону от гостиной можно аркой или стеллажом.

- Если кухня кажется слишком маленькой, ее можно объединить с гостиной. Это делают семьи, которые любят принимать гостей. В этом случае снесенная стена освобождает место для обеденного стола или дополнительного мягкого уголка.

- Если человек живет один, можно объединить кухню с коридором и гостиной. Стены остаются только в ванной, туалете и спальне.

- Если в доме имеется большой балкон или лоджия, их также можно объединить с одной из комнат. Там можно получить еще несколько метров и установить шкаф для хранения всех вещей, обустроить кабинет, или уголок для занятий спортом. В случае такой перепланировки балкон нужно утеплить. В этой зоне можно сделать и полы с подогревом.

- Если в коридоре достаточно места, то можно «расширить» пространство ванной комнаты или кухни. Также можно поменять дверные проемы на арки, или убрать двери и поставить рамки. Так в квартире появится ощущение простора. Этот вариант подходит, если в квартире живет только один человек.

Прежде чем проводить перепланировку, хозяину придется получить на это разрешение и обратиться к специалистам, которые скажут, какие стены можно сносить, а какие нет.

Из двушки распашонки в трешку. Перепланировка недели: как из двушки сделать трёшку
Сегодня мы решили рассмотреть серию И-522А, которая является типичным представителем городской застройки конца 70-х — начала 80-х годов прошлого столетия. Ни один из новых микрорайонов, которые активно строились вокруг крупных городов, не обходится без домов этой серии.
Отличительной чертой серии является узнаваемый вид и возможности перепланировки: внутри квартир не проходят капитальные стены, а это позволяет применить самые смелые планировочные решения. Именно поэтому сегодня мы на примере двухкомнатной квартиры попробуем организовать трёх- и даже четырёхкомнатную.
Квартира общей площадью 53,3 кв. метра состоит из двух жилых комнат, кухни, двух санузлов, прихожей и двух лоджий. В квартире четыре окна, которые выходят на три стороны света. Квартира не газифицирована (редко встречаются четырёхэтажные дома серии И-522а, которые газифицированы), в ней проходят две вентиляционные шахты, которые категорически недопустимо демонтировать.
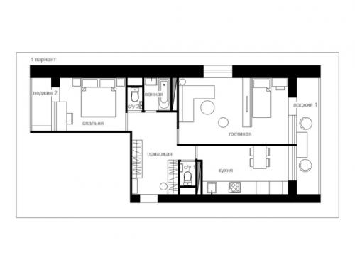
Первый вариант: без перепланировки
В этой квартире можно и без перепланировки организовать второе спальное место. Для этого потребуется большую комнату разделить на две зоны с помощью открытого стеллажа, который разграничит пространство и позволит создать гостиную и спальню. Во второй комнате мы организовали спальню с большой двуспальной кроватью и поместили рабочий стол, столешница которого заменила подоконник, увеличив полезную площадь.
В каждом санузле мы добавили небольшие рукомойники. Пространство большой прихожей позволило организовать в нём места для хранения и шкафы для одежды.
Оборудование кухни, размещённое вдоль стены, позволило найти место и для холодильника, и для посудомоечной машины. Также в кухне нашлось место для обеденного стола на четыре персоны.
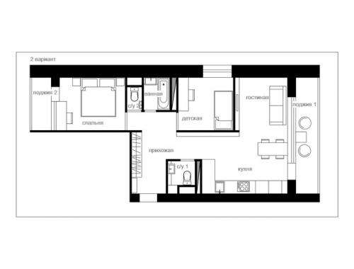
Второй вариант: третья комната
Когда квартира не газифицирована, то можно смело объединять кухню с жилой комнатой. А если нет капитальных внутриквартирных стен, то такое решение напрашивается само собой.
Во втором варианте мы демонтировали перегородки и возвели новые, которые позволили организовать отдельную комнату, обозначенную как "детская". Также важно обратить внимание на то, что по жилищному законодательству жилая комната должна быть с окном, и в нашем случае это правило соблюдено.
Объединённое пространство кухни и гостиной получилось светлым. Вход в лоджию ради удобства использования был перенесён в зону кухни. На лоджии можно организовать зону для отдыха. Для этого можно разместить там пару кресел и столик или повесить гамак — выбирайте сами. Конфигурация новых стен позволила вписать мебель, которая не будет мешать при передвижении.
Санузел, что возле кухни, был увеличен за счёт прихожей, что допустимо. Расширять санузел за счёт кухни или жилой комнаты незаконно, а вот за счёт коридора — расширение допустимо, и эту перепланировку можно легко согласовать.
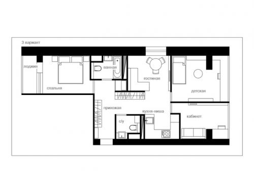
Третий вариант: четырёхкомнатная вместо двушки
Третий вариант — это как раз доказательство того, что мы можем превратить двухкомнатную в четырёхкомнатную, и при этом квартира не превратится в "уплотнённую коммуналку". Делимся секретом волшебства.
Во-первых, нужно знать своды правил и отлично разбираться в строительном регламенте, а также обладать талантом проектировщика. Однако если нет времени на изучение всего вышеперечисленного, то можете смело воспользоваться нашим вариантом, поскольку он абсолютно допустим и не нарушает жилищного законодательства.
Теперь подробнее. Для того чтобы увеличить площадь комнат, мы объединили лоджию с комнатой и бывшей кухней. Комната, организованная на месте кухни, не может быть жилой (поскольку в многоквартирных домах запрещено размещать жилые комнаты под мокрыми зонами). Однако если на экспликации обозначить её как нежилую, например, как кабинет или гардеробную, то такую перепланировку согласуют. В кабинете можно расположить раскладной диван, который выполнит функцию места для сна припозднившихся гостей.
Вместо привычной кухни мы организовали удобную кухню-нишу. Оборудование же не переносили за пределы площади прежней кухни.
Санузел увеличен за счёт прихожей, что допустимо. Также мы организовали небольшую постирочную в бывшем коридоре. В ней можно разместить стиральную машину, а сверху — сушильный шкаф. Теперь проблема размещения оборудования для стирки решена, а подключить стиральную машинку к воде и канализации можно от смежной ванной комнаты.
Любая переделка и перепланировка квартиры должна улучшать качество жизни, и на примере квартиры в серии И-522а мы доказали, что нет предела совершенству и можно изменять квартиру в зависимости от условий: если ваша семья растёт, то данная квартира тоже способна расти.


