П 44 однокомнатная квартира. Варианты перепланировок однокомнатной квартиры п44т с размерами для разного количества людей
- П 44 однокомнатная квартира. Варианты перепланировок однокомнатной квартиры п44т с размерами для разного количества людей
- Квартирный вопрос однокомнатная квартира. Проект однокомнатной квартиры
- Дизайн типичной однокомнатной квартиры. Советы по выбору дизайна однокомнатной квартиры
- Дизайн 1 комнатной квартиры п-44. Вариант 1
- Дизайн однокомнатной квартиры п44к.
- П 44 планировка трехкомнатной квартиры п-44. Стоит ли брать квартиру в доме серии П-44Т? Планировки и особенности домов.
- Ремонт 3 х комнатной квартиры . Планировка трёшки в панельке П-44: 5 удачных схем (бесплатно)
- Видео п 44т, однокомнатная квартира. House3d.org
П 44 однокомнатная квартира. Варианты перепланировок однокомнатной квартиры п44т с размерами для разного количества людей
В «однушке» п44т, размеры колеблются от 37 кв. м. до 39 кв. м., при этом жилая площадь составляет 19 метров, кухня – 7-9 «квадратов». В кухне часто организуется не только готовка, прием пищи, но и спальное место одного из членов семьи. Для «однушки» п44к существует чуть больше возможностей перепланировки – например, присоединение просторного балкона. Любой из двух описываемых вариантов подойдет для проживания различного количества людей.

Слева квартира до перепланировки, справа после. В комнате возле окна выделена спальная зона с кроватью и комодом, гостиная сделана проходной
Важно знать, что, если кухня и гостиная так или иначе объединены, в кухонном помещении, по нормам пожарной безопасности, допустимо ставить только электрическую плиту.
Для 1 и 2 человек
Если в квартире собираются жить один-два человека, из нее пытаются сделать «студию», максимально расширив проем между кухней и комнатой. В другом варианте организуется гардеробная зона, а вход в гостиную немного переносится – ближе к коридору или в кухню. Когда в квартире живут взрослый и ребенок, легко организовать две отдельных спальни, а на балконе сделать мини-кабинет.

Вариант планировки с присоединением лоджии. Устроенны четыре основные зоны: гостиная, спальня, рабочее место и гардеробная
Для семьи из 3 человек
Семья из трех взрослых или двух взрослых и ребенка также легко разместится в переделанном помещении. Для ребенка тогда отделяют небольшое пространство в гостиной, если он уже достаточно взрослый, имеет смысл застеклить, утеплить балкон, организовав там детское спальное или рабочее место. Комнату тогда разделяют перегородкой на две равные или неравные комнатки.

Вариант разделения гостиной на детскую и взрослую зоны. Рабочее место вынесено на утепленный балкон, спальное место взрослых отделено легкой перегородкой
Для семьи до 5 человек с расширением проема кухня-гостиная
Семье из четырех или пяти человек в «однушке» будет тесновато, но как временный вариант, когда выбирать не приходится, они также сравнительно удобно поместятся все. Вопрос спальных мест легко решается наличием двухъярусных, а то и трехъярусных кроватей. Расширение проема между залом и кухней тут наиболее уместно, так как дает возможность нормального перемещения по квартире.

Вариант планировки с проходной гостиной. Проход на кухню возможен только через общую комнату, а спальня оделена раздвижной перегородкой
Если двое-трое из жильцов – дети, то им выделяется общее пространство, отдельное от взрослого помещения. Места хранения размещаются в высоких шкафах в прихожей, на кухне, ванная комната немного сужается. По возможности, для одного или двух человек спальные места обустраивают на балконе.
Квартирный вопрос однокомнатная квартира. Проект однокомнатной квартиры
Если не обращаетесь к дизайнеру делая всё самостоятельно, то ксерокопируйте кучу планов своей однушки, вооружайтесь карандашом и вперёд чертить планировку. На этом этапе ваша задача расположить всё что вы выписали в первом пункте. Как показывает практика, в однокомнатной квартире сделать это не всегда просто. Не забудьте соблюдать масштаб.
Часто спрашивают о программах для планировки на компьютере. В этом нет смысла, если вы хотите просто накидать план расстановки мебели. Нерационально тратить время на осваивание программы, чтобы потом сделать в ней только одну свою квартиру. Листика и карандаша вполне достаточно. Также можете сфотографировать план квартиры и рисовать на нём расстановку мебели в любом графическом редакторе, хоть в пейнте хоть в фотошопе. Или сходите к фирмам делающим мебель на заказ. Они бесплатно сделают вам что-то такое:

На этом этапе можно задуматься и о перепланировке. В однокомнатной квартире в классическом понимании, комнаты разделены стенами и дверями. Сейчас модно сносить стены и делать квартиру студию , но можно подумать и о возведении дополнительных стен, чтобы сделать из однокомнатной квартиры двухкомнатную. Достаточная комфортная площадь спальни — 10 метров квадратных. Это уже полноценная комната без всяких компромиссов, но можно и меньше, тогда кровать придётся приставлять к одной из стен.
10 метров квадратных — достаточная площадь для комнаты. Если есть возможность поделить квартиру на такие зоны — смело делайте. Комнаты меньше 10 метров воспринимаются тяжело.
При расположении унитаза, умывальника, ванны, душа и раковины учитывайте, как будет производиться отвод в канализацию. Подвести воду не проблема — вода там под давлением и ни уклона ни диаметра труб не надо. А вот с отводом проблемы могут быть: канализационная труба требует уклона, и нежелательно относить её слишком далеко от стояка.
Не бойтесь необычных идей, в однокомнатной квартире эксперименты с расположением бывают вполне удачными. Особенно когда вы планируете их заранее, а не на ходу. Идеи могут касаться, например, расположения кровати. Можно встроить её в стену, сделав откидной, можно соорудить под неё нишу или зонировать под неё комнату, отделив часть для кровати. Именно на этапе составления проекта нужно думать о таких вещах.
Дизайн типичной однокомнатной квартиры. Советы по выбору дизайна однокомнатной квартиры
Большинство дизайнеров утверждают, что чем больше метраж помещения, тем менее рационально он используется. Другое дело, когда комната небольшая, а хочется уместить в нее как можно больше. Тогда владельцы начинают искать максимально практичный дизайн однокомнатной квартиры, продумывают применение каждого жилого сантиметра.

Кто уж так точно знает что такое «мало места» − так это обладатели однокомнатных квартир.
Небольшое жилое помещение должно включать в себя кухню, детскую и рабочую зону, спальню. На первый взгляд, это кажется невозможным, как показывает практика, неразрешимых задач не бывает.

Дизайн однокомнатной квартиры продумать сложнее всего, так как часто в одной комнате приходится размещать и спальное место, и гостиную, и кухонный уголок и даже место для ребенка.
Перечислим эффективные советы дизайнеров по созданию интерьера мечты
| Стиль минимализм | Подходящий вариант для оформления дизайна однокомнатной квартиры. Не нужно думать, что лучше оставить в комнате стол, стул и кровать. Здесь подразумевается покупка многофункциональной мебели и предметов интерьер: диван со встроенной столешницей, большой стол, который складывается и превращается в небольшой, журнальный вариант. Современные производители предлагают мебель разного размера, поэтому все эти элементы можно изготовить под заказ в нужных размерах. |
| Легкий, воздушный интерьер | Для визуального увеличения пространства можно использовать зеркальные поверхности, зонировать с помощью перегородок из легких, полупрозрачных тканей, тонкого, крепкого стекла. Если перегородки не нужны, зонирование можно сделать во время ремонта. Здесь важным моментом является грамотный подбор отделочного материала. Пол в разных зонах должен различаться: на кухне – плитка, гостиная в ламинате. В спальной зоне можно постелить пушистый ковер. Каждая зона должна иметь индивидуальное освещение. |
| Расстановка акцентов | Не использовать в интерьере однокомнатной квартиры только темные или только светлые тона. Выделяются 2-3 основных акцента. Например, темный полок и светлые стены, либо, стены и потолок светлые, а пол насыщенного, темного оттенка. Но, не стоит использовать много темного, визуально он уменьшит комнату. |
| Перепланировка | Стены внутри маленького помещения, делают его еще более небольшим, режут его. Поэтому, если они не несущие, лучше разобрать. |
| Многофункциональное использование кладовки | В старых домах есть кладовая, которую можно практично использовать. Она отлично выполнит роль встроенного шкафа, или гардеробной. Не будет необходимости устанавливать «большой ящик» в основной комнате. |
| Высокие потолки | Если потолки в квартире высокие, можно установить кровать над полом. Она называется кровать-чердак. Основание может быть отличным шкафом. Таким образом, соединяются сразу 2 мебельных элемента. |
| Грамотное применение декоративных элементов и текстиля | Не стоит перегружать интерьер для однокомнатной квартиры статуэтками и шкатулками разных размеров. Окна лучше украшать тонкими, легкими тканями или рулонным вариантом штор. |
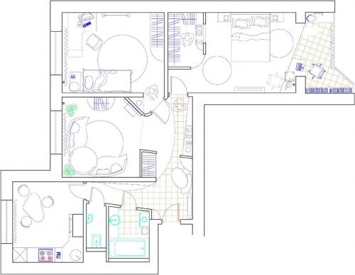
Дизайн 1 комнатной квартиры п-44. Вариант 1

Дизайн однокомнатной П-44Т
Для данного варианта я предлагаю разделить жилую комнату перегородкой. В результате мы получим кабинет и спальню. В рабочей зоне разместится диван.
Дизайн-проект санузла предполагает замену ванны душевой кабинкой, за счет освободившейся площади найдется место для большого умывальника и стиральной машины.
Перегородку, отделяющую коридор и кухню, я бы рекомендовала убрать, а углы стен санузла и вентиляционного блока немного скосить. Этот нехитрый прием позволяет визуально расширить вход в кухню.
Если на кухне расположить небольшую рабочую зону, найдется место для круглого стола (на 5-6 человек).

Небольшая кухня, но функциональная
Такое решение подойдет для тех, кто работает дома или предпочитает проводить свободное время за компьютером. Кроме того, вариант будет по достоинству оценен теми, кто любит собирать гостей у себя дома.
Достоинства
- большая жилая комната;
- минимальная перепланировка;
- комфортное рабочее место;
- просторная кухня.
Недостатки
- изолированная комната;
- скромная рабочая кухонная зона;
- отсутствие единой системы хранения.
Перед тем как разрабатывать дизайн однокомнатной квартиры п44т в данной планировке, согласуйте возможность срезания небольшого угла вентиляционного блока, а также учтите, что на кухне можно будет установить только электроплиту.
Несколько советов:
- Зонирование можно провести не только перегородкой, но и стеллажом.
- Сэкономить место в рабочей зоне кухни поможет двухконфорочная варочная панель.
Дизайн однокомнатной квартиры п44к.

Проект однокомнатной квартиры разработан для временного проживания молодого человека, который предпочитает простые, лаконичные формы, ценит рациональность и комфорт. Поэтому логичным выбором для оформления интерьера станет эстетика минимализма с элементами функционализма и акцентами из натуральных материалов
П 44 планировка трехкомнатной квартиры п-44. Стоит ли брать квартиру в доме серии П-44Т? Планировки и особенности домов.
Серия П-44Т - это типовые панельные панельные дома, которые начали возводить в середине 90-х годов и продолжают строить по настоящее время. Серия домов является более поздней версией серии П-44. Были произведены улучшения следующего порядка:
- повышенная теплоизоляция;
- высокие потолки (2.7 м протов 2.6 м);
- интересные планировочные решения с эркерами и полуэркерами.

Фото из интернета. На первой фотографии - П-44Т, на второй - П-44.

Фото из интернета. На первой фотографии - П-44Т, на второй - П-44.
Эти рыжие дома пользуются популярностью среди Москвичей и жителей Подмосковья. Они симпатичные, с большими лоджиями и раздельным санузлом. Существенным недостатком этих домов считается ограничение по перепланировке, так как в панельных домах этой серии много несущих стен, которые запрещено сносить.
В одной из прошлых статей я сравнивала однушки в домах разных поколений. Тогда я писала, что серия П-44Т на меня произвела большое впечатление. Эти дома привлекают из-за своей невысокой цены и неплохого качества постройки. Особенно это бросается в глаза на фоне современных новостроек эконом и "комфорт" класса, в некоторые из которых лучше не соваться.
Приступим к разбору планировок.
1. ОДНОКОМНАТНАЯ КВАРТИРА

Однокомнатная квартира 38 кв.м. , жилая площадь 19 кв.м, высота потолков 2.7 м.
Достаточно неплохая однушка. Я вижу в ней больше плюсов, чем минусов.
Плюсы:
- просторная изолированная жилая комната;
- большая и светлая лоджия;
- санузел можно сделать как совместным, так и раздельным - есть возможность выбора;
- средняя кухня - на ней поместится все,что нужно;
- просторная прихожая;
- хорошее расположение санузла (выход из него не через прихожую, что предотвращает распространение грязи по квартире).
Минусов я практически не вижу. Кому-то кухня может показаться небольшой (по сравнению с хрущевкой - она нормальная). Исходим из того, что площадь квартиры небольшая - квадратные метры распределены оптимально.
2. ДВУХКОМНАТНЫЕ КВАРТИРЫ
В этой серии есть два варианта двушек - "линейка" и "распашонка". Кстати, двушка распашонка - самая продаваемая квартира в этой серии домов.

Двухкомнатная распашонка 61 кв.м. Спальня - 19 кв.м, гостиная - 15 кв.м, кухня - 12 кв.м., лоджии 4 и 5 кв.м.
Это потрясающая планировка. Огромная спальня, большая гостиная, раздельный санузел. Из на лоджии 5 кв.м. можно сделать отдельную комнату. Отдельного внимания заслуживает большая кухня с эркерным окном.
! Я хожу к мастеру по маникюру на дом и у нее такая планировка. На лоджии она сделала кабинет для маникюра. Там помещается стол, два удобных стула и все принадлежности для работы!

Двухкомнатная "линейка" 51 кв.м.
Данная планировка двушки несколько проще предыдущего варианта. Но не стоит забывать, что она меньше на 10 метров.
Плюсы :
- большие изолированные комнаты;
- функциональная прихожая;
- раздельный санузел;
- кухня с большим окном.
Минусом данной планировки является расположение окон на одну сторону, из-за чего в ней бывает душно.
3. ТРЕХКОМНАТНЫЕ КВАРТИРЫ
Фото взяты из интернета. Листайте карусель.
В серии П-44Т представлены три планировки трехкомнатных квартир. Мне больше нравится первый вариант с эркером на кухне, а вам? Все трешки - распашонки двумя лоджиями, большими кухнями и раздельным санузлом. Не забываем, что из лоджий можно сделать одну комнату.
Подписывайтесь на канал и ставьте лайк! Всем хорошего настроения!
Ремонт 3 х комнатной квартиры . Планировка трёшки в панельке П-44: 5 удачных схем (бесплатно)
Общая площадь типовой квартиры в доме серии П-44 – одной из самых распространённых панелек – от 70 до 75 кв. м. При этом почти все стены несущие, и перепланировка невозможна.


Типовая планировка
У трехкомнатной квартиры в типовых панельных домах серии П-44 довольно большая площадь и удачная планировка. В отличие от предшественниц-хрущёвок, здесь десятиметровая кухня и комнаты больше 11 кв. м. Пожалуй, единственный недостаток в том, что существенную перепланировку не сделать – почти все стены в квартире несущие.
Вариант 1
Самую большую комнату отвели под спальню, потому что примерно треть её занимает гардеробная. На балконе обустроили рабочее место и встроили гладильную доску. Меньшую по площади спальню превратили в детскую для двоих детей – вся мебель здесь парная.
Стену между гостиной и коридором можно снести. Комната станет проходной, но более просторной. Воспользуемся шириной коридора, чтобы встроить шкаф для верхней одежды. А на кухне помимо углового гарнитура и стола предусмотрит узкую витрину для сервировочной посуды и колонны для встроенной техники при входе.

Вариант 2
В этом варианте расположение комнат сохранено, и даже гардеробная на том же месте. Но в детской всего одна детская кроватка и диван для отдыха мамы или няни. Зато в гостиной появился большой угловой диван и сразу два рабочих места на случай, если родители работают из дома. Ещё один угловой диванчик установили на кухне.

Вариант 3
Если в семье двое разнополых разновозрастных детей, то каждому из них неплохо бы иметь собственную комнату. Поэтому две дальние спальни отдали под детские. Они практически симметричны, только в одной из них по центру появилась общая гардеробная. Самую маленькую комнату зонировали и выделили уголок под спальню у окна. Ближе к проходу установили диван. И для этого, конечно, стоит снести единственную ненесущую стену.

Вариант 4
Почти все стены в квартире несущие, но изменить геометрию пространства всё же можно. Авторы этого проекта увеличили санузлы за счёт коридора, встроили шкаф для верхней одежды в холле и предусмотрели удобный вход в детскую, который при этом не съедает пространство гостиной. Балкон в спальне утеплили и присоединили, чтобы разместить там мини-кабинет.

Вариант 5
Для семьи с двумя взрослыми детьми или ситуации, когда под одной крышей живут три поколения, необходимо три полноценные спальни. Для этого можно сделать масштабную перепланировку, на которую мало кто решается – перенесли кухню в коридор и сделать её проходной. Тогда на месте бывшей кухни появится ещё одна дополнительная спальня, вход в которую перенесён из гостиной. Это позволяет существенно расширить санузел.

Если вы хотите видеть больше такого в своей ленте — ставьте лайк. Подписывайтесь на канал и узнавайте свежие тренды в дизайне интерьеров.
Автор: Павел Шелягин.