Идеи дизайна интерьера
+1000 идей для Вашего интерьера!
Main menu
Главная
Новости
Статьи
Главная
»
Новости
»
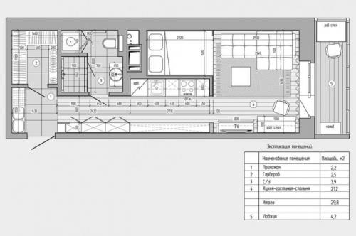
Оригинальная планировка студии, 30 кв.м
Оригинальная планировка студии, 30 кв.м
25.07.2019 в 16:33
Новости
Понравилось? Поделитесь с друзьями!
⇦
5 вещей, которые вы не знали об унитазах и которые облегчат вам жизнь при ремонте санузла
⇨
Бетон, трубы и стекло в двухкомнатной квартире в Москве