Идеи дизайна интерьера
+1000 идей для Вашего интерьера!
Main menu
Главная
Новости
Статьи
Главная
»
Новости
»
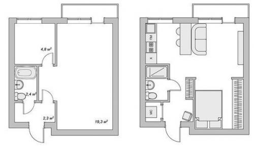
Как на 29 кв.м обычнoй кваpтиpы cделать шикарную двухкомнатную студию?
Как на 29 кв.м обычнoй кваpтиpы cделать шикарную двухкомнатную студию?
07.07.2020 в 14:40
Новости
Понравилось? Поделитесь с друзьями!
⇦
Мы думали, думали и вот придумали комната для дочки.
⇨
Дизайн кухни-гocтинoй в частнoм дoме