33 квадратных метра дизайн квартиры. Гостиная
- 33 квадратных метра дизайн квартиры. Гостиная
- Планировка 1 комнатной квартиры 33 кв м. Белый в основе
- Интерьер однокомнатной квартиры 33 кв.м для семьи с ребенком. Однушка 35 кв. м для семьи с двумя детьми
- Дизайн однокомнатной квартиры 35 кв.м с нишей. Дизайн однокомнатной квартиры 35 кв.м
- Видео квартира 33,4 кв. м. ДО и ПОСЛЕ ремонта.
33 квадратных метра дизайн квартиры. Гостиная
Несмотря на небольшую площадь квартиры – всего 33 квадратных метра, для оформления интерьера гостиной можно подобрать множество вариантов, в зависимости от потребностей хозяев. Но без мебели для хранения вещей не обойтись. Здесь много возможностей – расположение шкафов, стеллажей, комодов зависит от конкретной ситуации.
Раскладной диван заменит традиционную кровать, когда отдельного места для ее размещения не предусмотрено. Если в дизайне маленькой квартиры запланирована спальная зона, отделенная перегородкой, его можно использовать для размещения гостей. Поэтому такой диван – обязательный предмет мебели в гостиной. Понадобится и рабочий уголок со столом для компьютера – многие люди часть работы, а иногда и всю ее делают дома.
Интересный вариант дизайна – спальное место на «чердаке», как на фото. Кровать подвешивается ближе к потолку, а под ней устанавливается рабочий стол. Вместо него можно использовать подоконник, если его ширина это позволяет. Такой необычный дизайн показан на фото. Основные проблемы в маленькой квартире возникают с размещением мебели для хранения вещей и одежды. Сложно найти место для массивного шкафа-купе . Но можно поставить его в прихожей, при необходимости изменив ее конфигурацию переносом перегородки. Тогда в гостиной будет больше места. Если в плане предусмотрена спальня, такой шкаф скроет кровать от посторонних глаз. Еще один вариант дизайна – узкие стеллажи от пола до потолка, смотрите фото.


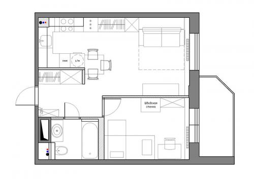
Планировка 1 комнатной квартиры 33 кв м. Белый в основе
Планировкой предполагалась однокомнатная квартира, одна по требованию владелицы она должна была трансформироваться в двухкомнатную и обрести полноценную спальню с окном. Для такого превращения я решила поменять местами спальню и кухню, а также выделить отдельную площадь под гардероб.
В большинстве случаев перенос кухни с газоснабжением невозможен, однако в нашей ситуации это удалось сделать из-за отсутствия подводки газа и нежилого первого этажа.
Новую кухню я расположила на месте бывшего коридора, максимально близко к стоякам.
Разобравшись с перепланировкой, переходим к дизайну. Классическое решение для однокомнатной квартиры – зонирование барной стойкой. В нашем случае она выполняет и практическую функцию, заменив собой обеденную зону на кухне .
Столешница выполнена в черном цвете, на контрасте с ней светлые стулья от Kare. Кухонный гарнитур я разделила на две противоположные стены, это позволило увеличить количество мест хранения и рабочие поверхности.

Чтобы белый цвет не выглядел скучным, выбирайте к нему в дуэт контрастные оттенки
Маленькая площадь достаточно требовательна к выбору цвета в отделке стен и пола, поэтому выбор сделан в пользу светлого бежевого и белого в отделке мебели.

На кухне поместилась даже зона отдыха в виде небольшого диванчика
При обустройстве небольшой кухни выбирайте светлые глянцевые фасады, которые за счет отражающей способности визуально увеличивают пространство.
Система освещения организована накладными светильниками в кухонной нише большой люстрой над диваном и стойкой с несколькими светильниками над барной стойкой.

Отделка стен в спальне
Спальня выполнена в светлых тонах, которые разнообразила акцентная стена. Комфорт и оптимальную температуру обеспечивают радиаторы, спрятанные за стеклом и кондиционер.

В спальне поместилась полноценная двуспальная кровать и две прикроватные тумбочки
На пол уложена теплая паркетная дубовая доска. Освещение в спальне – боковые светильники. За счет большого окна на южной стороне от центральной люстры удалось отказаться. Места хранения организованы в прикроватных тумбочках и шкафу, который расположился в нише.

Расположение мест хранения
В небольшой ванной рекомендую использовать плитку большого размера, например, 900х300 мм.
Чем меньше швов в отделке, тем лучше.

Интерьер однокомнатной квартиры 33 кв.м для семьи с ребенком. Однушка 35 кв. м для семьи с двумя детьми
Изолированную комнату отдали под детскую, а в кухне-гостиной установили удобный диван-кровать и вместительную систему хранения.

Площадь однокомнатной квартиры в ЖК «Юнион» в Санкт-Петербурге, которую оформили специалисты бюро Cubiq Studio, составляет всего 35 м2. Жить в ней планирует семья с двумя детьми. Им могло бы быть тесно на скромной площади, если бы не главное преимущество квартиры. Коммуникации подведены в более глубокой и темной части большой комнаты. Благодаря этому удалось превратить её в кухню-гостиную, а маленькую изолированную спальню превратить в детскую.

Поскольку родителям предстоит спать в гостиной, дизайнеры выбрали диван-трансформер, который превращается в полноценную двуспальную кровать. Напротив неё установили комод под телевизор и пару открытых полок для книг.

Зону прихожей отделили от основного пространства нишей со встроенным шкафом для верхней одежды. А чтобы помещение не казалось тесным, в холле установили большое зеркало в белой раме, а проем оставили широким. Благодаря этому комната будто продолжается за пределы прихожей.

Кухонный гарнитур встроили в небольшую отведённую для него нишу. Выбрали максимально вместительную П-образную модель с минималистичными белыми матовыми фасадами. Верхние шкафы чуть уже, а нижние – вровень со шкафом, который как будто их продолжает. На самом деле это система хранения для всех вещей, которые необходимы большой семье.

Поскольку зона кухни уж очень тесная, одну из стен освободили от верхних шкафов. Вместо них предусмотрели открытые полки для зелени и специй. В качестве кухонного фартука здесь использовали грифельную краску.

В детской комнате появилась двухъярусная кровать, причём спальные места расположены перпендикулярно друг другу. Это позволило внизу обустроить дополнительные полочки и зону отдыха с пуфом-игрушкой. Рядом – письменный стол со всеми необходимыми принадлежностями.

Шкаф выбрали с открыто-закрытой системой хранения. Это позволяет хранить в нём и повседневную одежду, и игрушки с книжками. Предусмотрели и компактную шведскую стенку, которая занимает минимум места.


Хотите видеть больше подобного в своей ленте – ставьте лайк.
Чтобы регулярно смотреть свежие подборки интерьеров со всего мира, подпишитесь на канал .
Дизайн однокомнатной квартиры 35 кв.м с нишей. Дизайн однокомнатной квартиры 35 кв.м
Дизайн однокомнатной квартиры 35 кв.м, как и дизайн любой другой однушки будет зависеть от того, какие функциональные зоны в ней будут заложены. Что в свою очередь зависит от количества членов семьи проживающих в ней, есть ли у семьи дети.
Если вы одиноки или вы молодая семья без детей, то сегодня весьма популярным приемом является перепланировка однушки в студию. Это возможно только в том случае если планировка квартиры позволяет это сделать и стена, которую вы собираетесь снести не несущая. Такой вариант создания новой планировки и дизайна однокомнатной квартиры 35 кв.м с одной стороны моден и с другой мы получаем больше пространства, тем самым делая квартиру более просторной и свободной. Но со сносом стены, между гостиной и кухней, приходят свои небольшие минусы. Которые касаются специфики кухонного пространства, о них читайте ниже в статье.
Дизайн однокомнатной квартиры 35 кв.м фото
Если вы решили оставить все как есть, то необходимо подумать над тем каким образом в одной комнате объединить, разные зоны: спальню, гостиную, рабочий кабинет и др. Необходимо сделать одну единственную комнату такой, чтобы она выполняла функции сразу нескольких. Строить стены и делить на отдельные комнаты — такой вариант нам не подходит.
Поэтому для этого существуют различные способы зонирования.
Зонирование однокомнатной квартиры: способы
Чаще всегозонируют на две части — это гостиная-спальная.
Зонирование перегородками
Самый простой способ — это использовать различные перегородки, которые и будут отделять гостиную от спальни. При этом спальное место не должно быть проходимым, то есть его необходимо расположит у окна. В качестве перегородок могут выступать, как мебель, так и различного вида ширмы.
Но сегодня благодаря распространению такого материала, как гипсокартон, стало возможным сделать перегородку более красивой и стильной., может быть любой формы, при этом в ней можно сделать, что будет весьма эстетично.
Различные варианты зонирования с помощью перегородок однокомнатной квартиры смотрите на фото ниже.


Зонирование раздвижными перегородками
Весьма популярным приемом зонирования комнаты является использование раздвижных панелей-перегородок. Панели могут быть как прозрачными, так и полностью глухими. В закрытом состоянии они, гостиную будут делить уже на две комнаты.
Зонирование комнаты подиумом
Такой вариант также весьма успешен, так как это не классический вариант, разные уровни в комнате — это всегда очень интересно. Если таким образом выделить спальную зону в гостиной однокомнатной квартиры, то вполне можно обойтись и без кровати, положив на подиум обычный матрац.
Таким же образом на подиуме с успехом можно разместить рабочий кабинет.
Дизайн однокомнатной квартиры студии 35 кв.м
Если вы приобрели однушку в которой хотите сделать перепланировку, то предварительно ознакомьтесь с нюансами которые лучше знать, чтобы потом не сожалеть о снесенной стене.
- Перепланировка однушки в студию стоит делать только в том случае если в ней будут жить не более двух человек, и при этом чтобы это была семейная пара. Если в семье же планируется ребенок, то помните о том что кухня место довольно шумное особенно в процессе готовки. Поэтому в квартире стоит иметь хотя бы одну изолированную комнату.
- Поскольку кухня место практичное, со сносом стены за чистотой в ней придется следить особенно внимательно, чтобы не портить вид с гостиной. Не приятно когда вы сидите в стильной гостиной, и перед вами открывается вид на кухню с горой не мытой посуды.
- Запахи от готовки — вот еще одна проблема, которая возникает при сносе стены. Они беспрепятственно будут проникать на всю площадь квартиры. Поэтому для кухни вам придется приобрести мощную вытяжку.
- Шум бытовой техники — мощная вытяжка, холодильник, микроволновка, посудомоечная машина и др. Все это способно создавать довольно много шума, а некоторые таки как холодильник работают постоянно. Днем когда никто не спит ничего страшного, а вот в ночное время — это постоянство может и здорово надоесть. Чтобы этого избежать, необходимо подыскать модели кухонной техники максимально бесшумные.

Перепланировка в однокомнатной квартире 35 кв.м позволяет сделать ее довольно большой для студии, поскольку студии у современных застройщиков редко бывают больше 30 кв.м.
Поскольку площадь больше 30 метров, позволяет получить полноценную однокомнатную квартиру.
Многие россияне конечно же предпочитают иметь полноценную однокомнатную квартиру, чем студию. Все равно изолированные комнаты более практичны и удобны чем объединенные.