Толщина отмостки из бетона вокруг дома. Требования к толщине
- Толщина отмостки из бетона вокруг дома. Требования к толщине
- Толщина отмостки СНиП. Размеры отмосток по СНиП
- Ширина отмостки частного дома. Как правильно выполнить отмостку
- Толщина отмостки по госту. Понятие и особенности
- Уклон отмостки на 1 м СНиП. Какой уклон отмостки на должен быть на 1 метр ширины
- Высота отмостки от земли. Что такое отмостка дома
- Отмостка вокруг дома. Отмостка – против и за
Толщина отмостки из бетона вокруг дома. Требования к толщине
В основу этого габаритного размера вкладывается марка бетона, используемого для заливки основы под облицовку. Чем она больше, тем меньше толщина. Но необходимо понимать, что бетонный слой – не единственный в конструкции отмостки. Здесь надо будет учитывать дополнительно песчано-гравийную подушку. А она обычно засыпается толщиною 5-15 см в зависимости от типа почвы на загородном участке. Чем мягче грунт, тем толще подушка.
Технология формирования отмостки
Итак, разобравшись со всеми параметрами и материалами, переходим к процессу сооружения окантовки фундаментной конструкции. При кажущейся простоте это на самом деле непростой процесс. И каждая его операция требует особого подхода. Ведь от прочности и надежности заливаемого элемента зависит срок эксплуатации фундамента, а соответственно и дома.
- Начинать закладку отмостки надо с разметки , где в основу конструкции закладывается ширина ленты . Этот параметр откладывают от стен дома по всему периметру строения . После чего выкапывают траншею, глубина которой определяется заранее.
- Далее в подготовленную траншею засыпают песок , который выравнивают и утрамбовывают. Минимальная толщина слоя – 10 см.
- Далее засыпают гравийный или щебеночный слой , который также выравнивают и утрамбовывают. Толщина – 15 см.
Теперь надо решить – будет ли отмостка с утеплением или без. Сегодня все чаще сооружают первый вариант, тем самым добиваются дополнительной теплоизоляции подвала или цокольного этажа загородного дома. Для этого можно использовать керамзит, перлит, вспученный вермикулит, пенополистирольные плиты.
Обратите внимание, если сооружается утепленная отмостка, то придется выкапывать траншею вокруг дома глубже с учетом толщины теплоизоляционного слоя.
Итак, утеплитель уложен (засыпан) можно переходить к формированию бетонной основы. Для этого внутрь на теплоизоляционный слой укладывают армирующий каркас, изготовленный из стальной или стекловолокнистой арматуры. Можно использовать металлическую сетку, к примеру, штукатурную или рябицу. Необходимо отметить, что между утеплителем и армирующим каркасом должно быть небольшое расстояние. Все дело в том, что армокаркас должен располагаться в теле бетонного основания, тем самым усиливая и упрочняя его.
Бетон заливают до определенной высоты, которая определяется высотою внешнего края отмостки. Она должна составлять 5 см минимум. И это с учетом облицовки.
И последний этап – отделка. Кстати, именно в зависимости от внешнего покрытия отмостки делятся на три разновидности.
Отмостка вокруг дома: назначение, виды конструкции, цена работ и материалов
Виды отмостки
Первую разновидность можно обозначить, как отмостки с жестким покрытием. Для этого используют бетон или асфальт. Использование первого материала требует укладки армирующего каркаса. При использовании второго армокаркас не нужен, потому что асфальт легко переносит достаточно серьезные нагрузки на изгиб.
Что касается бетонной дорожки, то необходимо уточнить, что для внешнего покрытия необходимо использовать водонепроницаемые бетонные растворы. При заливке бетона необходимо строго придерживаться технологии укладки. То есть бетонная отмостка должна быть без трещин и разрывов. Но обязательно между ней и фундаментом оставляется компенсационный зазор, который будет компенсировать температурное расширение бетона.
Толщина отмостки СНиП. Размеры отмосток по СНиП
Основной параметр – это ширина отмостки. В своде норм и правил указывается, что этот размерный показатель зависит от нескольких факторов, а именно от:
- типа грунта
на загородном участке;
- степени просадки почвы
;
- ширины выступа карнизного
свеса крыши
; - архитектурных особенностей здания
.
Что касается зависимости от типа грунта, то здесь необходимо обозначить два вида почвы.
- Это грунты, устойчивые к деформационным
нагрузкам
. Здесь имеются в виду нагрузки от собственной массы. Степень просадки таких почв не превышает 50 мм. - Грунты, которые восприимчивы к нагрузкам
. Их степень просадки больше 50 мм.
Так вот если на загородном участке расположены грунты первой категории, то ширина отмостки должна быть в пределах 150 см. Если второй категории, то 200 см.
Определить тип грунта можно, передав почву на анализ. Или другой вариант – обратиться в геодезическую службу района.
Минимальная ширина отмостки по СНиП Источник ok.ru
На нашем сайте Вы можете ознакомиться с самыми популярными 3184 проектами домов от лучших строительных компаний с безупречной репутацией на рынке. Широкий выбор, приемлемая цена от 51050 рублей, гибкие условия и гарантия качества позволяют подобрать подходящий вариант на любой бюджет и реализовать все пожелания клиента. Напрямую пообщаться с представителями можно посетив выставку домов «Малоэтажная Страна».
Но есть в СНиПе так называемый минимальный параметр ширины. Он определен диапазоном 80-100 см. При этом важно учитывать ширину свеса крыши дома. То есть первый параметр должен быть больше второго на 20-30 см. Получается так, что стекающая с крыши вода должна попадать на отмостку и по ней удаляться подальше от фундамента здания.
Но при этом в СНиПе указывается о пропорциях отмостки и здания, а также зданиях соседних. Необходимо строго следить за этими пропорциями, потому, к примеру, узкая дорожка вокруг дома может не вписаться в общий экстерьер участка в целом.
Узкая отмостка смотрится некрасиво Источник pinterest.com
Угол наклона отмостки
Переходим к не менее важному параметру – уклону отмостки. Именно от него зависит, как дождевая и такая вода будут отводиться от здания. В СНиПе четко обозначено, что минимальный угол наклона должен варьироваться в пределах от 2° до 3°. В своде также обозначен и другой показатель, связанный с уклоном. Это толщина сооружения около фундамента. Она должна быть равна 10-15 см. А толщина внешнего края – 5-10 см.
Оптимальный угол наклона отмостки Источник cokr54.ru
Но с толщиной отмостки не все так просто, поэтому разберем и этот размер.
Требования к толщине
В основу этого габаритного размера вкладывается марка бетона, используемого для заливки основы под облицовку. Чем она больше, тем меньше толщина. Но необходимо понимать, что бетонный слой – не единственный в конструкции отмостки. Здесь надо будет учитывать дополнительно песчано-гравийную подушку. А она обычно засыпается толщиною 5-15 см в зависимости от типа почвы на загородном участке. Чем мягче грунт, тем толще подушка.
Толщина окантовки зависит от толщины укладываемых слоев Источник pobudova.in.ua
Самые популярные производители и строительные компании собраны на выставке и представлены на нашем сайте. Здесь Вы можете найти контакты, выбрать и заказать любую услугу, среди которых ремонт фундамента, монтаж металлоконструкций (навесов, теплиц и т.п.), ремонт кровли, строительство заборов и ограждений. Напрямую пообщаться с представителями можно посетив выставку домов «Малоэтажная Страна».
Ширина отмостки частного дома. Как правильно выполнить отмостку
В строительном бизнесе одним из основных факторов выполнения качественных работ является опыт. Чтобы правильно выполнить отмостку, необходимо обязательно соблюдать СНиП из раздела «Благоустройство территорий», которые легко можно найти в интернете.
Там вы узнаете, какая должна быть ширина отмостки согласно нормам СНиП и другие необходимые данные для укладки дорожки вокруг дома.
Для начала вы должны понимать, что отмостка выполняется двумя слоями:
- Подложный;
- Покрывающий.
Подложка является основой для выбранного покрытия. Верхний слой делается из бетона, плитки или асфальта. Каким же должна быть толщина, высота и ширина отмостки жилого дома для лучшей функциональности? Кроме этих официальных стандартов, необходимо знать нюансы строительства, которые мы приведем ниже:
- Данные работы необходимо проводить после окончания облицовки стен;
- Ширина отмостки зависит от грунта, где расположено здание и от карнизных свесов. Размеры отмостки вокруг дома колеблются от полуметра и выше.
- Нижний слой состоит из глины, щебня или песка и не должен превышать высоту в 20 см;
- Покрытие необходимо выбирать водонепроницаемое и устойчивое во время размытия. Этот слой чаще всего равен 10 см;
- Необходимо обязательно сделать уклон;
- Между нижним и верхним слоем для утепления можно положить специальный материал.
Расчеты ширины отмостки частного дома, угла наклона, высоты каждого слоя и планирование немаловажны, поэтому к выбору покрытия необходимо подойти серьезно и основательно.

Толщина отмостки по госту. Понятие и особенности

Отмостка — это важная конструктивная часть здания, которая проходит сплошным покрытием по периметру всего строения
Не стоит думать, что устройство отмостки вокруг дома несёт только эстетические функции. Это важная конструктивная часть здания, которая проходит сплошным покрытием по периметру всего строения. Ширина этого изделия нормируется СНиП с маркировкой 2.02.01-83.
Важно: отмостка делается после того, как весь дом построен и выполнены наружные отделочные работы.
Устройство отмостки согласно СП необходимо завершить до наступления холодов. Для выполнения этого покрытия вокруг здания можно использовать несколько видов материалов, используемых для дорожных одежд по ГОСТ:
- бетон – это самый доступный и распространённый материал, который часто используется в индивидуальном строительстве;
- тротуарная плитка;
- асфальт.
Встречается ещё одна разновидность отмостки, называемая скрытая. В этом случае на первый взгляд, кажется, что зелёный газон или тротуарное покрытие примыкает вплотную к дому. Но под ним на небольшой глубине выполняется скрытая бетонная отмостка, которая не хуже поверхностных покрытий защищает основание дома.
Согласно СП основные функции, которые выполняет это изделие вокруг жилого или промышленного здания, следующие:
- Эстетическая роль отмостки бесспорна, ведь благодаря аккуратной полосе покрытия вокруг дома всё строение смотрится аккуратным и законченным.
- Главная роль этой конструктивной части – защитная. Именно поэтому так строго нормируются основные параметры в СП, ГОСТ и СНиП. Благодаря защитному покрытию талые и осадочные воды не могут подмывать грунт под домом и контактировать со строительными конструкциями, медленно разрушая их. Кроме этого, изделие защищает фундамент от разрушения корневой системой деревьев.
- Устройство отмостки помогает сохранить тепло в подвальном помещении и доме. Всё дело в том, что грунт под отмосткой не будет глубоко промерзать, а следовательно, в подвале сохранится тепло, которое не даст полам на первом этаже быть холодными.
- В СП оговаривается защитная функция отмостки от вспучивания породы. Если грунт вокруг здания будет промерзать не так глубоко, как раньше, то силы морозного пучения не станут воздействовать на подземные конструкции основания.
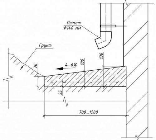
Уклон отмостки на 1 м СНиП. Какой уклон отмостки на должен быть на 1 метр ширины
Важной частью любой постройки является наличие водонепроницаемого покрытия, которое будет находиться вокруг всего дома и максимально плотно прилегать к цоколю. В данной ситуации стоит правильно подобрать ширину и толщину отмостки, а также ее угол уклона. От этого будет зависеть то, насколько хорошо дом будет защищен от влаги. Сделать отмостку можно без проблем самостоятельно, но если же вы боитесь допустить ошибки, то лучше воспользоваться помощью профессионалов.
Основные требования при изготовлении отмостки дома

Отмостка – это горизонтальная полоса, которая может иметь разную ширину.
Отмостка – это горизонтальная полоса, которая может иметь разную ширину. Она является частью дренажной системы, которая в обязательном порядке создается на любом участке, где присутствует дом или другое здание. Если говорить о конструкции, то она состоит из нескольких слоев, каждый из которых играет очень важную роль.
- Плотная основа – нижний слой.
- Дренирующий слой, для которого используется галька или щебень.
- Слой гидроизоляции из качественных пленочных материалов.
- Теплоизоляционный слой, который не позволит отмостке промерзать. Также он защищает от вспучивания грунта, расположенного рядом с фундаментом.
- Верхнее покрытие, которое, как правило, выполняется из бетона. Оно не только защищает постройку, но еще и дополнительно выполняет декоративную роль. За счет верхнего слоя вода не проникает в подвальные помещения и не вредит цоколю.
Во время изготовления конструкции вокруг дома очень важно соблюдать определенные требования и правила. Также стоит учитывать соответствующие нормы, которые прописываются в СНИП.
Требование СНИП к уклонам отмостки
Согласно СНИП отмостка должна иметь ширину в 1 метр.
В том случае, если на участке присутствуют глинистые грунты, которые могут навредить состоянию дома, то тогда стоит увеличить толщину песчаной подушки вплоть до 30 сантиметров.
Очень важно в данной ситуации учитывать еще и свес крыши. Ширина конструкции во многом будет зависеть от этого показателя. Ее ширина должна быть как минимум на 20 сантиметров больше, чем свес кровли.
Уклон отмостки должен начинаться непосредственно от фундамента здания. Это позволит воде без каких-либо препятствий стекать и впитываться в почву. Уклон отмостки будет зависеть от того, какую она имеет ширину и какой именно материал использовался для ее создания.
- Если использовался щебень или булыжник, а ширина отмостки не превышает 1 метр, то ее уклон должен составлять примерно 5-10 градусов.
- В случае с бетоном или асфальтом, уклон будет составлять 3-5% от ширины отмостки.
Как правильно сделать уклон отмостки
Для того, чтобы правильно сделать необходимый уклон, во время работ стоит использовать уровень. С его помощью делается заливка бетона и дальше измеряется полученный угол уклона.
Синхронизация уклонов с системой водоотведения воды

В обязательном порядке вокруг дома устанавливается дренажная система, которая отвечает за отведение лишней воды с участка. Отмостка должна быть синхронизирована с данной системой для того, чтобы лишняя влага не навредила постройке и не начала постепенно разрушать фундамент дома. Поэтому расстояние от труб системы водоотведения до конструкции вокруг дома должно быть минимальным.
Самостоятельная заливка отмостки с созданием уклонов

Выполнить все строительные работы относительно отмостки можно без проблем самостоятельно. Для этого стоит выполнить следующие этапы.
- Произвести разметку территории вокруг дома. В выбранных точках вбиваются колышки и между ними обязательно нужно натянуть нитку таким образом, чтобы получилась ровная линия.
- На тех местах, где будет находиться отмостка, аккуратно снимается верхний слой почвы. При этом стоит учитывать то, какой глубины будет будущая конструкция. В среднем данный показатель составляет 25 сантиметров.
- После того, как будет вырыта траншея, нужно внимательно осмотреть ее дно и удалить все присутствующие корни. Дополнительно дно обрабатывается специальными средствами, которые не позволят прорастать растениям. В противном случае конструкция со временем может быть разрушена.
- Дальше собирается опалубка. Щиты изготавливаются из необрезной доски. Ее толщина должна быть больше двух сантиметров. Щиты необходимо установить по всему периметру подготовленной траншеи.
- Затем необходимо выложить в траншею подушку из подготовленного материала. В большинстве случаев используется песок. Слой должен быть более 5 сантиметров.
- В последнюю очередь устанавливается каркас из качественной арматуры и заливается бетон, слой которого будет идти под определенным углом.
Сделать конструкцию для защиты дома от влаги самостоятельно не составит никакого труда.
Главное, правильно рассчитать ее размеры и подготовить качественные материалы, а также поэтапно выполнить совершенно все работы.
Высота отмостки от земли. Что такое отмостка дома
Отмостка – это покрытие по периметру дома, предназначенное для защиты фундамента, цоколя и подвала от воды. Делается из водонепроницаемого материала под уклоном от фундамента.
Для чего нужна отмостка вокруг дома (функции):
- гидробарьер — защита фундамента здания от воздействия влаги. В первую очередь дождевая и талая вода с помощью отмостки отводятся в сторону от фундамента. Кроме того, наличие отмостки сообщает теплоизоляционные свойства фундаменту;
- комфорт – отмостку можно использовать как дорожку вокруг дома. Широкая отмостка может стать основанием для обустройства возле дома зоны отдыха или террасы. При правильном расчете нагрузки, по отмостке можно организовать движение авто или его стоянку;
- эстетичность – оформление дизайна участка и придомовой территории, придание строению завершенности.
И ещё
- отмостка стабилизирует воздушно-газовый режим в почве, окружающей фундамент. В состав грунта неизменно входит кислород, который нужен для роста растений и обеспечения жизнедеятельности почвенных микроорганизмов. Крупные вредители также создают ходы для поступления воздуха в почву;
- исключает вероятность повреждения фундамента вследствие морозного пучения грунтов. Оно происходит из-за того, что вода, застывая в почве в холодное время года, увеличивает его объем. Пучение грунта само по себе не несет никакой угрозы, однако создает значительную боковую нагрузку на фундамент дома, результатом которой может стать перекос фундамента дома, что в конечном итоге приведет к разрушению стоящего на нем здания. Таким образом, устройство отмостки позволяет более равномерно распределить нагрузку.
Отмостка вокруг дома. Отмостка – против и за
Наличие отмостки предусмотрено строительными нормативами, так как она считается обязательным элементом зданий, но, если для профессионалов это прописная истина, то у частников бывает и другая точка зрения.
Mickas
Участник FORUMHOUSE
Пересмотрел кучу американской и канадской литературы по строительству домов – ни разу не встретил схем отмостки. Видимо, это чисто российское изобретение. У них все проще и логичнее: гидроизоляция фундамента, в том числе и пупыристой мембраной, дренажная труба ниже уровня фундамента и засыпка гравием. И незачем городить бетонные тропки вокруг дома и спонсировать производителей. По мне, отмостка не делает вид дома законченным, а смотрится как стартовая площадка для Тополя-М. Это мое субъективное мнение!
Recinto
Участник FORUMHOUSE
Плюсую, все эти танцы с отмосткой – это только дать заработать концернам и прочим горе строителям на незнающих заказчиках.
Greider
Участник FORUMHOUSE
По мне, так отмостка сильно портит вид здания. Ее важность переоценена. Нет ничего лучше, когда сразу от стены начинается газон. Сколько можно повторять мантру «дом приобретает завершенный вид» и отвод влаги? Как по мне, так отмостка очень сильно портит внешний вид и композицию дома. Получается какая-то подставка для дома. И там, в земле, как правило, столько влаги, сколько ни один дождь сверху не нальет. Дома стоят сотни лет без всяких отмосток и их утеплений, так стоит ли так заморачиваться?
То, что американские технологии не подразумевают устройство отмостки, вполне логично.
UncleSam
Участник FORUMHOUSE
Mickas, а вы загуглите, какая глубина промерзания в той же Калифорнии, и поймете, почему так.
Да и обвинения в том, что единственной целью устройства отмосток является «откачка» денег ушлыми производителями специализированных материалов, мягко говоря, не обоснованы.
Rustex
Участник FORUMHOUSE
Господа, вас послушать – так едва ли не «манагеры» отмостку придумали. Поверьте, эта технология куда как более стара и проверена временем. Чтобы «газон от дома», сделайте мягкую отмостку. Ну а строить совсем без отмостки в нашем климате – считаю неоправданным риском для дома.
Так стоит ли рисковать, если устройство отмостки не требует сверхсложных манипуляций, а экономия, причем минимальная на фоне общестроительных затрат, в будущем может вылиться в куда большие вложения.
Предназначение отмостки
Отмостка опоясывает фундамент по всему периметру и представляет собой широкую, водонепроницаемую полосу, выступающую за свес кровли не меньше, чем на 20 см. Ее главным предназначением является защита фундамента и цоколя от дождевой и талой воды – ширины отмостки достаточно, чтобы предотвратить намокание грунта в непосредственной близости к основанию.
Таким образом снижается и нагрузка на вертикальную гидроизоляцию и дренажную систему. Вода не только «камень точит», но и «всегда дырочку найдет» и лучше перестраховаться, чем откачивать воду из подвала или пытаться вытравить плесень антисептиками. Помимо основного, у отмостки и дополнительный функционал.
- Архитектурный элемент – вкусовые пристрастия у всех разные, для большинства наличие декоративной «окантовки» у фасада все же достоинство.
- Пешеходная зона – даже при хорошей погоде удобнее обходить дом не по земле, а по мощеной поверхности, но это работает преимущественно с твердыми отмостками. А вот когда вокруг слякоть, то и по засыпке топать предпочтительнее.
- Теплоизолятор – утепленная разновидность отмостки является одним из способов предотвращения промерзания и пучения грунта под фундаментом.
И если отсутствие окантовки для фасада совершенно не критично, как и без дорожки обойтись реально, то гидроизоляция избыточной быть не может. Наличие поверхностной в дополнение к вертикальной, значительно повышает шансы фундамента на безбедное существование.
Нормативные требования к отмосткам
Как и остальные элементы зданий, параметры отмостки регулируются строительными нормативами.
- Требования к основанию – непроницаемое для воды.
- Ширина – согласно общестроительным рекомендациям, датируемым еще 1975 годом, ширина отмостки должна быть от 0,7 м, а если взять нормы, разработанные для Москвы и области в 2002 году, то это от 0,8 до 1,2 м на обычных грунтах и от 1,5 до 3 м в сложных геологических условиях. Также этот параметр зависит от ширины свеса, чтобы капли со среза не попадали в грунт, полоса должна перекрывать свес на 20 см.
- Уклон – необходим для предотвращения застоя воды и мгновенного ее отведения, поперечный наклон отмостки должен быть от 1 до 10 %, по Москве это значение от 10 %. Значение уклона, выраженное в процентах, показывает отношение высоты к ширине, например, 1 %, это 1 см на каждый метр ширины с самой высокой точкой у стены.
- Расстояние от полотна до фундамента – 2 см, так как усадка дома и отмостки будет неравномерной, между полотном и фундаментом необходим деформационный шов. Этот шов актуален для бетонных и подобных покрытий, для которых его отсутствие чревато деформацией и потерей целостности.