Ремонт в панельном доме трехкомнатной квартиры. Как сделать ремонт в трехкомнатной квартире?
- Ремонт в панельном доме трехкомнатной квартиры. Как сделать ремонт в трехкомнатной квартире?
- Капитальный ремонт квартиры в панельном доме. Стоимость капитального ремонт 3-комнатной хрущёвки "под ключ" (работа + материал)
- Особенности ремонта в панельном доме
- Ремонт старой квартиры в панельном доме. Разница в затратах и особенности
- Ремонт в панельном доме с чего начать. C чего начать ремонт в квартире
- Ремонт кухни в панельном доме. Как увеличить площадь кухни в панельном доме?
- Видео обзор ремонта в стандартной квартире 64 кв м с перепланировкой!
Ремонт в панельном доме трехкомнатной квартиры. Как сделать ремонт в трехкомнатной квартире?

Ремонт – важная работа, к которой надо подходить со всей ответственностью. Важно внимательно выбирать отделочные материалы для разных комнат, учитывая их особенности. В этой статье мы узнаем, как правильно провести ремонт в трехкомнатной квартире разных типов.
Особенности ремонта
Прежде чем приступать непосредственно к ремонтным работам в 3-комнатной квартире, необходимо учесть все особенности жилища. В условиях панельного, кирпичного дома, «сталинки» или «брежневки» ремонт будет различным.
В панельном доме
Квартиры, находящиеся в панельном доме, имеют свои особенности. Их нельзя не брать в учет, делая ремонт. Подобные жилые площади отличаются следующими параметрами.
- Обычно квартиры в панельном доме имеют небольшую площадь, поэтому на ремонте в таких жилищах можно существенно сэкономить, но приходится тщательнее подбирать мебель, которая не занимает слишком много свободного места.
- В этих квартирах часто имеют место ярко выраженные панельные швы, которые могут выглядеть, как сквозные щели, ведущие на улицу. Из-за швов в квартире может быть прохладно. Эту особенность стоит учитывать, подбирая отделочные материалы.
- Как правило, в панельных домах присутствуют квартиры, в которых присутствуют неровные стены, потолок и даже пол. Их придется выравнивать, чтобы можно было переходить к дальнейшим отделочным работам. Часто приходится менять окна и дверные полотна.
- В условиях панельного дома можно совершать ряд «капитальных» работ, например: разрушение стен, объединение балконной площади и примыкающей комнаты, перенос «мокрых точек».
- Для отделки пола рекомендуется выбирать материалы, максимально простые и податливые в вопросах монтажа. Идеально подходит ламинат или недорогой линолеум.
Капитальный ремонт квартиры в панельном доме. Стоимость капитального ремонт 3-комнатной хрущёвки "под ключ" (работа + материал)

Самое примечательное в этом ремонте - он происходил в 2 этапа. Это и не удивительно, совсем непросто сразу найти деньги и возможности на полный ремонт трехкомнатной квартиры в которой проживаете. При заключении договора с заказчиками мы сразу оговорили оба этапа:
1. Ремонт жилой части.
2. Ремонт кухни, ванной и прихожей.
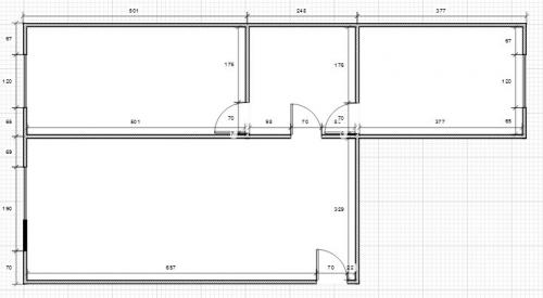
Сегодня я хочу подробнее остановиться на первом этапе, так как он был закончен пол года назад, а ко второму мы приступили только 10го июня. Ниже прикрепляю планировки до и после ремонта:

До ремонт

После ремонта
Проходной зал, две спальни разного размера и самостройная кладовка из ДВП. Ремонт требовался капитальный, меняли всё, кроме окон, пластиковый стеклопакет уже стоял до нас. Этапы ремонта:
1. Демонтаж. Осложнялось всё тем, что обои были приклеены прямо к бетонным панелям на какой-то сверх прочный клей. Если бы не было специальной жидкости - обои бы снимали неделю.
- Стоимость материалов: 2 000 рублей Стоимость работ: 15 000 рублей

2. Штробление и замена электропроводки . Кирпичные дома легче поддаются капитальному ремонту электропроводки. По наружке пускать провода - не серьёзно, а бетонные панели штробить дольше и тяжелее, чем кирпич. Даже если есть штроборез, пылесос и профессиональные диски - кирпич штробится быстрее, чище и менее затратно.
- Стоимость материалов: 22 000 рублей Стоимость работ: 25 000 рублей
3. Перестраивание кладовки и организация дверных проёмов . У всех панельных хрущевок есть особенность, которой лишены её кирпичные близнецы - дверной проём во всю высоту потолка:

На выходе из проходного зала мы собрали полуарку, а дверные проёмы в спальни вывели гипсокартоном на стандартный уровень под установку дверей. Так же полностью перестроили кладовку.

Полуарка

Возведение стены кладовки

Полуарка в зале.
- Стоимость материалов: 8 000 рублей Стоимость работ: 10 000 рублей
4. Штукатурка, шпаклевка и шлифовка стен . Тут всё стандартно.

- Стоимость материалов: 26 000 рублей Стоимость работ: 38 000 рублей
5. Натяжной потолок и поклейка обоев . Заказчики долго решали какое количество светильников будет в каждой из комнат и какого они будут дизайна. В зале кроме светильников повесили люстру, освещение работало от трёх клавиш - две зоны точечных светильников и одна на люстру.


- Стоимость материалов: 58 500 рублей Стоимость работ: 31 000 рублей
6. Полы и финишные работы . Линолеум, ламинат и другие напольные покрытия мы всегда оставляем на конец, кто-то делает полы в середине, но это не правильно, большой риск повредить или испачкать покрытие.
Вывод : нами была проведена небольшая перепланировка, в результате чего, без потери полезного пространства, мы отделили зону отдыха в зале от проходной зоны между комнатами. Так же пикантности придаёт наличие полуарок в проёмах. Заказчики подобрали очень подходящие друг к другу обои и линолеум, в результате чего ремонт получился весьма и весьма элегантным. Напортачил только установщик дверей от магазина, где были приобретены двери. Памятка всем заказчикам – тщательно проверяйте подобные работы, ведь установщика дверей вы не будете рекомендовать своим друзьям и родным, каким бы профессионалом он не был. Он попросту не заинтересован делать свою работу безупречно.
Общая стоимость работ по первому этапу - 119 000, стоимость материала - 116 500.
Ставьте "Нравится" и подписывайтесь на канал, впереди ещё много полезного и интересного.
Особенности ремонта в панельном доме
С проблемой необходимости ремонта в квартире рано или поздно сталкивается каждый. И сразу же появляется масса вопросов: как делать, что делать, в каком стиле, какие материалы и оборудование нужны, сколько понадобится времени и денег, как посчитать смету… И, конечно же, многих волнует вопрос: делать недорогой ремонт квартир самостоятельно или обращаться к профессионалам?
Обычно те, кто не имеет достаточного опыта и располагает нужным количеством денежных средств, сразу обращаются к специалистам. Если же такой возможности нет, то в Интернете Вы можете найти множество советов о том, как сделать ремонт квартиры, дома своими руками. Изучив разные пошаговые инструкции, вы, в принципе, сможете сами приступать к поэтапному выполнению разных работ. Безусловно, понадобится изучить технологии их выполнения, чтобы избежать неприятных последствий в будущем. Кроме того, могут возникнуть и другие сложности. Самостоятельный ремонт: преимущества или сложности?
Итак, вы решили сделать дешёвый ремонт квартиры своими руками. Любой форум подскажет вам интересные варианты ремонта хрущевки, малогабаритной, новой квартиры собственными руками, там же вы сможете скачать различные книги по этой теме со схемами расчёта сметы. На первый взгляд может показаться, что в самостоятельном проведении ремонтных работ одни сплошные плюсы, однако на практике преимущества могут превратиться в недостатки:
Вы сами определяете сумму расходов. В любом случае вероятность ошибиться в расчётах есть. Так, пока вы проводите необходимые работы, цены на некоторые материалы могут вырасти. Кроме того, могут обнаружиться неучтённые при первоначальном планировании моменты, могут понадобиться мелкие или даже крупные переделки. Всё это потребует дополнительных расходов.
Выбирая материалы, вы можете быть уверены в их хорошем качестве. В действительности хорошо знать о том, каков тот или иной материал «в работе» можно только разбираясь в особенностях его состава, производства и имея большой опыт работы с ним. При обращении к профессионалам большая часть средств расходуется на оплату самой работы. Соответственно, сделать косметический или даже капитальный ремонт квартиры своими руками получится дешевле. Действительно, с одной стороны – экономия есть. С другой стороны, насколько вы уверены, что Ваши усилия и время стоят сэкономленных денег? Особенно если учесть, что уровень вашего мастерства, конечно, ниже, чем у мастеров, и что высока вероятность дополнительных трат на переделки.
Вы сможете заниматься ремонтом в удобное время, не подстраиваясь под время работы прорабов, сантехников и других специалистов. Только помните, что свободного времени в нужном количестве обычно не хватает, и процесс ремонта может существенно затянуться.
Ремонт старой квартиры в панельном доме. Разница в затратах и особенности
Принято считать, что сделать ремонт в старой квартире априори дороже во много раз. Давайте разбираться, так ли это. Речь пойдет не о ремонте «меня все устраивает, обойки разве что переклеить», а о глобальном, под себя.

Где ремонт дороже — в новостройке или в «старом фонде»?
Демонтаж . В старой квартире его много, по сути — все. В новостройке его… нет ли? Часто, когда вы делаете квартиру под себя, вы делаете перепланировку и сносите все перегородки. А если и не делаете, то зачастую качество перегородок оставляет желать лучшего, и их ломают, чтоб выставить новые на тех же местах. То же и со стяжкой — ох, бывает и стяжка от застройщика летит в мусор. Так что разница разве что в чистоте мусора, а от этого цена на демонтаж ну никак не зависит.

Нет большой разницы — вывозить старый мусор или новый
Инженерия . Устраивает ли вас расположение розеток и сантехники от застройщика? Нет? То есть все с нуля, как и в «старом фонде»?
Коробка квартиры . В «старом фонде» после «вскрытие покажет» вас могут ждать сюрпризы — часто приходится вкладываться дополнительно в перекрытия снизу и/или сверху… А в новострое? Нет? А про звукоизоляцию не забыли? Если делать нормально, то это немаленькая цифра в смете. И плюс (вернее минус) высота потолков и площадь пола — а теперь эти съеденные 10 см на границе с соседями переведите в квадратные метры и умножьте на цену этого самого метра.

Звукоизоляция «съедает» квадратные метры, а в новостройках зачастую без нее не обойтись
Окна и двери . Вот тут в «старом фонде» действительно придётся потратиться. Как правило, они больше и их больше. Но это того стоит, поверьте! Так же, как и площади стен при том же периметре больше за счёт высоты потолка. Но это та малая трата, за счёт которой вы получаете пространство, не говоря о дополнительном месте хранения за счёт более высоких шкафов.

В «старом фонде» больше мест хранения, так как выше потолки
Теперь о плюсах и минусах каждого типа квартиры и особенностях ремонта, которые стоит учитывать заранее, то есть до покупки, и быть к ним готовым.
Ремонт в панельном доме с чего начать. C чего начать ремонт в квартире

C чего начать ремонт в квартире? Вопрос серьёзней, чем кажется на первый взгляд. Причём не важно начинать ремонт в новой или старой квартире. А если Вы собираетесь жить в этом ремонте, делать своими руками, да ещё у Вас нет должного опыта в ремонте квартир - советую прочитать эту статью.
В последнее время люди всё чаще делают ремонт своей квартиры, своими руками. Это вызвано тем, что таким образом люди пытаются с экономить деньги, не нанимая строительные бригады или фирмы. У одних - финансовые трудности, другие считают, что посмотрели телепередачу о ремонте квартиры и думают, что это легко сделать самому. Я не буду высказывать хорошо это (ремонт квартиры своими руками) или нет. Вы это сами решите когда прочитаете эту статью. В любом случае - советую проконсультироваться со специалистами в этом деле.

Для начала нужно определиться, какой ремонт Вы хотите сделать - косметику (замена обоев, покраской потолка и сменой линолеума) или капитальный (с выравниванием стен и полов, заменой окон и вообще всего старого и надоевшего на новое и красивое).
Дальше Вам нужно узнать количество необходимого строительного материала (достаточно знать объёмы работ и расход материалов на эти виды работ).
Походить по магазинам и посмотреть стоимость этих строительных материалов. Главное чтобы денег хватило на ремонт новой или старой квартиры. Причём советую иметь на 20% больше денег, чем Вы посчитали, т.к. почти всегда есть не предвиденные расходы (скрытые дефекты незапланированные работы и т.д.). Это позволит Вам с меньшими тратами нервных клеток сделать ремонт в квартире и не превратить его в долгострой из-за отстутствия финансов.

C чего начать ремонт в новой или старой квартире? С демонтажа.
Ломаем всё что не нужно. Потом подготавливаем полы, стены и потолок к ремонту. Если в квартире аллюминивая проводка, то лучше её заменить на медную, современные бытовые приборы потребляют много мощности при которых аллюминивая проводка может не выдержать. Затем начинаем сам ремонт.
Если Вы делаете ремонт в квартире в которой и живёте - начинайте делать туалет, ванну, затем кухню (в этих помещениях больше всего грязи), затем, по очереди комнаты и только последним делом коридор, т.к. коридор используется как место хранения черновых строительных материалов. Ремонт квартиры начинается всегда с верху в низ. С начало выполнятся черновые работы - монтаж потолка или шпаклёвка потолка, штукатурка и шпаклёвка стен или монтаж гипсокартона на стены, затем делается стяжка или наливной пол.
Правда есть исключения:
Если у вас кривые стены, а вам нужно делать потолок из гипсокартона , то с начало штукатурятся стены, затем собирается потолок и только потом идёт шпаклёвка потолка и стен. Если у вас деревянный пол, то с начало ремонтируется пол, а потом делаются стены.
После выполнения черновых работ, так называемой грязи, опять-же с верху в низ, начинаете красить, клеить обои,стелить напольные покрытия.
Ремонт кухни в панельном доме. Как увеличить площадь кухни в панельном доме?
Первостепенная задача, которую необходимо решить в процессе внесения изменений в планировку кухонной зоны в жилом доме, это максимально возможное увеличение пространства.
При всей сложности задачи ее вполне по силам разрешить и достигнуть ощутимых результатов даже без сноса перегородок и объединения кухни с гостиной комнатой. Для этого необходимо совершить несколько относительно простых действий.
- Для начала следует демонтировать дверь и заменить ее аркой. Это позволит сделать пространство дизайна кухни в панельном доме немного просторнее.
- Нужно поменять устаревшие чугунные батареи на современные, стильные и технологичные радиаторы нового поколения. Вы будете удивлены, когда увидите, сколько места занимали радиаторы предыдущего образца. Дизайн кухни 9 метров в панельном доме фото идеи:




- Наличие кладовки в непосредственной близости от кухни – замечательная возможность. Можно пробить в стене кладовой, которая соприкасается с кухней, отверстие, и установить там мойку.
- В ситуации, когда в зоне кухни находится дверь на лоджию, есть возможность ее демонтировать, а вместо подоконника поместить столешницу или стойку, как в баре. В итоге можно увеличить площадь приблизительно на 2 кв. м. Смотрите дизайн кухни с балконом в панельном доме:



- Дизайн кухни в панельном доме с окном. Окно тоже можно расширить за счет светового проема. Чтобы это стало возможным, необходимо сделать выбор в пользу металлопластиковых окон с узкой створкой.
Если вы обладаете определенными знаниями и опытом, то все эти изменения в планировке можно осуществить самостоятельно, к тому же, это не займет много времени.
