Идеи дизайна интерьера

+1000 идей для Вашего интерьера!

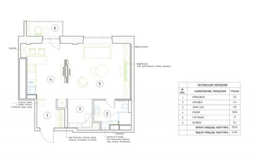
Маленькая квартира в скандинавском духе в Москве (42 кв. м)

11.12.2019 в 21:40

В дизайне маленьких пространств всегда очень важно впустить максимальное количество света и постараться вместить как можно больше функциональных зон без ущерба стилю и комфорту. Эта московская квартира девушки студентки получилась как раз такой — яркой и невероятно удобной. Здесь есть все, что просила заказчица: гостиная с кухней, которая может при необходимости отделяться, полноценная двуспальная кровать, пианино (хозяйка увлекается музыкой) а также прихожая с вместительным гардеробом. Что касается оформления, то это очень светлый интерьер в духе скандинавского лаконизма со стильными красочными деталями и современной мебелью.

Маленькая квартира в скандинавском духе в Москве (42 кв. м)Маленькая квартира в скандинавском духе в Москве (42 кв. м) 01Маленькая квартира в скандинавском духе в Москве (42 кв. м) 02Маленькая квартира в скандинавском духе в Москве (42 кв. м) 03Маленькая квартира в скандинавском духе в Москве (42 кв. м) 04Маленькая квартира в скандинавском духе в Москве (42 кв. м) 05Маленькая квартира в скандинавском духе в Москве (42 кв. м) 06Маленькая квартира в скандинавском духе в Москве (42 кв. м) 07Маленькая квартира в скандинавском духе в Москве (42 кв. м) 08Маленькая квартира в скандинавском духе в Москве (42 кв. м) 09Маленькая квартира в скандинавском духе в Москве (42 кв. м) 10Маленькая квартира в скандинавском духе в Москве (42 кв. м) 11Маленькая квартира в скандинавском духе в Москве (42 кв. м) 12Маленькая квартира в скандинавском духе в Москве (42 кв. м) 13