Простое и эффективное: 10 шагов к созданию красивой комнаты
- Простое и эффективное: 10 шагов к созданию красивой комнаты
- Связанные вопросы и ответы
- Как выбрать подходящий цвет для стен комнаты
- Как правильно сочетать цвета мебели и интерьера
- Какие материалы наиболее эффективны для отделки стен
- Как правильно подобрать освещение для комнаты
- Какие элементы декора наиболее эффективны для создания красивой комнаты
- Как правильно расставить мебель в комнате
Простое и эффективное: 10 шагов к созданию красивой комнаты
Создать идеальный интерьер дома может оказаться непростой задачей, особенно для новичков. Однако существует множество практических советов, которые помогут сделать наш интерьер красивым и эргономичным. В этой статье мы представляем 10 шагов, которым следует следовать, чтобы создать идеальное пространство дома.Подзаголовок 1: Определите свой стиль
Первый шаг к созданию идеального интерьера — определить свой собственный стиль. Вы предпочитаете современный минимализм или деревенский шарм? Выберите стиль, который подходит вам и отражает вашу индивидуальность. Это поможет вам сохранить единообразие во всем интерьере.Подзаголовок 2: Позаботьтесь об оптимальном освещении
Правильное освещение способно творить чудеса в дизайне интерьера. Установите различные источники света, такие как потолочный светильник, прикроватные светильники и точечные светильники. Помните о местах, требующих более сильного освещения, например, о столе или кухне.Подзаголовок 3: Выбирайте правильные цвета
Цвета оказывают огромное влияние на наше самочувствие и атмосферу в комнате. Выбирайте цвета, которые соответствуют вашим предпочтениям и хорошо гармонируют со стилем интерьера. Также рассмотрите возможность использования разных оттенков, чтобы добавить комнате глубины.Подзаголовок 4: Инвестируйте в удобную мебель
Удобная мебель – залог создания идеального интерьера. Выбирайте мебель подходящего размера и формы, которая будет функциональной и эргономичной. Не забудьте о декоративных элементах, например, подушках или покрывалах, которые добавят характер и уют.Подзаголовок 5: Минимизируйте беспорядок
Следующий шаг — минимизировать беспорядок в комнате. Убедитесь, что у вас достаточно места для хранения, и организуйте свои вещи. Выбросьте или отдайте ненужные вещи, а оставшиеся рассортируйте по соответствующим местам. Избегайте чрезмерных украшений и старайтесь поддерживать все в порядке.Маркированный список (подзаголовок 5):
Убедитесь, что у вас есть необходимое количество полок, шкафов и ящиков.
Будьте организованы, регулярно убирая и расставляя вещи.
Пожертвуйте ненужные вещи на благотворительность или попытайтесь продать их.
Подзаголовок 6: Персонализируйте пространство
Хотите, чтобы ваш интерьер был уникальным и отражал вашу индивидуальность? Персонализируйте пространство с помощью картин, фотографий, растений или других важных для вас украшений. Добавьте элементы, которые заставят вас чувствовать себя как дома.Подзаголовок 7: Уделяйте внимание деталям
Детали важны в создании идеального интерьера. Обратите внимание на мелкие элементы, такие как дверные ручки, дверные ручки или выбор ткани для штор или подушек. Небольшие изменения способны сделать интерьер более элегантным и изысканным.Маркированный список (подзаголовок 7):
Выбирайте эстетические ручки и дверные ручки.
Что-то вроде новых тканей для штор и подушек, соответствующих остальному декору.
Обратите внимание на такие детали, как декоративные пуговицы или бусины, которые добавят шарма.
Создание идеального интерьера может оказаться непростой задачей, но, следуя приведенным выше советам для начинающих, мы сможем создать уникальное, красивое и функциональное пространство. Будьте креативны и наслаждайтесь своим интерьером! По поводу того, где можно получить промокод на фриспины без депозита для новых игроков в казино? Все очень просто, для этого существуют специальные сайт, к примеру по ссылке, которые собирают на своих страницах все актуальные предложения. Используйте специальные промокоды и забирайте до 150 бесплатных вращений за регистрацию в онлайн казино.
Связанные вопросы и ответы:
1. Что необходимо сделать для того, чтобы комната выглядела красивой
Чтобы комната выглядела красивой, необходимо выбрать подходящий дизайн и цветовую гамму, правильно расположить мебель и осветительные приборы, а также добавить аксессуары и декоративные элементы. Важно также следить за чистотой и порядком в комнате.
2. Как выбрать подходящий дизайн для комнаты
Чтобы выбрать подходящий дизайн для комнаты, необходимо определиться с ее назначением и стилем жизни хозяев. Выбирайте дизайн, который соответствует вашему вкусу и образу жизни. Также учитывайте размер комнаты и ее форму, чтобы правильно расположить мебель и аксессуары.
3. Как выбрать цветовую гамму для комнаты
Чтобы выбрать цветовую гамму для комнаты, необходимо определиться с ее назначением и стилем жизни хозяев. Выбирайте цветовую гамму, которая соответствует вашему вкусу и образу жизни. Также учитывайте размер комнаты и ее форму, чтобы правильно сочетать цвета и текстуры.
4. Как правильно расположить мебель в комнате
Чтобы правильно расположить мебель в комнате, необходимо учитывать ее назначение и размеры. Мебель должна быть удобной и функциональной, а также гармонично сочетаться с цветовой гаммой и дизайном комнаты. Также важно учитывать проходы и свободное пространство для передвижения.
5. Как правильно организовать освещение в комнате
Чтобы правильно организовать освещение в комнате, необходимо учитывать ее назначение и размеры. Освещение должно быть разнообразным и удобным для работы, отдыха и развлечений. Также важно учитывать энергосбережение и безопасность.
6. Как добавить аксессуары и декоративные элементы в комнату
Чтобы добавить аксессуары и декоративные элементы в комнату, необходимо учитывать ее назначение и стиль. Выбирайте аксессуары и декоративные элементы, которые соответствуют вашему вкусу и образу жизни. Также важно учитывать размеры комнаты и ее форму, чтобы аксессуары и декоративные элементы гармонично сочетались с мебелью и цветовой гаммой.
7. Как сохранить чистоту и порядок в комнате
Чтобы сохранить чистоту и порядок в комнате, необходимо следить за ее состоянием и регулярно уборкой. Убедитесь, что все предметы находятся на своих местах, а мебель и поверхности чистые и свободные от пыли. Также важно регулярно менять простыни и покрывала, а также очищать воздух с помощью фильтров и аэраторов.
Как выбрать подходящий цвет для стен комнаты
С практической точки зрения, комбинирование оттенков в дизайне имеет несколько важных аспектов, которые могут повлиять на функциональность, комфорт использования пространства:
1. Визуальное увеличение или уменьшение помещения. Например, светлые оттенки делают комнату более просторной. Они предпочтительны в небольших помещениях. Чередование светлых с темными может визуально изменить пропорции.
2. Маскировка дефектов. Правильные цветовые сочетания в интерьере помогут скрыть некоторые недостатки. Например, для стен с небольшими неровностями или трещинами, лучше выбирать светлые тона. Они равномерно отражают свет, что сделает неровности менее заметными. Для полов с небольшими дефектами, выбирайте материалы с текстурой. Они помогут сделать повреждения менее заметными. Если на мягкой мебели есть потертости, используйте акцентные подушки или покрывала с яркими узорами. Они отвлекут взгляд от дивана, «перетянут» внимание на себя.
3. Оптимизация освещения. Выбор оттенков может повлиять на яркость освещения. При недостатке естественного света лучше сделать светлую отделку. Она поможет снизить зависимость от искусственного освещения, сэкономить электроэнергию.
Если помещение залито солнцем практически весь день, оптимально делать ставку на темную отделку. Так удастся избежать излишней яркости.
4. Зонирование. Комбинируя оттенки, можно создать визуальные переходы между разными функциональными зонами, не используя громоздкую мебель или стены.Подходы к определению цветовой гаммы в интерьере
Определение цветовой гаммы включает различные подходы. Выбор конкретного метода зависит от типа и планировки помещения, стиля, общего впечатления, которое вы хотите создать. Вот некоторые популярные подходы к определению цветовой гаммы.
Монохромная гамма
Этот подход основан на использовании разных оттенков одного цвета или цветовой гаммы, что создает спокойный и гармоничный интерьер. Например, комбинация различных оттенков синего или серого может создать монохромный облик.
Плюсы:
спокойный гармоничный вид;
легко создать и поддерживать в хорошем состоянии, так как основу составляет один цвет
Минусы:
- может быть недостаточно выразительным или скучным, если не используются разные текстуры.
Когда подходит:
Спальня. Монохромная схема, особенно с использованием спокойных и нежных оттенков, создаст уютную и расслабляющую атмосферу, что особенно важно для спальни.
Гостиная. Монохром может быть идеальным выбором для гостиной, особенно если вы хотите создать сдержанный и элегантный вид.
Ванная комната. Монохромные цветовые схемы могут придать ванной комнате чистоту и яркость, особенно если используются светлые оттенки.
Офисное помещение. Монохром может быть хорошим решением для офиса, так как он создает спокойствие, сдержанность, не отвлекает от работы.
Минималистский стиль: Если вы предпочитаете минимализм, то монохромная схема поможет подчеркнуть простоту, чистоту форм.
Помещения, где лучше избегать такой схемы:
Детская комната — лучше использовать яркие цвета, которые способствуют развитию ребенка и создают веселую атмосферу.
Кухня — это место, где можно воплотить различные цветовые идеи, чтобы сделать ее яркой и привлекательной.
Креативное пространство. Если вам нужно вдохновение и креативные идеи, монохром может быть слишком ограничивающим для стимулирования творческих мыслей.
Пространства с низким освещением. В помещениях с недостаточным естественным освещением монохром может сделать зал слишком темным, унылым.
Примеры:
Схема с оттенками серого:
Пол: светло-серый ламинат или ковровое покрытие
Стены: серая краска или обои с текстурой
Как правильно сочетать цвета мебели и интерьера
1. Многоуровневость
Одного потолочного светильника не хватит для качественного освещения комнаты — за исключением разве что крошечной прихожей площадью 1-2 квадрата. Даже в маленькой ванной понадобятся как минимум два источника: верхний и у зеркала. Количество и расположение ламп определяйте, исходя из жизненных сценариев в конкретной комнате. Важно, чтобы источники света располагались на разной высоте, а лампы были разной мощности — так вы сможете регулировать интенсивность подсветки и освещать только ту часть комнаты, которую хотите.
Помните, что чем ниже расположен светильник, тем камернее кажется свет. Соответственно, для создания романтической или расслабленной атмосферы в спальне иодним только плафоном на потолке точно не обойтись.
Дизайн: Ольга Лаврова. Фото: Светлана Окулова. Стиль: Кристина Плеер
Соцсети студии Enjoy Home
Соцсети дизайнера Алексея Волкова
Соцсети дизайнера Алексея Волкова
Дизайн: Ольга Лаврова. Фото: Светлана Окулова. Стиль: Кристина Плеер
2. Сначала — планировка
Планировать светодизайн до того, как продумана расстановка мебели в комнате, — в корне неправильный подход. Сначала нужно составить дизайн-проект и точно понять, где и что будет располагаться. После этого — проанализировать результат: какие зоны хорошо освещаются из окна, а каким, наоборот, нужна дополнительная иллюминация? Где вы будете готовить, есть, читать, работать, заниматься хобби? Есть ли в помещении крупные предметы, которые перекрывают свет (например, шкаф или высокая перегородка)? Исходя из этого, вы поймете, где и какие лампы будут располагаться, и сможете точно спланировать схему электрики.
3. Мощность, оттенок, индекс цветопередачи
Эти характеристики — «три кита», на которых держится качественное и комфортное освещение.
Какие материалы наиболее эффективны для отделки стен
Хороший ремонт сделал ваше жилище чистым и красивым. Правильный выбор и грамотная расстановка мебели сделает его уютным и функциональным.
С чего начать расстановку мебели: измеряем комнату
Прежде чем пойти в магазин за обстановкой, составьте себе четкое представление о том, как будет выглядеть ваша квартира с мебелью. Это необходимо, чтобы не наделать грубых ошибок. Вдумчивый основательный подход к этой проблеме состоит из нескольких этапов и предполагает учет разных нюансов.
Поэтому:
Измеряем помещение. Для большей точности уже на этом этапе лучше пригласить специалиста. Измеряем длину, ширину, высоту стен. Лучше в нескольких местах. Перекосы, увы, не редкость. Далее обязательно учитываем углы и ниши. Высоту подоконника, размеры окна. Проем дверей. Местонахождение выключателей и розеток.
Берем чистый лист бумаги, чертим план помещения в масштабе 1:3 миллиметрам, наносим на него результаты всех своих измерений. Намечаем окна и двери.
Составляем список необходимой мебели. Это зависит от размеров и конфигурации комнаты, от ее функционала.
Мебель выбираете в соответствии со стилем интерьера, планировочными особенностями комнаты и ваших предпочтений, естественно, тоже.
Измеряем и «расставляем» мебель в виртуальной комнате
Второй этап – измеряем параметры мебели. Вырезаем из бумаги макеты и «расставляем» их на нашем плане. Ищем наиболее оптимальный вариант.
Если у вас есть соответствующая компьютерная программа, этих хлопот можно избежать. Важно, чтобы вы увидели свою комнату прежде, чем начнете расставлять в ней мебель. На этом этапе важно понять, как расставить мебель так, чтобы комнаты не выглядела ни пустой, ни загроможденной. Определитесь с функционалом каждой комнаты.
Что такое эргономика комнаты
Третий этап – подключаем науку. Да-да, без нее никуда. Нам поможет эргономика. Это наука о правильной организации пространства при взаимодействии человека с окружающей средой. Другими словами, как приспособить интерьер под себя, чтобы он был физиологически и психологически комфортным?
Так вот, с точки зрения эргономики необходимо учесть следующие параметры:
Габариты и высоту мебели, учитывая на сей раз размеры конкретного человека, то есть ваши.
Расположение дверных ручек, выключателей, розеток, чтобы это было удобно вам.
Размещение источников света в помещении в зависимости от его функционала.
Определить оптимальное расстояние между предметами обстановки.
Обеспечить свободное и беспрепятственное перемещение по комнате.
Эргономика помогает типовое помещение сделать именно вашим с учетом всех антропометрических и физиологических особенностей. Только не забудьте учесть потребности остальных членов семьи, особенно детей. Эргономика советует учитывать даже домашних животных.
Как правильно подобрать освещение для комнаты
Глупо копить деньги на элитную мебель из массива, если вы понимаете, что финансово не потянете оформить весь интерьер под стать роскошному гарнитуру. Еще более глупое решение – выбрасывать старую мебель просто потому, что она смотрится немодно.
Ставка на простой дизайн
Обильный декор в разы увеличивает стоимость мебели. Да и, если честно, не всегда делает предмет красивее. Поэтому выбирайте варианты попроще. Они и стоят дешевле, и являются более универсальными.
Редизайн своими руками
Мебель без декора кажется скучной? Остался гарнитур "из прошлого века"? Просто поработайте над оформлением фасадов. Есть множество вариантов. И если решиться на эксперименты с новыми предметами мебели страшно, то от попытки обновить старый комод или платяной шкаф точно хуже не станет. Вот несколько идей в вашу копилку:
- используйте морилку, чтобы подчеркнуть красоту дерева;
- перекрасьте мебель для создания в интерьере ярких акцентов;
- распылите краску-спрей на поверхность мебели через трафареты (например, кружевную ткань);
- задействуйте технику декупаж;
- приклейте лепнину из пенопласта;
- оклейте мебель пленкой-самоклейкой.
Смена обивки
Купить новый диван, кресло или даже стулья – отнюдь не дешевое удовольствие. Но что если мебель вполне нормально функционирует и просто имеет несколько потрепанный вид? Ответ очевиден – она требует перетяжки. Это можно сделать даже самостоятельно: вам понадобятся новая обивочная ткань, хлопковая лента, скобы, степлер для мебели, отвертка, нож и ножницы. Просто вырезайте нужный по размеру кусок ткани (чуть больше, чем спинка или сиденье, которое вы планируете обновить) и закрепляйте его снизу степлером. Но если вы не уверены в своих силах, эту работу можно заказать у специалистов.
"Напыление" для стекла
От старости стекла становятся тусклыми и невзрачными. Но их можно реставрировать с помощью краски с эффектом замерзшего стекла. Используйте для нанесения мелкопористую губку. Также можете наклеить полоски малярного скотча на поверхность стеклянных фасадов и окрасить только промежутки. Полосатое стекло смотрится необычно. При этом прозрачные части на фоне окрашенных уже не будут казаться тусклыми.
Свободное пространство
Прежде чем покупать какую-то обновку из мебели, задумайтесь: может вам стоит, наоборот, избавиться от ненужных предметов, а не захламлять пространство еще больше? Загроможденная комната никогда не будет уютной. Поэтому если в дополнительном столе нет особой необходимости, а кресло-кровать вы хотите купить лишь на случай, если у вас останутся ночевать друзья, откажитесь от этой затеи. Друзей можно разместить и на надувном матрасе, а стол при необходимости всегда можно принести из кухни.
Мебель 2 в 1
Большое количество мебели и пространство загромождает, и заставляет расстаться с приличной суммой денег. Но почему бы не выбрать многофункциональные модели? Например, кровать с системой хранения либо зеркало, которое трансформируется в гладильную доску?
Меняем фурнитуру
Еще один вариант, как можно преобразить старую мебель, – это замена фурнитуры. Новые ручки могут спасти даже безнадежный, на первый взгляд, комод или кухонный гарнитур.
Какие элементы декора наиболее эффективны для создания красивой комнаты
Живые растения любят свет, поэтому и место для них надо выбирать с хорошим освещением. Особенно это касается высокорослых растений, стоящих в кадках на полу. Но решившись на габаритный цветок, необходимо убедиться, что в вашей квартире ему найдется свободное от мебели место.
К примеру, пальмам и другим высоким растениям больше подойдут комнаты с высоким потолком, мансарды. Растения средней высоты можно разместить в малогабаритных квартирах. Своим присутствием они зрительно создадут эффект большего пространства.
Решившись на декорацию квартир живыми растениями, стоит помнить, что кроме зеленого, они обладают различными яркими цветами. Вид цветущих растений не только акцентирует на себя внимание, но и оживит весь дизайн комнаты вокруг себя. Яркие акценты цветущих растений применяют в составлении своих проектов многие дизайнеры.
Каждый цветок нуждается в своем горшке, подходящим ему по размеру и вписывающимся в общий интерьер квартиры. В современных магазинах такой широкий выбор вазонов, что подобрать под свой вкус не составит труда.
В небольших по размерам горшках можно выращивать свежие пряные травки, которые будут служить не только украшением комнаты, но станут и хорошей приправой в приготовлении блюд. Композицией из миниатюрного огорода можно полностью заставить подоконник или расположить их на стене кухни над обеденным столом или другой кухонной мебелью.
Важно, чтобы вазоны сочетались по цвету между собой и интерьером, создавая общую гармонию пространства. Если сомневаетесь в выборе тона, остановитесь на пастельном. Он станет прекрасным дополнением любого интерьера.
Тем, кто не знает, как правильно ухаживать за живыми растениями, советуем обратить внимание на кактусы, толстянку, агаву, каланхоэ, алоэ. Эти жители пустынь с тканями для запаса воды обладают своеобразной красотой и неприхотливы в уходе.
Благодаря строению своих стеблей и листьев суккуленты долгое время могут обходиться без полива и солнечных лучей, сохраняя привлекательность. Композицией эффектных, неприхотливых растений, не требующих особого внимания, часто пользуются стилисты для оформления интерьера квартир.
Тем, кто совсем не располагает свободным временем для ухода за живыми растениями, можно украшать комнату срезанными цветами. Главное их вовремя менять. Согласитесь, завядшие цветы в вазе, не самое красивое дополнение к интерьеру вашей квартиры.
Воспользоваться для создания интерьера можно не только живыми растениями, но и аксессуарами, собранным гербарием. С любовью оформленные в рамку засушенные цветы станут прекрасным украшением любого помещения.
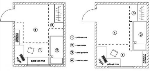
Как правильно расставить мебель в комнате

Обустройство детской зависит от площади комнаты, геометрических размеров, освещенности в течение дня, количества и возраста детей. Кроме этого необходимо продумывать меблировку на перспективу, ведь малыши быстро растут, а приобретать новые гарнитуры через пару лет будет накладно. Дизайнеры редакции Homius выделили 10 правил расстановки мебели в детской, которые помогут сделать комнату более комфортной и функциональной.

Расстановка мебели для двух деток в прямоугольной комнате
Планируем расстановку на бумаге
Предварительно необходимо всё спланировать на бумаге: начертить план помещения в масштабе с обозначением окон и дверей , а также радиаторов отопления . Затем нужно определить месторасположение основных секторов:
- письменного стола ;
- зоны отдыха;
- сектора хранения предметов гардероба;
- игровой и спортивной зоны .
В зависимости от возраста ребёнка определяют оптимальную площадь для каждого сектора. Например, дошкольникам основное пространство отводят под игровую зону, для письменного стола и шкафа нужно совсем мало места. Со временем понадобится полноценный рабочий стол с оргтехникой и вместительный шкаф для хранения одежды, игровая зона заменяется спортивным уголком .
Совет! Можно использовать специальные онлайн-программы для планирования размещения модульных групп. Второй вариант: нарисовать все предметы мебели в масштабе на бумаге, вырезать их и моделировать разные сценарии расстановки вручную.


