Хрущевка 2 комнатная перепланировка. Перепланировка 2-комнатной квартиры в хрущевке
- Хрущевка 2 комнатная перепланировка. Перепланировка 2-комнатной квартиры в хрущевке
- Хрущёвка 2 комнатная перепланировка. Реальные примеры перепланировки "хрущевки"
- Хрущевка перепланировка 2 комнатная. Планировка 2х комнатной хрущевки
- Хрущевка 2 комнатная перепланировка схемы. Варианты планировки
- Видео перепланировка хрущевки в 2019 г. Все особенности.
Хрущевка 2 комнатная перепланировка. Перепланировка 2-комнатной квартиры в хрущевке
Двухкомнатные хрущевки, в большинстве своем, имеют множество перегородок, ниш, кладовых, которые «крадут» квадратные метры полезной площади. При этом комнаты не могут похвастаться удобной планировкой и выгодным метражом. Зачастую перепланировать и расширить пространство не так уж просто. Одним из выгодных вариантов изначальной планировки квартиры остается так называемая «распашонка», где комнаты расположены по обе стороны от кухни и не являются проходными. Но и перестроить площадь таким образом, чтобы получить третью комнату, не удастся. Даже разделив одну из комнат перегородкой, мы получим два помещения, одно из которых будет без окон, а во второе нужно будет организовать вход с территории и без того маленькой кухни. Поэтому такие квартиры, чаще всего, оставляют в первозданном виде.
Проект 1
Как мы уже говорили, наличие ниш и кладовых вполне можно использовать для увеличения площади. Например, как показано на фото, владельцы одной из квартир решили вопрос расширения кухни за счет смещения санузла в сторону кладовой. При данной планировке можно запросто объединить кухню с прилежащей комнатой и даже прихожей, в результате чего получится просторный зал. Однако нужно учитывать, что, если в квартире проживает полноценная семья с детьми, такая перепланировка окажется не целесообразной, лишая кого-либо из домочадцев личного пространства.


Проект 2
Один из самых неудобных проектов двухкомнатных квартир, именуемый «книжкой», предполагает наличие двух небольших смежных комнат, одна из которых проходная. В данном случае перепланировать обстановку таким образом, чтобы получить две отдельные комнаты, не получится без потери полезной площади одной из них. Здесь оптимальным вариантом выступает продление коридора за счет уменьшения площади проходной комнаты. В то же время, в комнате остается балкон, который можно утеплить и присоединить к полезной площади.


Проект 3
Квартиры типа «трамвай» также подразумевают наличие смежных комнат, но здесь можно разделить их, сохранив большее количество жилой площади. Один из вариантов предлагает попросту продлить коридор, обустроив в тупике гардеробную или кладовую. В таком случае сооружается дополнительная перегородка с дверью, которая отделит комнату. Второй вариант – продлить коридор только до конца дверного проема, ведущего в правую комнату. В данном случае необходимо будет соорудить две небольшие перегородки – одна будет тупиком коридора, а вторая – отделять комнату справа.


Хрущёвка 2 комнатная перепланировка. Реальные примеры перепланировки "хрущевки"
Если вы владелец двухкомнатной хрущевки и решили обновить и преобразовать свою квартиру в комфортное и стильное жилище, то обязательно встанет вопрос о создании дизайн-проекта. Перепланировка предполагает, что некоторые участки стен, возможно, будут убраны или наоборот поставлены новые перегородки там, где их не было. Поэтому сразу обращаем внимание на то, что демонтаж возможен только относительно не несущих перегородок. Перекрытия также рассчитаны на определенную нагрузку, иначе дом может просто рухнуть в один прекрасный момент.
Проект перепланировки квартиры должен быть абсолютно безопасным в этом отношении и обязательно согласован и утвержден соответствующими органами контроля. В связи с этим отметим, что значительная часть внутренних стен в хрущевках – это ненесущие конструкции, поэтому чаще всего их снос возможен без разрушительных последствий для дома.

Планировка 2-ух комнатной квартиры без планировки и с перепланировкой
Что представляет собой двухкомнатная хрущевка?
Это малогабаритная квартира площадью около 43 м2, имеющая:
- одну большую комнату-зал, как правило, проходную.
- комнату поменьше – спальню.
- очень тесные кухню – 6-5 м2 и
- коридор – 2-3 м2
- небольшой совмещеный санузел.
Итак, изначальный вариант планировки двухкомнатной хрущевки нас неустраивает и мы решительно хотим кардинального изменения жилого пространства. Однако эти изменения должны отвечать нашим потребностям (у всех они свои), образу жизни, составу семьи, увлечениям и т.д. Поэтому вы должны четко определиться, что должно получиться в результате перепланировки, какие зоны необходимы, или они уже есть, но очень малы и их нужно расширить, а от каких нужно совсем избавиться или уменьшить в размерах. Как правило, это стандартный набор зон: кухня, гостиная, рабочая зона или кабинет, спальная, детская, гардеробная.
Деление жилого пространства на функциональные зоны, соразмерные своим ролям добавляет существенные удобства для проживания. Например, кухня имеет рабочую зону для приготовления пищи и зону для ее принятия. Кроме того, именно на кухне проводится масса времени, там же принимают гостей, поэтому она еще выполняет функцию гостиной. Соответственно, проект зонирования должен предусматривать и грамотно совмещать эти зоны. Интересным решением этой задачи может стать объединение кухни и зала. Если вышеописанная роль зала действительно важна и необходима, то часть смежной стены между кухней и комнатой убирается, превращая полученную площадь в единое пространство, либо небольшое разделение остается в виде тонких декоративных перегородок, стеллажей, ширм или арок. Такое оформление представляет собой квартиру-студию . В результате образовалась многофункциональная просторная зона в квартире, существенно увеличивающая удобство и комфорт этой части хозяйской жизни.
Далее продумываются остальные зоны – зона отдыха, кабинет, спальная комната. Необходимо произвести анализ: должны ли они полностью быть изолированы от гостинной зоны или быть встроены в нее и потребует ли это дополнительной капитальной перепланировки. Отметим, что дальнейшее зонирование можно произвести и исключительно дизайнерскими методами. Например, можно использовать разную напольную и стеновую отделку для зоны кабинета и зоны отдыха.
Добившись увеличения пространства с помощью перепланировки , ни в коем случае не стоит снова сокращать его громоздкой и массивной мебелью. Пусть это будут почти воздушные вещи и предметы, которые должны быть многофункциональными и удобными.

Хрущевка перепланировка 2 комнатная. Планировка 2х комнатной хрущевки
Типовая хрущевка имеет очень маленькую кухню – 5-6 квадратов. Ещё одна особенность – невысокие потолки до 2,7 метров. Двушки без перепланировки зачастую бывают неудобны, особенно, если вторая комната проходная.
Стандартная площадь двухкомнатной хрущевки – около 43-44 кв метров. Дома пятиэтажные. В большинстве своем комнаты смежные, окна выходят на одну сторону (за исключением угловой квартиры с двумя окнами). В качестве достоинств хрущевки можно выделить наличие кладовки и балкона.
Рассмотрим самые распространенные типы планировок подробней.
Книжка
Такая планировка считается самой неудачной: проходная комната с широким дверным проемом играет роль столовой, а в семье с детьми – ещё и спальни. Уединенности в таком пространстве добиться трудно. Чтобы разделить помещения, придется пожертвовать частью комнаты. Без перегородок, на снос которых необходимо получить разрешение, хрущевку можно превратить в просторную студию.



На фото маленькая угловая кухня со встроенным холодильником и столом, вписанным в подоконник.
Трамвайчик
Такое народное название (также употребляется слово "паровозик") планировка получила за расположенные друг за другом комнаты, напоминающие вагоны. Гостиная с балконом является проходной, но переделка решает эту проблему: если отсечь часть комнаты и превратить ее в коридор с двумя входами, в получившейся нише можно организовать систему хранения.



На фото комната в кремовых тонах с акцентной стеной в телевизионной зоне.
На фото проект двухкомнатной хрущевки 44 кв. м.
Распашонка
Вполне удобная планировка, при которой комнаты разделены кухней и прихожей, но такой тип хрущевки встречается нечасто. Также ее называют "бабочкой" благодаря схожести комнат с симметричными крыльями.



На фото крошечная кухня, где глянцевые белые шкафчики-нивидимки занимают всё межпотолочное пространство.
Хрущевка 2 комнатная перепланировка схемы. Варианты планировки
Существуют варианты планировка хрущевки с размерами 2 комнат . Разновидности плана типовой хрущевки можно расположить следующим образом в порядке убывания удобства.
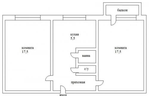
Для распашонки
Две изолированные комнаты приличной площади (чаще всего — одинаковой). Они расположены по разные стороны квартиры, между ними — прихожая, санузел, ванная и кухня. Этот проект во многом предпочтительнее и удобнее, чем распространенный трехкомнатный вариант с проходной комнатой.
Несмотря на преимущество планировки и выигрышную жилую площадь, площадь кухни типична для домов рассматриваемого типа и составляет 5,5 квадратных метров. При этом планировка практически не оставляет возможностей для ее увеличения. Чаще рассматривается вариант увеличения площади кухни за счет одной из комнат, но в этом случае уменьшаемая комната примет неправильную форму.

Комнаты в мини-улучшенке
Комнаты изолированные, одна — весьма неплохой площади, другая — довольно маленькая, расположены рядом, за маленькой комнатой расположена кухня. Общая площадь квартиры 44,6 квадратных метров. Главный недостаток — небольшая площадь кухни: 5,2 м2. В основном работы по перепланировке касаются увеличения площади кухни (есть возможность увеличить до 8 метров за счет прихожей и кладовки).

Трамвай
Комнаты в квартире такого типа смежные, стыкуются между собой узкими стенами. Общая площадь квартиры — 48 квадратных метров. Разделение комнат весьма удачно. В этом случае прихожая продлевается в глубину прилегающей к ней комнаты настолько, насколько это продиктовано интересами хозяина.

Книжка
Комнаты в таких квартирах также смежные, стыкуются между собой длинными стенами. Чтобы попасть в дальнюю, приходится пересекать проходную по диагонали. Общая площадь квартиры — 41 квадратный метр. Крайне неудачна для перепланировки, поскольку то, что останется от проходной комнаты после продления коридора, будет иметь совсем небольшую площадь.
