Идеи дизайна интерьера
+1000 идей для Вашего интерьера!
Main menu
Главная
Новости
Статьи
Главная
»
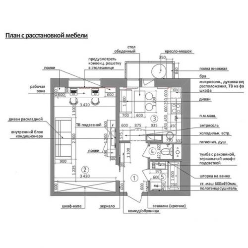
Посмотрите, какой замечательный проект однокомнатной квартиры площадью 38 кв.
Посмотрите, какой замечательный проект однокомнатной квартиры площадью 38 кв.
04.12.2020 в 09:43
м
.
Понравилось? Поделитесь с друзьями!
⇦
Какая маленькая площадь, но как удачно всё продумано!
⇨
Оазис в большом городе: современный частный дом с видом на залив в Стокгольме