Идеи дизайна интерьера

+1000 идей для Вашего интерьера!

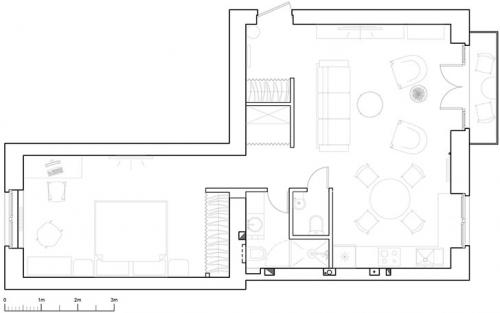
Квартира в Москве (56 кв. м)

01.03.2020 в 21:40

Когда мы впервые увидели фотографии этой квартиры, мы были уверены, что это еще один качественный интерьер из Швеции. Но нет же, оказалось что квартира находится в сталинском доме в Москве и спроектирована российскими дизайнерами. Кирпичная стена, «икеевская» кухня и белый цвет — здесь действительно много общего со скандинавскими интерьерами. Квартира делалась для музыканта, о чем свидетельствует гитара и разнообразные музыкальные предметы в качестве декора. Интересное жилье!

Квартира в Москве (56 кв. м)Квартира в Москве (56 кв. м) 01Квартира в Москве (56 кв. м) 02Квартира в Москве (56 кв. м) 03Квартира в Москве (56 кв. м) 04Квартира в Москве (56 кв. м) 05Квартира в Москве (56 кв. м) 06Квартира в Москве (56 кв. м) 07Квартира в Москве (56 кв. м) 08Квартира в Москве (56 кв. м) 09Квартира в Москве (56 кв. м) 10Квартира в Москве (56 кв. м) 11Квартира в Москве (56 кв. м) 12Квартира в Москве (56 кв. м) 13Квартира в Москве (56 кв. м) 14Квартира в Москве (56 кв. м) 15Квартира в Москве (56 кв. м) 16Квартира в Москве (56 кв. м) 17Квартира в Москве (56 кв. м) 18Квартира в Москве (56 кв. м) 19Квартира в Москве (56 кв. м) 20Квартира в Москве (56 кв. м) 21Квартира в Москве (56 кв. м) 22Квартира в Москве (56 кв. м) 23Квартира в Москве (56 кв. м) 24Квартира в Москве (56 кв. м) 25Квартира в Москве (56 кв. м) 26Квартира в Москве (56 кв. м) 27Квартира в Москве (56 кв. м) 28