Идеи дизайна интерьера

+1000 идей для Вашего интерьера!

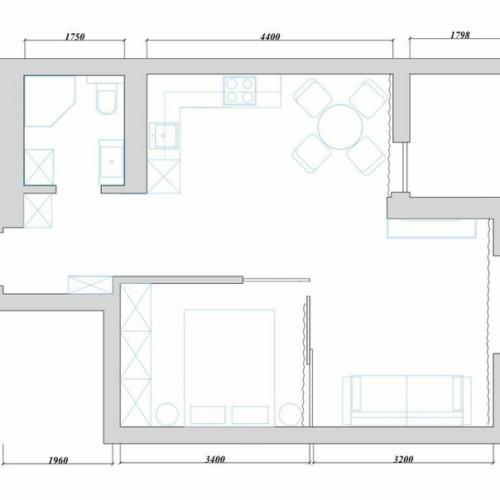
Однокомнатная квартира с выделенной спальной зоной.

25.01.2021 в 09:43

Отличная планировка квартиры, удачное зонирование. И для сна есть полноценная кровать, которую можно скрыть днем при помощи стеклянной перегородки и штор
Однокомнатная квартира с выделенной спальной зоной..

Однокомнатная квартира с выделенной спальной зоной. 01
Однокомнатная квартира с выделенной спальной зоной. 02
Однокомнатная квартира с выделенной спальной зоной. 03
Однокомнатная квартира с выделенной спальной зоной. 04
Однокомнатная квартира с выделенной спальной зоной. 05
Однокомнатная квартира с выделенной спальной зоной. 06
Однокомнатная квартира с выделенной спальной зоной. 07