Идеи дизайна интерьера

+1000 идей для Вашего интерьера!

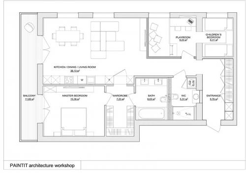
Стильная мансардная квартира в Киеве (100 кв. м)

23.12.2019 в 21:40

Эта светлая мансардная квартира была спроектирована студией Paint It для молодой семьи с ребенком, которая любит современный дизайн и была готова к экспериментам. Скошенные потолки, а также обилие дерева в оформлении интерьеров навивают мысли о горном шале и отдыхе в горах, хотя это жилье в самом центре большого города. В целом, пространства выполнены в минималистичном стиле с упором на прямые линии и натуральные материалы. Отличная работа!

Стильная мансардная квартира в Киеве (100 кв. м)Стильная мансардная квартира в Киеве (100 кв. м) 01Стильная мансардная квартира в Киеве (100 кв. м) 02Стильная мансардная квартира в Киеве (100 кв. м) 03Стильная мансардная квартира в Киеве (100 кв. м) 04Стильная мансардная квартира в Киеве (100 кв. м) 05Стильная мансардная квартира в Киеве (100 кв. м) 06Стильная мансардная квартира в Киеве (100 кв. м) 07Стильная мансардная квартира в Киеве (100 кв. м) 08Стильная мансардная квартира в Киеве (100 кв. м) 09Стильная мансардная квартира в Киеве (100 кв. м) 10Стильная мансардная квартира в Киеве (100 кв. м) 11Стильная мансардная квартира в Киеве (100 кв. м) 12