Сделать монтаж пластикового окна самостоятельно: подход для начинающих
- Сделать монтаж пластикового окна самостоятельно: подход для начинающих
- Связанные вопросы и ответы
- Какие инструменты необходимы для монтажа пластикового окна
- Как правильно выбрать пластиковое окно для своего дома
- Какие материалы необходимы для монтажа пластикового окна
- Как правильно измерять окно для монтажа пластикового окна
- Как правильно готовить окно к монтажу пластикового окна
- Как правильно монтировать пластиковое окно на окно
- Как правильно монтировать пластиковое окно на стену
- Как правильно монтировать пластиковое окно на балкон
Сделать монтаж пластикового окна самостоятельно: подход для начинающих
Установку пластиковых окон в квартире или частном доме выполняют по определенной технологии в соответствии с ГОСТ 30971, требованиями СНиП, инструкцией производителя. Обычно монтаж выполняют мастера той же компании, в которой заказывают ПВХ окна. Установить оконные конструкции можно и самостоятельно, хотя в процессе могут возникнуть сложности и проблемы. Рассмотрим подробнее конструкцию пластиковых окон, последовательность действий при установке, возможные ошибки монтажа.
Конструкция пластиковых окон
Конструктивно ПВХ окна состоят из следующих элементов:
- Рама. Короб, устанавливаемый в оконном проеме. Если посмотреть на раму в поперечном разрезе, то видно разделение на ячейки – камеры, каждая из которых решает конкретные задачи (повышение жесткости, теплоизоляция и пр.). Конструктивные особенности (форма, размеры, компоновка, толщина стенок и перегородок) камер определяют профиль. Когда говорят, что устанавливают «окна VEKA (REHAU, KBE)», то подразумевают оконные системы с профилем соответствующего производителя.
- Створки. «Глухие» или подвижные элементы оконной системы, состоящие из пластиковой рамы и стеклопакетов. В конструкциях из нескольких створок предусматриваются импосты (вертикальный разделительный элемент на раме). Стеклопакеты различаются по количеству камер, типу стекол, их толщине и расстояниями между ними, заполнению (инертные газы, воздух).
- Фурнитура. Это запорный механизм, определяющий способность оконной створки открываться в определенных плоскостях и фиксироваться в заданных положениях. Стандартные способы открывания пластикового окна – поворотный, поворотно-откидной, но возможны и другие варианты (откидной, раздвижной, складной, подвесной). К фурнитуре также относятся ручки, противовзломные механизмы, ответные планки, цапфы и др.
Связанные вопросы и ответы:
Вопрос 1: Какие инструменты и материалы необходимы для монтажа пластикового окна своими руками
Ответ: Для монтажа пластикового окна своими руками необходимы следующие инструменты и материалы:
1. Паяльник с пластиковым наконечником и паяльной плёнкой.
2. Дротик для прокола отверстий в стекле.
3. Скобы для крепления окна к стене.
4. Уплотнительная лента для герметизации окна.
5. Плиты для поддержки окна во время монтажа.
6. Маска для защиты от пыли и паров.
7. Рукавицы для защиты от травм.
Вопрос 2: Как правильно подготовить окно к монтажу
Ответ: Для правильной подготовки окна к монтажу необходимо выполнить следующие шаги:
1. Очистить окно от пыли и грязи.
2. Проверить, чтобы окно не было повреждено и не имело дефектов.
3. Проверить, чтобы окно соответствовало размерам отверстия в стене.
4. Определить, какие скобы и уплотнительная лента необходимы для монтажа.
5. Подготовить инструменты и материалы для монтажа.
Вопрос 3: Как правильно монтировать пластиковое окно
Ответ: Для правильного монтажа пластикового окна необходимо выполнить следующие шаги:
1. Вставить окно в отверстие в стене.
2. Закрепить окно скобами к стене.
3. Прикрыть окно уплотнительной лентой.
4. Приклеить уплотнительную ленту к окну и стене.
5. Проверить, чтобы окно было плотно приклеено к стене.
Вопрос 4: Как правильно проделать отверстие в стене для монтажа пластикового окна
Ответ: Для правильного проделывания отверстия в стене для монтажа пластикового окна необходимо выполнить следующие шаги:
1. Определить размеры отверстия, которые соответствуют размерам окна.
2. Определить место для отверстия.
3. Проделать отверстие в стене с помощью пилы или другого инструмента.
4. Очистить отверстие от пыли и грязи.
5. Проверить, чтобы отверстие соответствовало размерам окна.
Вопрос 5: Как правильно проделать отверстие в стене для монтажа пластикового окна
Ответ: Для правильного проделывания отверстия в стене для монтажа пластикового окна необходимо выполнить следующие шаги:
1. Определить размеры отверстия, которые соответствуют размерам окна.
2. Определить место для отверстия.
3. Проделать отверстие в стене с помощью пилы или другого инструмента.
4. Очистить отверстие от пыли и грязи.
5. Проверить, чтобы отверстие соответствовало размерам окна.
Вопрос 6: Как правильно проделать отверстие в стене для монтажа пластикового окна
Ответ: Для правильного проделывания отверстия в стене для монтажа пластикового окна необходимо выполнить следующие шаги:
1. Определить размеры отверстия, которые соответствуют размерам окна.
2. Определить место для отверстия.
3. Проделать отверстие в стене с помощью пилы или другого инструмента.
4. Очистить отверстие от пыли и грязи.
5. Проверить, чтобы отверстие соответствовало размерам окна.
Какие инструменты необходимы для монтажа пластикового окна

Для того чтобы правильно установить пластиковое окно, понадобятся не только знания и опыт, но и хорошие инструменты. Рассмотрим, какое оборудование нужно купить в первую очередь, чтобы получить ожидаемый результат. Эта информация будет полезна как начинающим монтажникам, так и владельцам квартир и домов, которые хотят получить навыки установки окон.
Все инструменты можно разделить на два типа: электрические и ручные.
Электроинструменты:
Электродрель (мощностью от 1000 Вт).
Углошлифовальная машина (с дисками 115 и 230 мм).
Пневматический отбойный молоток (на крайний случай дрель).
Шуруповерт (лучше аккумуляторный).
Электропила.
Ручной инструмент
Для безопасной и эффективной работы вам понадобится следующее:
Пистолет для монтажной пены
На рынке представлено множество моделей в широком ценовом диапазоне. Экономить на этих изделиях не стоит, тем более стоят они не так и дорого. К качественному пистолету не прилипает пена, он оснащен надежным редуктором, который не выйдет из строя в самый неподходящий момент.
Качественный инструмент должен иметь явно выраженную резьбу на насадке к баллону. Ее наличие предотвратит возможные трудности с нагнетанием пены.
Нож
После того как полиуретановая пена высохнет, ее остатки нужно удалить. Для этого как нельзя лучше подойдет острый выдвижной нож со скошенным лезвием.
Струбцины
Лучше иметь два таких приспособления для правки рам. Они особенно востребованы при объединении окна с балконными дверями. С помощью струбцин можно надежно зафиксировать рамы, тем самым упростив себе задачу по вкручиванию шурупов.
Лопатка для остекления
Специальный инструмент в виде ложки или весла, выполненный из высококачественного пластика. Незаменим при снятии и замене стекол и размещении подкладок под стеклопакет.
Лом
Пригодится для демонтажа старых окон и их регулировки по высоте. Выбирая лом, лучше остановиться на изделии не менее метра длиной, изготовленном из стали диаметром от 20 мм.
Молоток
Традиционный инструмент, который можно найти в арсенале почти любого мужчины. В продаже есть специальные резиновые молотки для укладки штапиков, которые не повредят стекло, если вы вдруг не рассчитаете силы.
Инструменты для измерений
Для правильного монтажа окна потребуются уровень, рулетка и угломер. Они также понадобятся для определения размещения крепежа на раме. Лучше всего использовать стальную рулетку длиной не менее пяти метров и лазерный уровень.
Как правильно выбрать пластиковое окно для своего дома
Фото: пластиковые окна стали основой комфорта в современном доме. © Фотобанк Лори Зная, что я давно работаю в оконной отрасли, ко мне часто обращаются друзья и знакомые за советом: как выбрать пластиковые окна? Те, кто просит рекомендации, пластиковые окна какие лучше выбрать, условно делятся на 2 группы:
- Обладатели старых деревянных окон – они хотят выбрать красивое окно, которое не нужно красить и легко мыть. Такие люди часто думают, что все новые пластиковые окна качественные, не то, что старые деревянные. Но это, увы, неправда.
- Счастливые обладатели новостроек, которые въехали и поняли, что окна от застройщиков – это совсем не то, чего они ожидали. Это окна ПВХ низкого качества: серенькие или желтоватые, без глянца и белоснежности, трудно открываются и закрываются, а самое печальное, продуваются и «плачут». 20-летний опыт показал, что окна от застройщика далеко не лучшие представители современных пластиковых оконных конструкций.
Чтобы долго не объяснять моим знакомым, какие пластиковые окна выбрать, я решила честно и откровенно описать мой профессиональный опыт, рассказать, на что обратить внимание при выборе пластиковых окон и подкрепить информацию примерами наблюдения за окнами в моей квартире. Мне довелось оказаться в роли покупателей из этих двух групп.
Фото: первые пластиковые окна казались настоящим чудом после деревянных. © Depositphotos.com В 2001 году я заменила старые деревянные окна на пластиковые. Такие окна сейчас я не взяла бы и даром, но тогда, по сравнению с деревянными, мне они казались верхом совершенства.
Комплектация следующая: ПВХ-профиль 58 мм /3 камеры, стеклопакет 2-камерный 24 мм с простым стеклом, фурнитура Roto Centro + пластиковые гребенки, подоконник российский 200 мм, москитная сетка на пластиковых уголках. В окнах по одной поворотно/откидной створке, остальные проемы глухие.
В 2015 году застеклила балкон и заменила одно старое пластиковое окно на новое в процессе ремонта комнаты. Для балкона выбрала простые окна: ПВХ-профиль 60 мм / 3 камеры, однокамерный стеклопакет с i-стеклом, все створки открываются. Балкон предназначен для использования в теплое время года без отопления. В комнате хотела поставить качественное теплое пластиковое окно на 30 лет, учитывая недостатки старых. Получилось вот что: ПВХ-профиль 80 мм / 6камер, 2-камерный стеклопакет с мультифункциональным и i-стеклом. Все створки открываются, петли скрытые, микропроветривание встроенное. Дорогой подоконник с глянцевой поверхностью. Монтаж с 3-слойным швом.
Какие материалы необходимы для монтажа пластикового окна
Установку пластиковых окон в квартире или частном доме выполняют по определенной технологии в соответствии с ГОСТ 30971, требованиями СНиП, инструкцией производителя. Обычно монтаж выполняют мастера той же компании, в которой заказывают ПВХ окна. Установить оконные конструкции можно и самостоятельно, хотя в процессе могут возникнуть сложности и проблемы. Рассмотрим подробнее конструкцию пластиковых окон, последовательность действий при установке, возможные ошибки монтажа.
Конструкция пластиковых окон
Конструктивно ПВХ окна состоят из следующих элементов:
- Рама. Короб, устанавливаемый в оконном проеме. Если посмотреть на раму в поперечном разрезе, то видно разделение на ячейки – камеры, каждая из которых решает конкретные задачи (повышение жесткости, теплоизоляция и пр.). Конструктивные особенности (форма, размеры, компоновка, толщина стенок и перегородок) камер определяют профиль. Когда говорят, что устанавливают «окна VEKA (REHAU, KBE)», то подразумевают оконные системы с профилем соответствующего производителя.
- Створки. «Глухие» или подвижные элементы оконной системы, состоящие из пластиковой рамы и стеклопакетов. В конструкциях из нескольких створок предусматриваются импосты (вертикальный разделительный элемент на раме). Стеклопакеты различаются по количеству камер, типу стекол, их толщине и расстояниями между ними, заполнению (инертные газы, воздух).
- Фурнитура. Это запорный механизм, определяющий способность оконной створки открываться в определенных плоскостях и фиксироваться в заданных положениях. Стандартные способы открывания пластикового окна – поворотный, поворотно-откидной, но возможны и другие варианты (откидной, раздвижной, складной, подвесной). К фурнитуре также относятся ручки, противовзломные механизмы, ответные планки, цапфы и др.
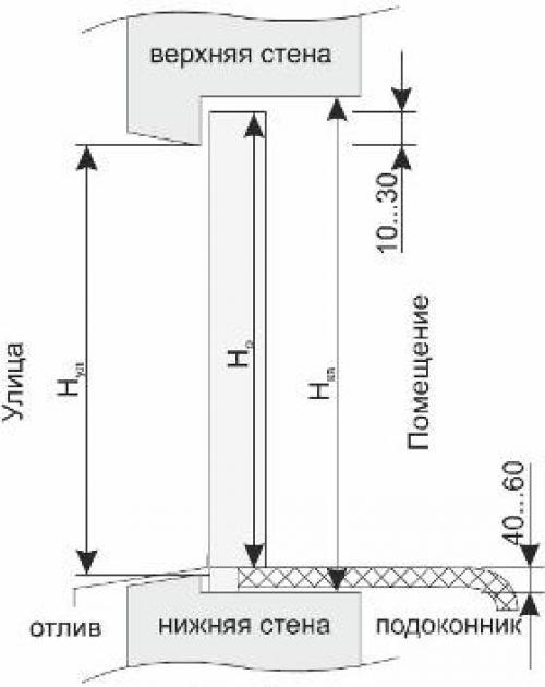
Как правильно измерять окно для монтажа пластикового окна
Замер проема без четверти.
Сначала измеряем ширину проема (Wпр), т.е. расстояние между боковыми стенами. Для вычисления размера окна (Wо) необходимо из полученного значения Wпр вычесть зазоры под монтажный шов (Wм). Как правило, под монтажную пену оставляют 20-30 мм с каждой стороны.
Wо = Wпр – 2*Wм
Рис. 3: Расчет ширины окна для бесчетвертного проема.
![]() | Замер ширины оконного проема без четвертиЗатем приступаем к измерению высоты проема (Нпр), т.е. расстояния между нижней и верхней стеной. Из полученной высоты вычитаем зазоры 20-30 мм сверху под монтажный шов (Нмв) и 40 мм снизу для установки подоконника (Нмн). В результате получаем высоту окна (Но): Но = Нпр – Нмв – Нмн |
| Рис. 4: Расчет высоты окна для бесчетвертного проема. |
Замер проема с четвертью.
В отличие от безчетвертного варианта, в данном случае измерения производятся и со стороны улицы, и в помещении.
Измеряем проем со стороны улицы (Wул) и проемную ширину в квартире (Wкв). Ширина пластикового окна (Wо) должна быть на 20-50 мм больше Wул и на 40-60 мм меньше Wкв.
Рис. 5: Расчет ширины окна для четвертного проема.
Высоту проема также измеряем со стороны улицы (Нул) и в помещении (Нкв).
![]() | ![]() |
Как правильно готовить окно к монтажу пластикового окна
Правила безопасности должны соответствовать требованиям.
Установка пластиковых окон должна выполняться профессионалами! Мы настоятельно не рекомендуем выполнять этот процесс лицам, не имеющим достаточного опыта и соответствующих навыков. Помните, что конструкции и их элементы имеют большой вес, а также острые углы и кромки, что может быть причиной серьезных травм и повреждений!
При производстве работ по устройству монтажных швов, а также при хранении изоляционных и других материалов должны соблюдаться требования строительных норм и правил по технике безопасности в строительстве, правил пожарной безопасности при производстве строительно-монтажных работ и стандартов ССБТ (система стандартов безопасности труда). На все технологические операции и производственные процессы должны быть разработаны инструкции по технике безопасности (включая операции, связанные с эксплуатацией электрооборудования и работами на высоте).
3. Применение набора и общие положения
Оконный монтажный шов должен быть выполнен по трехслойной схеме, по принципу «изнутри плотнее, чем снаружи». Такая схема обеспечивает надежную и эффективную работу монтажного шва, в течение всего расчетного срока эксплуатации. Для того чтобы монтажный шов соответствовал указной схеме (см. Рис.№5 и Рис.№6), с внешней стороны шва (со стороны улицы) должны применяютсяи «РОБИБАНД НЛ 120», поскольку оба этих продукта являются паропроницаемыми, а с внутренней стороны монтажного шва (со стороны помещения) устанавливается пароизоляционная лента «РОБИБАНД ВМ 120» и «РОБИБАНД ВМ 100». Пластмассовые клинья применяются в качестве средства временной фиксации, а также в качестве опорных и дистанционных колодок.применяются для фиксации оконного блока в оконном проеме. Ленты должны приклеиваться к поверхностям монтажного зазора плотно, без отслоений и без пропусков. От тщательности приклейки лент во многом будет зависеть качество конечного результата.
4. Состав и описание составных частей набора
Изображение элемента | Наименование, кол-во и краткое описание |
Робибанд "ПСУЛ" 50+ 15/8*5- 5 пог.м., Паропроницаемая саморасширяющаяся уплотнительная лента, применяется для герметизации наружного слоя монтажного шва оконной конструкции (см. рис№5) | |
Робибанд ВМ В 120 – 5,5 пог.м Робибанд ВМ В 100 – 2 пог.м Пароизоляционная лента из металлизированной пленки, дублированной нетканым материалом. Лента предназначена для внутренней пароизоляции монтажных швов, с последующим оштукатуриванием откосов или отделкой сухими способами (сендвич-панели, пластиковые откосы и др.). (см. рис №5 и Рис. №6) | |
![]() | Робибанд НЛ В 120 – 2 пог.м., Гидроизоляционная паропроницаемая лента из синтетического нетканого материала мембранного типа. Лента предназначена для гидроизоляции монтажного шва светопрозрачной конструкции под отливом, а также любых других строительных швов и стыков.(см. Рис. №6) |
Клин монтажный 20х170х40 – 10 шт., применяется при монтаже оконного блока в качестве опорной и монтажной колодки | |
![]() | Анкерная пластина 150 мм – 12 шт . |
![]() |
Как правильно монтировать пластиковое окно на окно
Вам, конечно, известно, что любое пластиковое окно, в том числе и оконный блок необходимо выставлять по уровню :
горизонтально
вертикально
Также должны быть выравнены диагонали: 
- диагонали двери

- диагонали пристёжки
- это фундаментальное требование при монтаже пластиковых окон, и это первое, что нужно соблюсти!Далее. Дверь и пристёжка соединены между собой жёстко, но, тем не менее, линия их стыка является критическим местом балконного блока, и здесь в процессе монтажа мы можем по ошибке допустить небольшой излом конструкции, что, отрицательно скажется при внешней и внутренней отделке, может нарушить герметичность стыка, да и просто будет некрасиво смотреться:
Отсюда следует второе требование: все элементы балконного блока - и дверь, и пристёжка - должны стоять в одной плоскости!
Если балконный проём имеет четверти, то следующее требование - обеспечить зазор между пластиковой конструкцией и четвертями не менее 10 мм по всему периметру проёма!


И, наконец, последнее важное требование: между конструкцией оконного блока и стенками проёма оставляется монтажный зазор не менее 25 мм! Желательно, чтобы по бокам и сверху зазоры были одинаковы. Не забудьте, что под рамой зазор должен быть не менее 30 мм - поправка на толщину подоконника и порога:

Итак, у нас получился вот такой список наиболее важных требований, которые необходимо соблюсти при установке балконного блока:
- установить балконный блок по уровню, выровнять диагонали;
- установить элементы конструкции (дверь и пристёжку) в одной плоскости;
- обеспечить зазор между рамой и четвертью не менее 10 мм по всему периметру проёма;
- обеспечить монтажный зазор между рамой и проёмом сверху и по бокам не менее 25 мм, снизу - не менее 30 мм.
Как правильно монтировать пластиковое окно на стену
Для тех, кто намерен монтировать окна на мансарде самостоятельно, будет полезно узнать об особенностях установки более подробно. Для этого потребуются следующие инструменты:
- уровень, линейка;
- отвес, рулетка;
- монтировка;
- металлический молоток и киянка;
- пила или электрический лобзик;
- шуруповёрт.

Для монтажа мансардного окна потребуются разные инструменты
Дополнительно нужны различные виды крепежа, а также доски обрезные, равные по толщине стропилам.
Чем выше по скату расположено окно или световой люк, тем больше эффект освещённости внутри мансарды. Рекомендуется размещать их на удалении от вентиляционных шахт и дымоходных труб. Изменения каркаса кровли негативно скажутся на его прочности. Поэтому проводить их нужно со знанием дела.
Подготовка оконного проёма
Прежде всего, необходимо выбрать правильное место для расположения окна. На этом этапе определяется их количество и размер. Исходить нужно из пропорции 1м2остекления к 10м2пола. При таком соотношении естественное освещение будет достаточным для того, чтобы не применять электрические лампы днём.

Высоту установки выбирают с таким расчётом, чтобы открывать (и закрывать) окна было удобно, т.е. от 0,9 до 1,7 м. от пола
Высоту установки выбирают с таким расчётом, чтобы открывать (и закрывать) окна было удобно, т.е. от 0,9 до 1,7 м. от пола. Некоторые производители выпускают стеклопакеты с дистанционным управлением. Такие окна можно устанавливать выше 1,7м, но при этом нужно учитывать, что к ним требуется подвод электрического кабеля.
Если монтаж производится на стадии строительства, т.е. перед настилом на крышу кровельного материала, делается разметка под установку оконной рамы. При этом нежелательно резать несущие стропила крыши, лучше сместить само окно. По бокам оставляется зазор в 3–4 см. На верхней и нижней стороне рамы величина технологического зазора рекомендуется от 5 до 10 см. Это нужно для последующей регулировки положения окна и крепления гидроизоляции с утеплителем. Контур очерчивается изнутри на кровельном покрытии. Если есть необходимость вставить окно на несущей балке, то после разрезания её укрепляют вспомогательными рейками.
Во избежание обледенения и запотевания стёкол, рекомендуется распланировать установку обогревательных приборов непосредственно под окнами.
Крепление рамы осуществляется специальными кронштейнами, входящими в комплект окна. Они фиксируют раму к стропилам или дополнительным деревянным брускам. Положение верхнего и нижнего брусков выставляют горизонтально, строго по уровню.

Кронштейны расположены по углам несущей рамы и крепятся к опорным балкам
Кровельную гидроизоляцию разрезают по диагоналям (конвертом) и загибают вовне на время проведения монтажных работ. После установки рамы гидроизолирующий материал заворачивают поверх окна, оставляя по 20 см. с каждой стороны. Таким образом, достигается максимальная герметичность оконного проёма.

Материал для гидроизоляции должен поставляться в комплекте окна
Полезно знать, что при подготовке проёма желательно обработать торцы разрезанных стропил и балок защитными составами. Так как место установки окна потенциально подвержено сырости, следует применять пропитки против грибка и плесени.
Установка рамы
Перед креплением оконной рамы в подготовленный проём необходимо разобрать стеклопакет. Внутренняя подвижная часть снимается. Демонтаж нужно производить в соответствии с инструкцией изготовителя, детально описывающей весь процесс:
- Нижняя часть фиксируется на кронштейны, верхняя крепится предварительно без затягивания саморезов.
- При помощи гидравлического уровня или лазерного нивелира выверяется положение рамы. Верхние и нижние края выставляются строго горизонтально. Боковые грани располагают симметрично внутри проёма, оставляя по обе стороны равные промежутки.
- После предварительной фиксации кронштейнов вставляют подвижную часть окна в раму и проверяют исправность затворного механизма. При правильном положении рамы стеклопакет равномерно прилегает по всему периметру к резиновым уплотнителям, замок срабатывает без усилия. Если эти условия соблюдены, стекло вновь вынимают и продолжают установку рамы. Если нет — положение нужно окончательно отрегулировать, подкладывая пластиковые или деревянные подставки. После этого кронштейны полностью затягивают. При этом нужно следить, чтобы зазоры между рамой и подвижной частью везде оставались одинаковыми.
- Следующим шагом на раму накидывается разрезанная гидроизоляция, отрезаются лишние лоскуты, вдоль боков степлером крепится утеплитель.
Как правильно монтировать пластиковое окно на балкон
Дом без наружной отделки с установленными окнами. © Фотобанк Лoри
Однослойные стены . В домах с такой структурой стены окна могут быть установлены, как до оштукатуривания фасадов, так и после. Лучшее решение установить окна перед применением внешней штукатурки. Перед началом финишных работ на фасаде окна следует тщательно экранировать плёнкой для защиты от брызг раствора.
Установка евроокон после нанесения штукатурки на фасаде может означать выполнение дважды одной и той же операции - штукатурка откосов. В этом случае невозможно избежать повреждения ранее нанесённого слоя штукатурки, особенно если на границе между окном и стеной будет помещена паропроницаемая или расширяющаяся лента.
Также можно поступить подобно, как во время выполнения внутренней штукатурки – оставить незаконченный откос и завершить эту работу после установки окон. Однако, это может быть вредным для эстетики отделки, если слой штукатурки будет отличаться оттенком от остальной части покрытия. Лучше организовать работу так, чтобы установить окна незадолго до отделки фасада. В этом случае легче правильно герметизировать шов между окном и стеной, и красиво закончить откос, так, чтобы все окна были отделаны одинаково и имели идентичную видимую часть рамы, а откосы стыковались под прямым углом. Предварительная установка окон позволит правильную посадку и герметизацию подоконников.
Окна установлены в двухслойные стены. © oknamеdia
Двухслойные стены . В таких стенах лучше установить окна до утепления фасада. Поскольку тогда известно, где вырезать плиты из пенопласта. Они должны быть расположены так, чтобы стыки в углах окна не перекрывались, а также следует предусмотреть наложение армирующей сетки в углах оконного проёма и укрепить углы перфорированным уголком (контрашульц). Теплоизоляционный слой должен перекрывать оконные рамы на 2-3 см. Все эти шаги пришлось бы повторить, устанавливая окна после утепления стен. В случае евроокон, установленных в стене без утепления, легче осуществить герметизацию стыков между окном и стеной. Если утепление будет сделано раньше, следует оставить запас в слое изоляции в свете оконных проёмов, но завершение работы после установки окон может быть громоздким и трудоемким.





