Идеи дизайна интерьера

+1000 идей для Вашего интерьера!

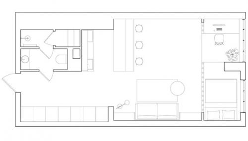
Нестандартные решения в планировке.

05.09.2022 в 08:41

Площадь 51 кв. м, Москва.

Хозяин квартиры - молодой человек, работающий инженером. Дизайн проект полностью пожеланиям хозяина соответствует.

Дизайн: бюро схема
Нестандартные решения в планировке..

Нестандартные решения в планировке. 01
Нестандартные решения в планировке. 02
Нестандартные решения в планировке. 03
Нестандартные решения в планировке. 04
Нестандартные решения в планировке. 05
Нестандартные решения в планировке. 06
Нестандартные решения в планировке. 07
Нестандартные решения в планировке. 08