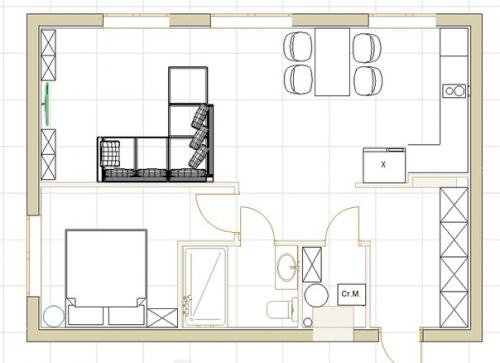
Базово это стандартная двушка, там где сейчас остров - стол была стенка, а дверей в маленьком коридорчике было бы аж 5, а не 3 как сейчас. Готово почти все, на месте гостиной пока склад.
В случае если решите делать светлый интерьер, как у меня, просто примите как данность, что на светлом будет все видно, особенно с черным котом) кстати, на белом полу в ванной всегда что-то видно, даже светлые волосы, а темную глянцевую плитку приходится частенько мыть
. Но это того стоит, при условии, если вы к этому готовы.







