Идеи дизайна интерьера

+1000 идей для Вашего интерьера!

Парижский стиль, нотки Скандинавии и немного экзотики: квартира в Москве

19.10.2020 в 20:40

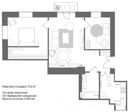
В основе этой яркой современной квартиры в Москве лежит очарование парижских апартаментов: окна в пол, паркет елочкой, белый цвет и лепнина на потолке. В то же время, интерьеры кухни и спален имеют многие черты скандинавского стиля. Финальным штрихом стали экзотические нотки, такие как живые растения, яркий текстиль, плитка в ванной.

Парижский стиль, нотки Скандинавии и немного экзотики: квартира в МосквеПарижский стиль, нотки Скандинавии и немного экзотики: квартира в Москве 01Парижский стиль, нотки Скандинавии и немного экзотики: квартира в МосквеПарижский стиль, нотки Скандинавии и немного экзотики: квартира в Москве 03Парижский стиль, нотки Скандинавии и немного экзотики: квартира в Москве 04Парижский стиль, нотки Скандинавии и немного экзотики: квартира в Москве 05Парижский стиль, нотки Скандинавии и немного экзотики: квартира в Москве 06Парижский стиль, нотки Скандинавии и немного экзотики: квартира в Москве 07Парижский стиль, нотки Скандинавии и немного экзотики: квартира в Москве 08Парижский стиль, нотки Скандинавии и немного экзотики: квартира в Москве 09Парижский стиль, нотки Скандинавии и немного экзотики: квартира в Москве 10